Overslaan en naar de inhoud gaan
Offerte aanvragen

Offerte aanvragen


Benieuwd naar de kosten voor een Villea woning die aansluit bij uw wensen? Vraag eenvoudig en vrijblijvend een offerte aan. Vul het formulier in en u ontvangt binnen 1 werkdag een eerste richtprijs op maat. Daarna nemen we snel contact met u op om alles door te spreken.

Naam

Deze site wordt beschermd door reCAPTCHA en de Privacy Policy en Servicevoorwaarden van Google gelden.

085 – 333 2440 Wijk en Aalburg

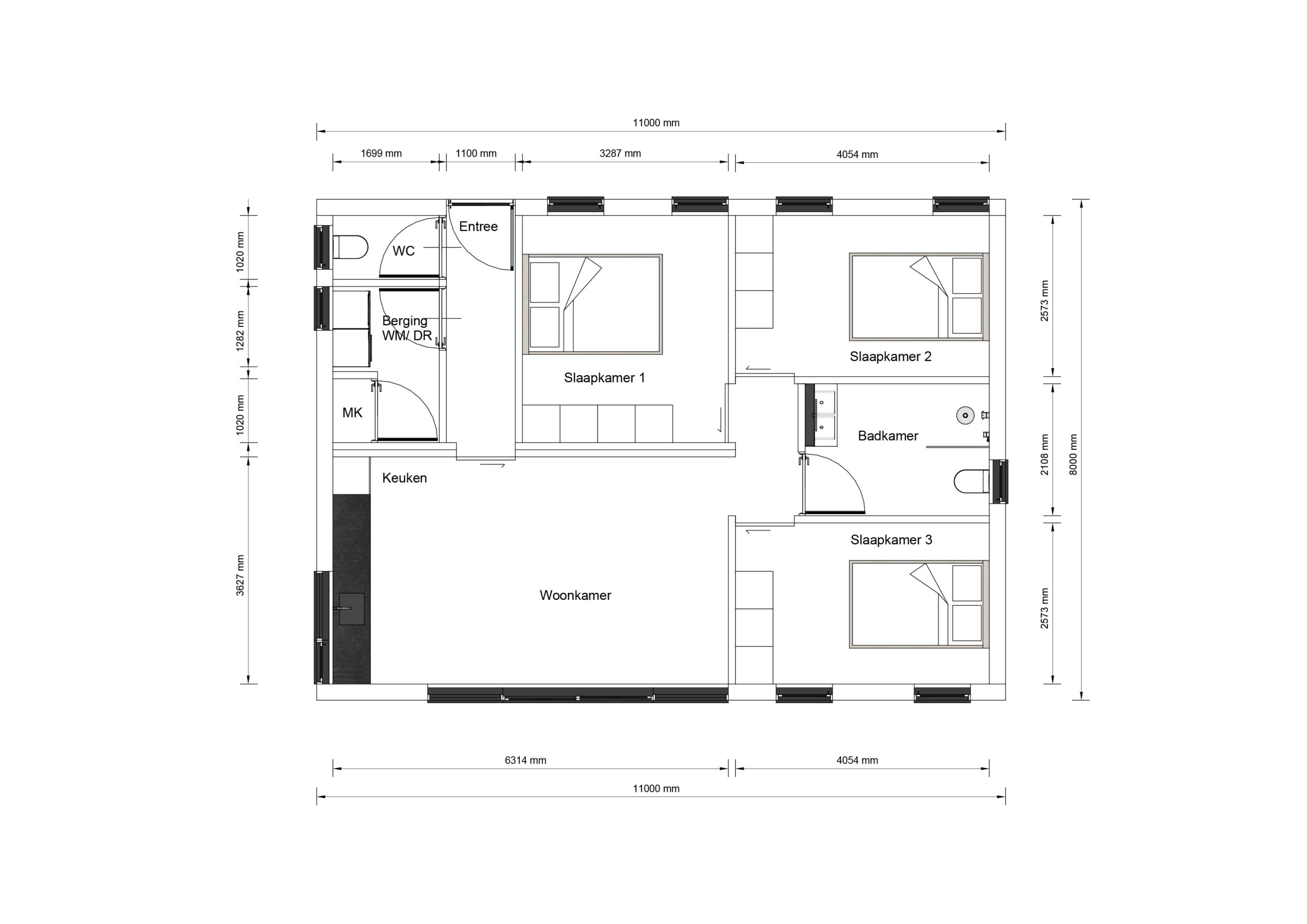
Mantelzorgwoning Verano

  • 88 woonoppervlakte
  • 3 slaapkamer(s)

Mantelzorgwoning Verano

88m2 woonoppervlakte      3 slaapkamer(s)
Over mantelzorgwoning Verano 88m2
De Verano is een hoogwaardige prefab woning die perfect is voor één of twee personen, of als mantelzorgwoning. Met een plat dak en een slimme indeling biedt deze woning een optimale benutting van de beschikbare ruimte. De woning meet 11 meter in lengte en 8 meter in breedte, wat zorgt voor praktische leefruimtes die comfort en lichtinval maximaliseren. De drie slaapkamers zijn ontworpen met aandacht voor detail, waardoor elke ruimte een gevoel van rust en privacy uitstraalt. De moderne uitstraling van de Verano, gecombineerd met de hoogwaardige bouwkwaliteit, maakt het een aantrekkelijke keuze voor wie op zoek is naar een stijlvolle en functionele woning. De plattegrond is bijzonder door zijn doordachte indeling, die zorgt voor een harmonieuze flow tussen de verschillende ruimtes, ideaal voor een aangename woonervaring.

Details

  • Lengte: 11 meter

  • Breedte: 8 meter

  • 88m2 oppervlakte

  • Plat dak

  • 3 slaapkamer(s)

Indeling

Villea Comfort

EXTERIEUR

  • Onderhoudsvrije gevelafwerking
  • Aluminium kozijnen met HR++ glas
  • Isolatiewaarden boven de Bouwbesluiteisen

INTERIEUR

  • Geïsoleerde binnenwanden
  • Naadloze wanden en plafonds in kleur.
  • Hoge, brede binnendeuren in grenen kozijnen
  • Duurzame PVC vloer
  • Complete maatwerk keuken
  • Badkamer met inloopdouche en toilet

Villea exclusief

EXTERIEUR

  • Triple glas
  • Aluminium composiet overstekken
  • Verduurzaamde houten gevelbekleding
  • Rolluiken of screens

INTERIEUR

  • Airconditioning
  • Vloerverwarming
  • WTW-systeem
  • Maatwerk inbouwkasten
  • Staallook deuren
  • Luxe badkamer met bad

Offerte aanvragen

Naam

Deze site wordt beschermd door reCAPTCHA en de Privacy Policy en Servicevoorwaarden van Google gelden.