Overslaan en naar de inhoud gaan
Offerte aanvragen

Offerte aanvragen


Benieuwd naar de kosten voor een Villea woning die aansluit bij uw wensen? Vraag eenvoudig en vrijblijvend een offerte aan. Vul het formulier in en u ontvangt binnen 1 werkdag een eerste richtprijs op maat. Daarna nemen we snel contact met u op om alles door te spreken.

Naam

Deze site wordt beschermd door reCAPTCHA en de Privacy Policy en Servicevoorwaarden van Google gelden.

085 – 333 2440 Wijk en Aalburg

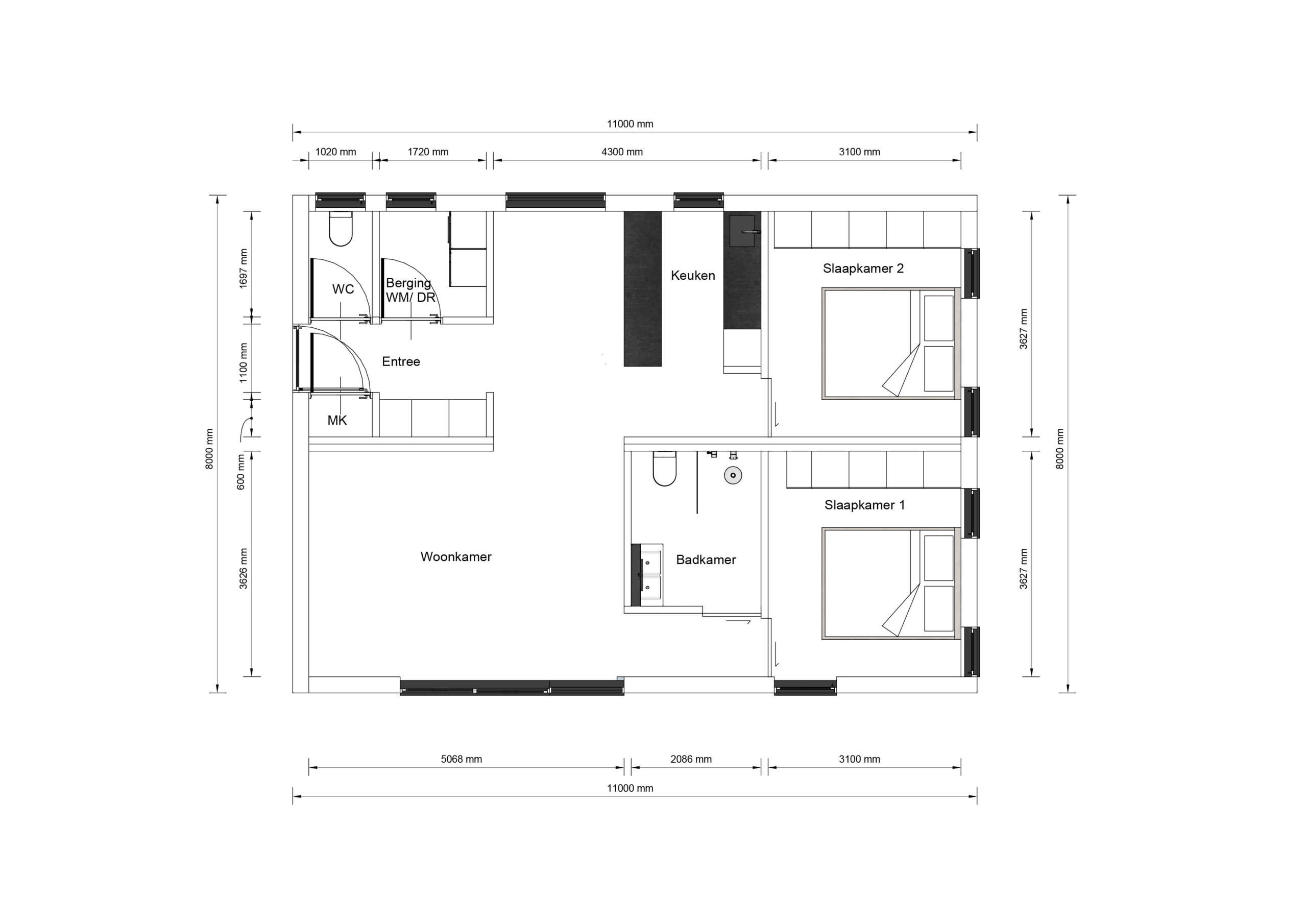
Mantelzorgwoning Sariva

  • 88 woonoppervlakte
  • 2 slaapkamer(s)

Mantelzorgwoning Sariva

88m2 woonoppervlakte      2 slaapkamer(s)
Over mantelzorgwoning Sariva 88m2
De Sariva is een hoogwaardige prefab woning met een elegant zadeldak, ontworpen voor 1 of 2 personen of als mantelzorgwoning. Met een afmeting van 8 bij 11 meter biedt deze woning een slimme indeling die optimaal gebruik maakt van de beschikbare ruimte. De twee slaapkamers zijn licht en comfortabel, waardoor een aangename leefomgeving ontstaat. De praktische leefruimtes zijn zorgvuldig ontworpen om functionaliteit en esthetiek te combineren, wat resulteert in een uitnodigende sfeer. De uitstraling van het ontwerp is modern en tijdloos, met aandacht voor detail en afwerking. De plattegrond van de Sariva maakt het mogelijk om de ruimtes efficiënt te benutten, waardoor deze woning niet alleen een plek om te wonen is, maar ook een thuis waar comfort en kwaliteit centraal staan.

Details

  • Lengte: 8 meter

  • Breedte: 11 meter

  • 88m2 oppervlakte

  • Zadeldak

  • 2 slaapkamer(s)

Indeling

Villea Comfort

EXTERIEUR

  • Onderhoudsvrije gevelafwerking
  • Aluminium kozijnen met HR++ glas
  • Isolatiewaarden boven de Bouwbesluiteisen

INTERIEUR

  • Geïsoleerde binnenwanden
  • Naadloze wanden en plafonds in kleur.
  • Hoge, brede binnendeuren in grenen kozijnen
  • Duurzame PVC vloer
  • Complete maatwerk keuken
  • Badkamer met inloopdouche en toilet

Villea exclusief

EXTERIEUR

  • Triple glas
  • Aluminium composiet overstekken
  • Verduurzaamde houten gevelbekleding
  • Rolluiken of screens

INTERIEUR

  • Airconditioning
  • Vloerverwarming
  • WTW-systeem
  • Maatwerk inbouwkasten
  • Staallook deuren
  • Luxe badkamer met bad

Offerte aanvragen

Naam

Deze site wordt beschermd door reCAPTCHA en de Privacy Policy en Servicevoorwaarden van Google gelden.