Overslaan en naar de inhoud gaan
Offerte aanvragen

Offerte aanvragen


Benieuwd naar de kosten voor een Villea woning die aansluit bij uw wensen? Vraag eenvoudig en vrijblijvend een offerte aan. Vul het formulier in en u ontvangt binnen 1 werkdag een eerste richtprijs op maat. Daarna nemen we snel contact met u op om alles door te spreken.

Naam

Deze site wordt beschermd door reCAPTCHA en de Privacy Policy en Servicevoorwaarden van Google gelden.

085 – 333 2440 Wijk en Aalburg

Mantelzorgwoning Altira

  • 88 woonoppervlakte
  • 3 slaapkamer(s)

Mantelzorgwoning Altira

88m2 woonoppervlakte      3 slaapkamer(s)
Over mantelzorgwoning Altira 88m2
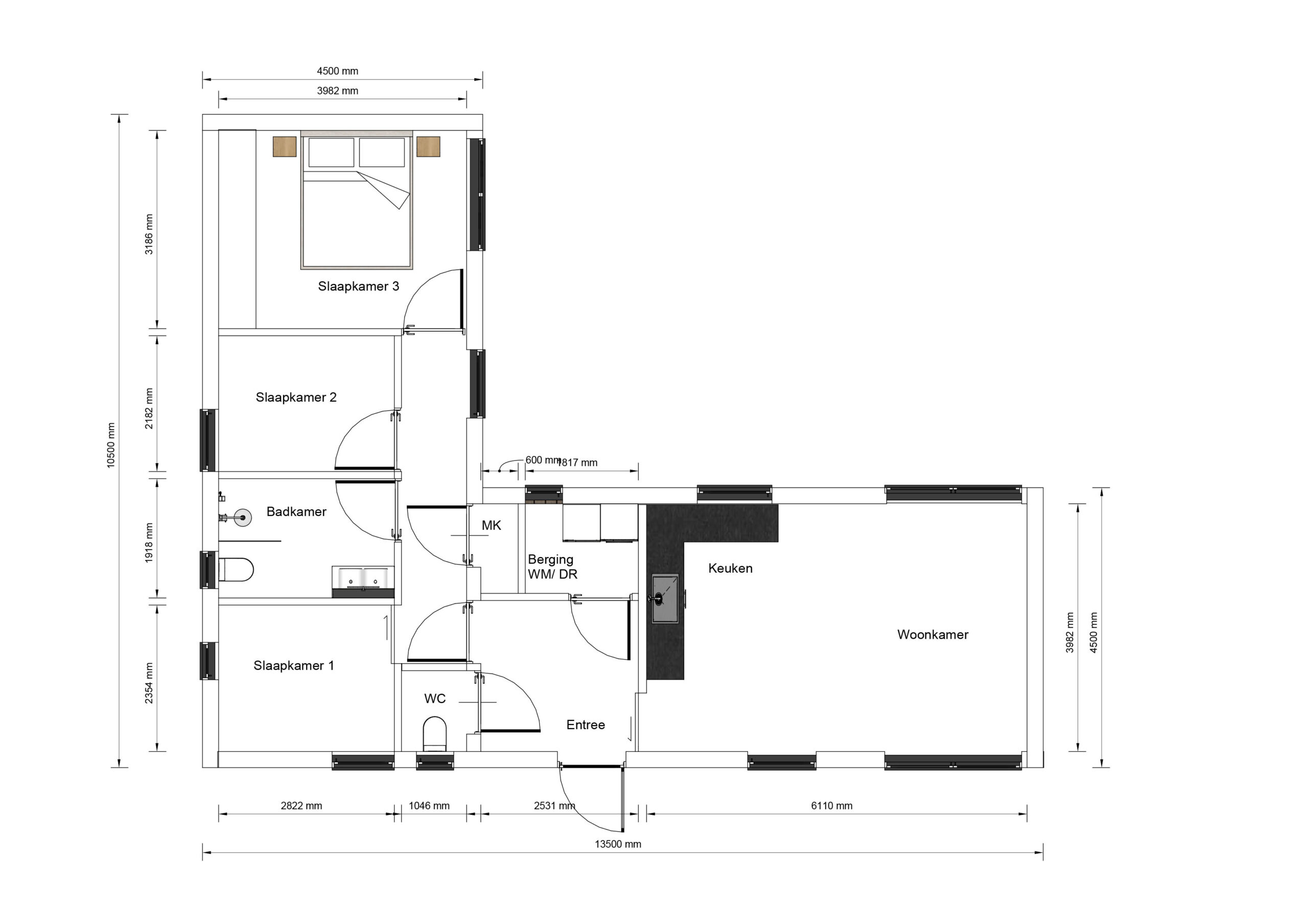
De Altira is een hoogwaardige prefab woning die perfect is voor één of twee personen, of als mantelzorgwoning. Met een plat dak en een slimme indeling van 88 m², biedt deze woning drie slaapkamers en praktische leefruimtes die optimaal gebruik maken van de beschikbare ruimte. De afmetingen van 13,5 meter in lengte en 10,5 meter in breedte zorgen voor een ruime en comfortabele woonomgeving. Het ontwerp van de Altira straalt moderniteit uit, met veel aandacht voor lichtinval, wat bijdraagt aan een aangename sfeer. De plattegrond is bijzonder door zijn doordachte indeling, waardoor elke vierkante meter efficiënt wordt benut. Deze woning is een uitstekende keuze voor wie waarde hecht aan kwaliteit en comfort in een eigentijdse setting.

Details

  • Lengte: 13.5 meter

  • Breedte: 10.5 meter

  • 88m2 oppervlakte

  • Plat dak

  • 3 slaapkamer(s)

Indeling

Villea Comfort

EXTERIEUR

  • Onderhoudsvrije gevelafwerking
  • Aluminium kozijnen met HR++ glas
  • Isolatiewaarden boven de Bouwbesluiteisen

INTERIEUR

  • Geïsoleerde binnenwanden
  • Naadloze wanden en plafonds in kleur.
  • Hoge, brede binnendeuren in grenen kozijnen
  • Duurzame PVC vloer
  • Complete maatwerk keuken
  • Badkamer met inloopdouche en toilet

Villea exclusief

EXTERIEUR

  • Triple glas
  • Aluminium composiet overstekken
  • Verduurzaamde houten gevelbekleding
  • Rolluiken of screens

INTERIEUR

  • Airconditioning
  • Vloerverwarming
  • WTW-systeem
  • Maatwerk inbouwkasten
  • Staallook deuren
  • Luxe badkamer met bad

Offerte aanvragen

Naam

Deze site wordt beschermd door reCAPTCHA en de Privacy Policy en Servicevoorwaarden van Google gelden.