Overslaan en naar de inhoud gaan
Offerte aanvragen

Offerte aanvragen


Benieuwd naar de kosten voor een Villea woning die aansluit bij uw wensen? Vraag eenvoudig en vrijblijvend een offerte aan. Vul het formulier in en u ontvangt binnen 1 werkdag een eerste richtprijs op maat. Daarna nemen we snel contact met u op om alles door te spreken.

Naam

Deze site wordt beschermd door reCAPTCHA en de Privacy Policy en Servicevoorwaarden van Google gelden.

085 – 333 2440 Wijk en Aalburg

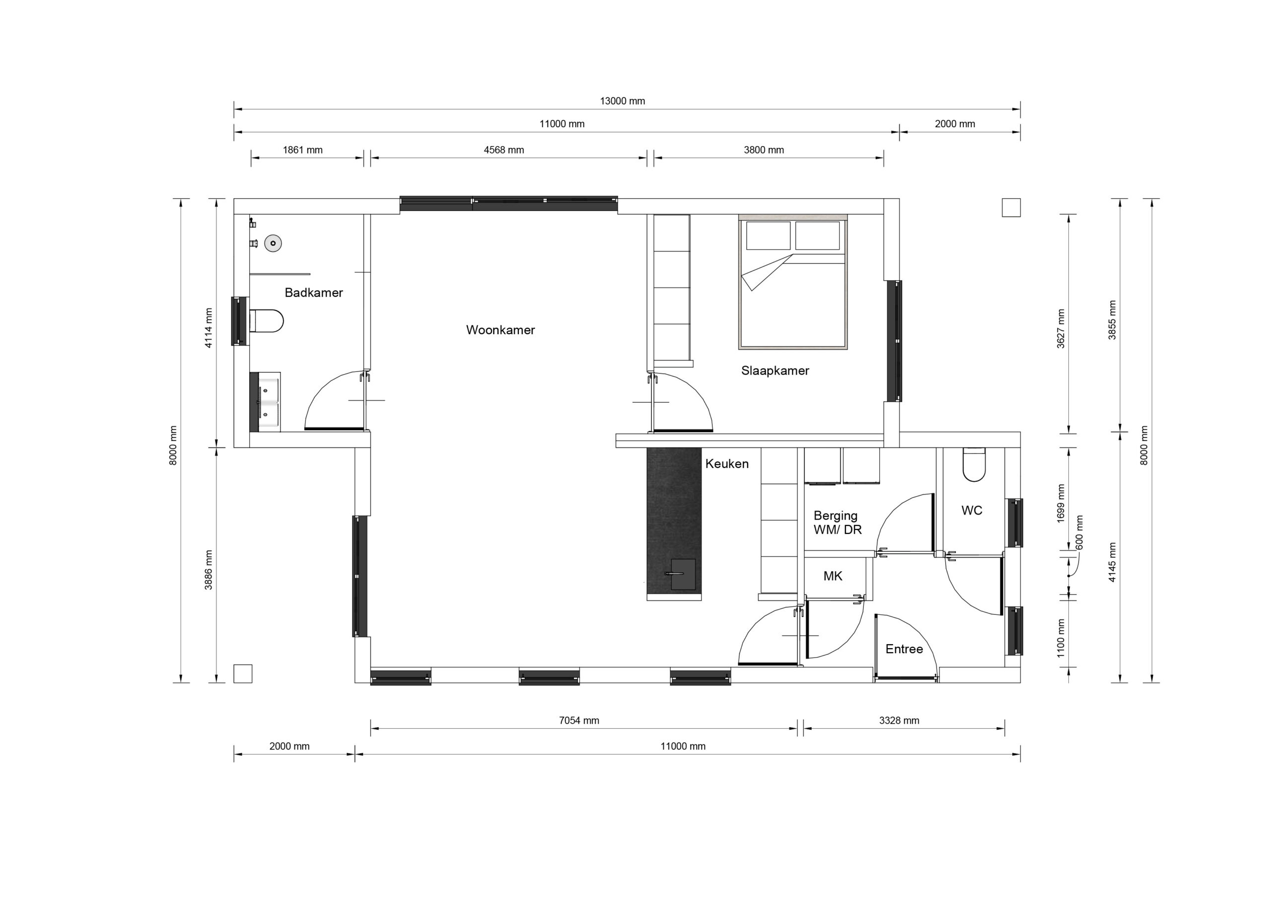
Mantelzorgwoning Orlena

  • 88 woonoppervlakte
  • 1 slaapkamer(s)

Mantelzorgwoning Orlena

88m2 woonoppervlakte      1 slaapkamer(s)
Over mantelzorgwoning Orlena 88m2
De Orlena is een hoogwaardige prefab woning die perfect is voor 1 of 2 personen, of als mantelzorgwoning. Met een plat dak en een slimme indeling biedt deze woning een optimale benutting van de beschikbare ruimte. De afmetingen van 11 bij 8 meter zorgen voor praktische leefruimtes die comfort en lichtinval combineren. De grote ramen laten natuurlijk licht binnenstromen, wat bijdraagt aan een aangename sfeer. Het ontwerp van de Orlena straalt moderniteit uit en is zorgvuldig afgestemd op de behoeften van de bewoners. De plattegrond is bijzonder door de efficiënte indeling, waardoor elke vierkante meter functioneel is. Deze woning is een uitstekende keuze voor wie waarde hecht aan kwaliteit en een doordachte woonervaring.

Details

  • Lengte: 11 meter

  • Breedte: 8 meter

  • 88m2 oppervlakte

  • Plat dak

  • 1 slaapkamer(s)

Indeling

Villea Comfort

EXTERIEUR

  • Onderhoudsvrije gevelafwerking
  • Aluminium kozijnen met HR++ glas
  • Isolatiewaarden boven de Bouwbesluiteisen

INTERIEUR

  • Geïsoleerde binnenwanden
  • Naadloze wanden en plafonds in kleur.
  • Hoge, brede binnendeuren in grenen kozijnen
  • Duurzame PVC vloer
  • Complete maatwerk keuken
  • Badkamer met inloopdouche en toilet

Villea exclusief

EXTERIEUR

  • Triple glas
  • Aluminium composiet overstekken
  • Verduurzaamde houten gevelbekleding
  • Rolluiken of screens

INTERIEUR

  • Airconditioning
  • Vloerverwarming
  • WTW-systeem
  • Maatwerk inbouwkasten
  • Staallook deuren
  • Luxe badkamer met bad

Offerte aanvragen

Naam

Deze site wordt beschermd door reCAPTCHA en de Privacy Policy en Servicevoorwaarden van Google gelden.