Overslaan en naar de inhoud gaan
Offerte aanvragen

Offerte aanvragen


Benieuwd naar de kosten voor een Villea woning die aansluit bij uw wensen? Vraag eenvoudig en vrijblijvend een offerte aan. Vul het formulier in en u ontvangt binnen 1 werkdag een eerste richtprijs op maat. Daarna nemen we snel contact met u op om alles door te spreken.

Naam

Deze site wordt beschermd door reCAPTCHA en de Privacy Policy en Servicevoorwaarden van Google gelden.

085 – 333 2440 Wijk en Aalburg

Mantelzorgwoning Velano

  • 85 woonoppervlakte
  • 1 slaapkamer(s)
Vraag vrijblijvend een richtprijs aan

Gratis prijsopgave aanvragen

Ontvang binnen enkele minuten de kosten van deze woning in je mailbox.
Naam

Deze site wordt beschermd door reCAPTCHA en de Privacy Policy en Servicevoorwaarden van Google gelden.

Mantelzorgwoning Velano

85m2 woonoppervlakte      1 slaapkamer(s)
Vraag vrijblijvend een richtprijs aan

Gratis prijsopgave aanvragen

Ontvang binnen enkele minuten de kosten van deze woning in je mailbox.

Naam

Deze site wordt beschermd door reCAPTCHA en de Privacy Policy en Servicevoorwaarden van Google gelden.

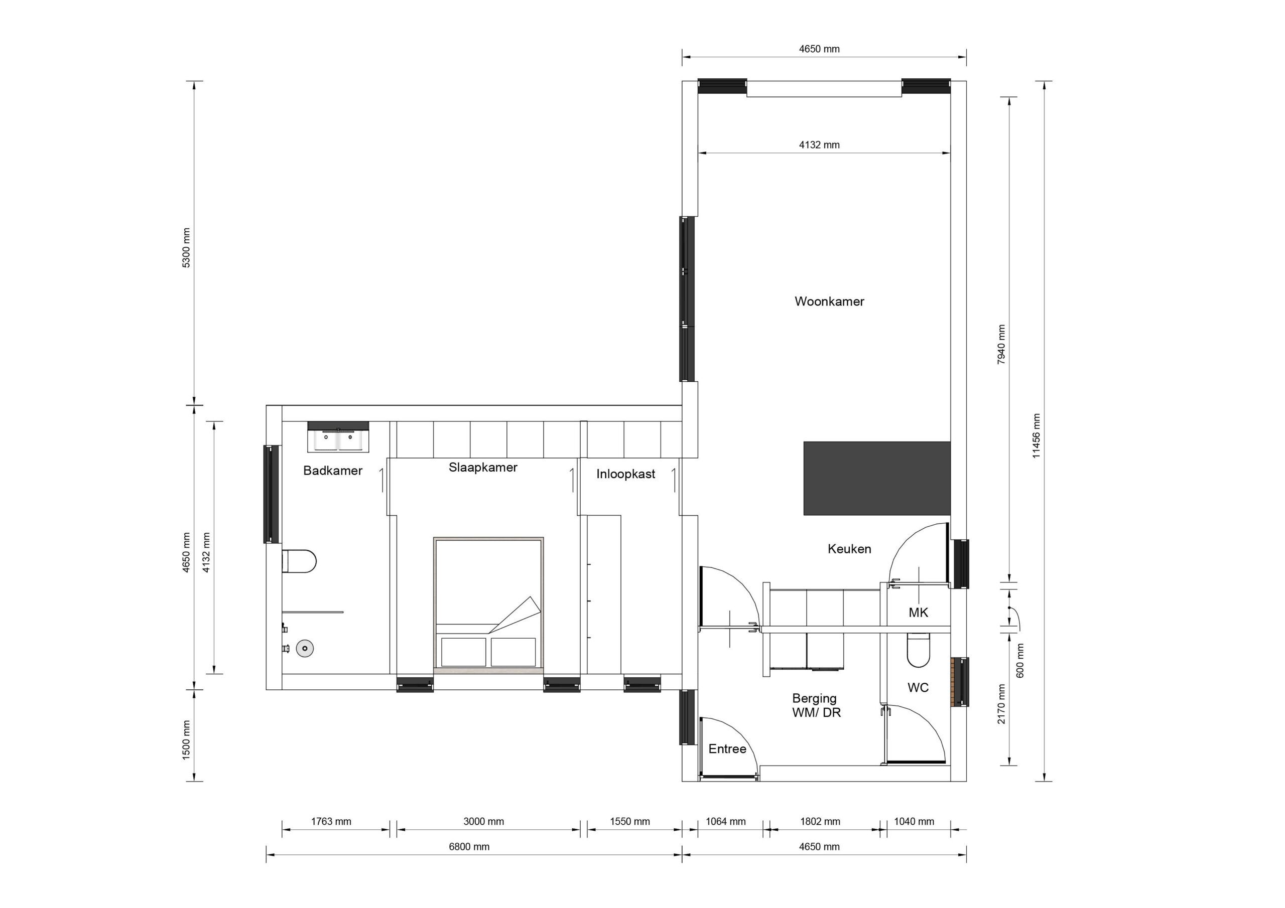
Over mantelzorgwoning Velano 85m2
De Velano is een hoogwaardige prefab woning die perfect is voor één of twee personen, of als mantelzorgwoning. Met een plat dak en een afmeting van 4,65 bij 11,45 meter, biedt deze woning een slimme indeling die optimaal gebruik maakt van de beschikbare ruimte. De woning beschikt over een comfortabele slaapkamer en praktische leefruimtes die zorgen voor een aangename sfeer. Dankzij de grote ramen geniet u van een overvloed aan natuurlijk licht, wat de ruimte een open en uitnodigende uitstraling geeft. Het ontwerp van de Velano combineert een moderne uitstraling met functionele elementen, waardoor het een aantrekkelijke keuze is voor wie waarde hecht aan zowel comfort als stijl. De plattegrond is zorgvuldig ontworpen om een gevoel van ruimte te creëren, wat bijdraagt aan de algehele woonervaring.

Details

  • Lengte: 4.6 meter

  • Breedte: 11.5 meter

  • 85m2 oppervlakte

  • Plat dak

  • 1 slaapkamer(s)

Indeling

Villea Comfort

EXTERIEUR

  • Onderhoudsvrije gevelafwerking
  • Aluminium kozijnen met HR++ glas
  • Isolatiewaarden boven de Bouwbesluiteisen

INTERIEUR

  • Geïsoleerde binnenwanden
  • Naadloze wanden en plafonds in kleur.
  • Hoge, brede binnendeuren in grenen kozijnen
  • Duurzame PVC vloer
  • Complete maatwerk keuken
  • Badkamer met inloopdouche en toilet

Villea exclusief

EXTERIEUR

  • Triple glas
  • Aluminium composiet overstekken
  • Verduurzaamde houten gevelbekleding
  • Rolluiken of screens

INTERIEUR

  • Airconditioning
  • Vloerverwarming
  • WTW-systeem
  • Maatwerk inbouwkasten
  • Staallook deuren
  • Luxe badkamer met bad

Gratis prijsopgave aanvragen

Ontvang binnen enkele minuten de kosten van deze woning in je mailbox.

Naam

Deze site wordt beschermd door reCAPTCHA en de Privacy Policy en Servicevoorwaarden van Google gelden.