Overslaan en naar de inhoud gaan
Offerte aanvragen

Offerte aanvragen


Benieuwd naar de kosten voor een Villea woning die aansluit bij uw wensen? Vraag eenvoudig en vrijblijvend een offerte aan. Vul het formulier in en u ontvangt binnen 1 werkdag een eerste richtprijs op maat. Daarna nemen we snel contact met u op om alles door te spreken.

Naam

Deze site wordt beschermd door reCAPTCHA en de Privacy Policy en Servicevoorwaarden van Google gelden.

085 – 333 2440 Wijk en Aalburg

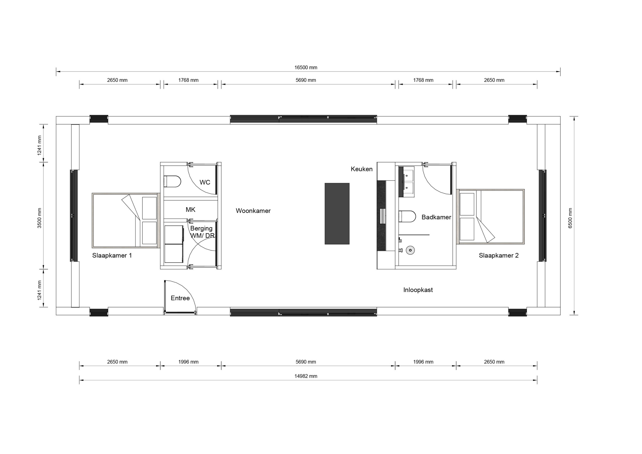
Mantelzorgwoning Tavero

  • 100 woonoppervlakte
  • 2 slaapkamer(s)

Mantelzorgwoning Tavero

100m2 woonoppervlakte      2 slaapkamer(s)
Over mantelzorgwoning Tavero 100m2
De Tavero is een compacte, langwerpige woning met twee slaapkamers aan weerszijden van de woning. In het midden vind je een royale leefruimte met open keuken, centraal geplaatst om het huis in balans te houden. Dankzij de indeling zijn beide slaapkamers rustig gelegen, elk met eigen toegang tot sanitaire ruimtes. De Tavero is bijzonder geschikt voor samenwonen met privacy, of voor wie extra ruimte zoekt binnen een overzichtelijk ontwerp.

Details

  • Lengte: 15.5 meter

  • Breedte: 6.5 meter

  • 100m2 oppervlakte

  • Zadeldak

  • 2 slaapkamer(s)

Indeling

Villea Comfort

EXTERIEUR

  • Onderhoudsvrije gevelafwerking
  • Aluminium kozijnen met HR++ glas
  • Isolatiewaarden boven de Bouwbesluiteisen

INTERIEUR

  • Geïsoleerde binnenwanden
  • Naadloze wanden en plafonds in kleur.
  • Hoge, brede binnendeuren in grenen kozijnen
  • Duurzame PVC vloer
  • Complete maatwerk keuken
  • Badkamer met inloopdouche en toilet

Villea exclusief

EXTERIEUR

  • Triple glas
  • Aluminium composiet overstekken
  • Verduurzaamde houten gevelbekleding
  • Rolluiken of screens

INTERIEUR

  • Airconditioning
  • Vloerverwarming
  • WTW-systeem
  • Maatwerk inbouwkasten
  • Staallook deuren
  • Luxe badkamer met bad

Offerte aanvragen

Naam

Deze site wordt beschermd door reCAPTCHA en de Privacy Policy en Servicevoorwaarden van Google gelden.