Overslaan en naar de inhoud gaan
Offerte aanvragen

Offerte aanvragen


Benieuwd naar de kosten voor een Villea woning die aansluit bij uw wensen? Vraag eenvoudig en vrijblijvend een offerte aan. Vul het formulier in en u ontvangt binnen 1 werkdag een eerste richtprijs op maat. Daarna nemen we snel contact met u op om alles door te spreken.

Naam

Deze site wordt beschermd door reCAPTCHA en de Privacy Policy en Servicevoorwaarden van Google gelden.

085 – 333 2440 Wijk en Aalburg

Mantelzorgwoning Moreni

  • 100 woonoppervlakte
  • 3 slaapkamer(s)

Mantelzorgwoning Moreni

100m2 woonoppervlakte      3 slaapkamer(s)
Over mantelzorgwoning Moreni 100m2
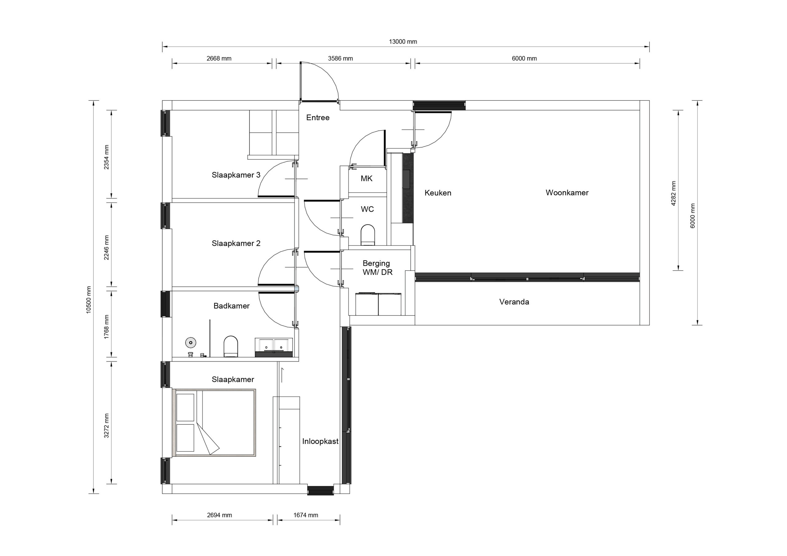
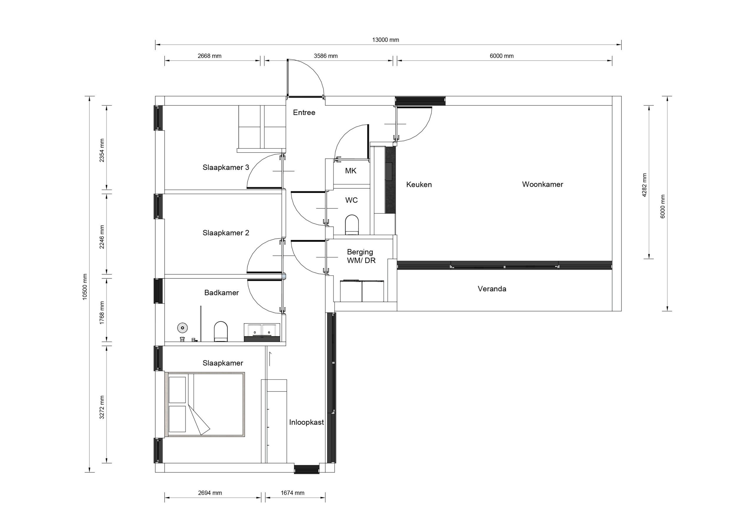
De Moreni heeft een L-vormige plattegrond en drie slaapkamers aan één zijde van de woning. De keuken en woonkamer liggen aan de andere kant en bieden veel ruimte en licht. Door de indeling ontstaat een duidelijke scheiding tussen wonen en slapen, wat het model zeer geschikt maakt voor gezinnen of bewoners met logés. Ook is er een apart toilet, een ruime badkamer en voldoende opbergruimte.

Details

  • Lengte: 13 meter

  • Breedte: 10.5 meter

  • 100m2 oppervlakte

  • Versprongen dak

  • 3 slaapkamer(s)

Indeling

Villea Comfort

EXTERIEUR

  • Onderhoudsvrije gevelafwerking
  • Aluminium kozijnen met HR++ glas
  • Isolatiewaarden boven de Bouwbesluiteisen

INTERIEUR

  • Geïsoleerde binnenwanden
  • Naadloze wanden en plafonds in kleur.
  • Hoge, brede binnendeuren in grenen kozijnen
  • Duurzame PVC vloer
  • Complete maatwerk keuken
  • Badkamer met inloopdouche en toilet

Villea exclusief

EXTERIEUR

  • Triple glas
  • Aluminium composiet overstekken
  • Verduurzaamde houten gevelbekleding
  • Rolluiken of screens

INTERIEUR

  • Airconditioning
  • Vloerverwarming
  • WTW-systeem
  • Maatwerk inbouwkasten
  • Staallook deuren
  • Luxe badkamer met bad

Offerte aanvragen

Naam

Deze site wordt beschermd door reCAPTCHA en de Privacy Policy en Servicevoorwaarden van Google gelden.