Overslaan en naar de inhoud gaan
Offerte aanvragen

Offerte aanvragen


Benieuwd naar de kosten voor een Villea woning die aansluit bij uw wensen? Vraag eenvoudig en vrijblijvend een offerte aan. Vul het formulier in en u ontvangt binnen 1 werkdag een eerste richtprijs op maat. Daarna nemen we snel contact met u op om alles door te spreken.

Naam

Deze site wordt beschermd door reCAPTCHA en de Privacy Policy en Servicevoorwaarden van Google gelden.

085 – 333 2440 Wijk en Aalburg

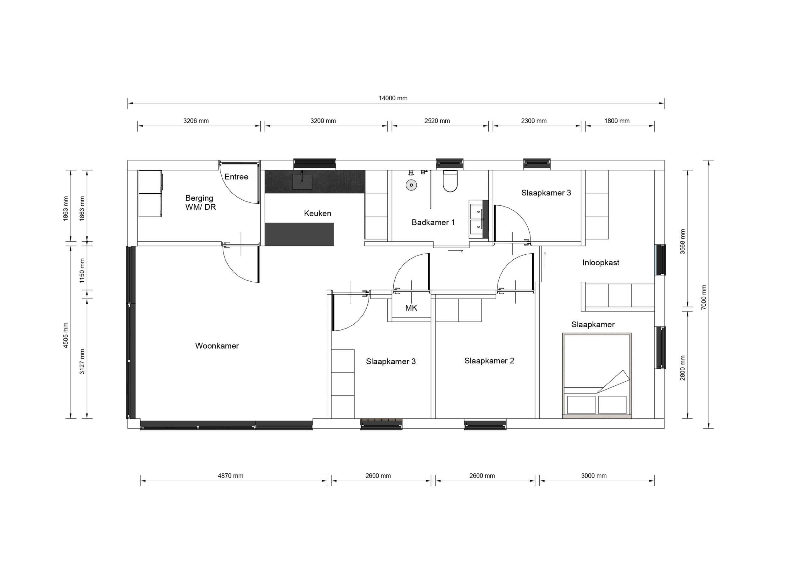
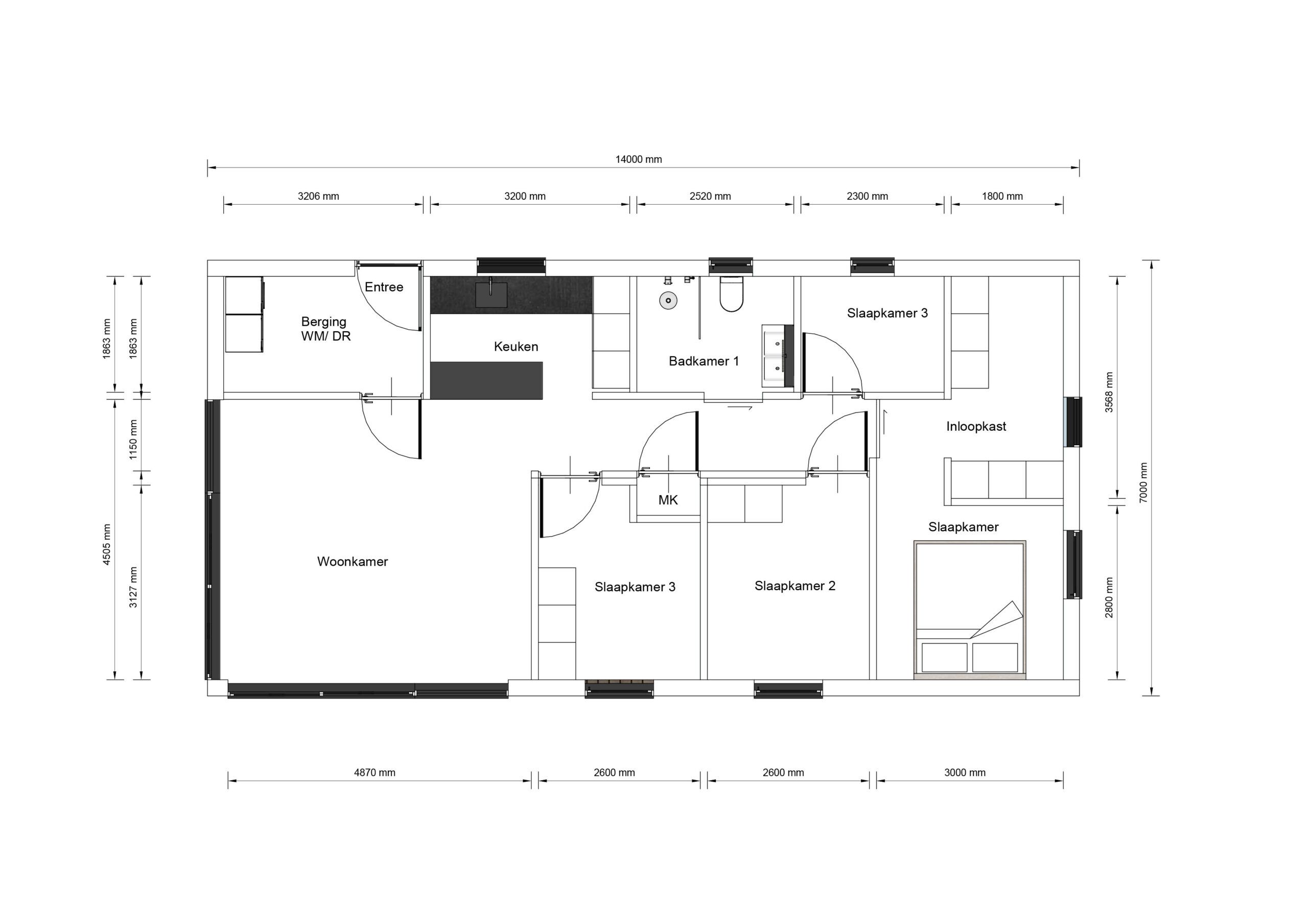
Mantelzorgwoning Serano

  • 100 woonoppervlakte
  • 3 slaapkamer(s)

Mantelzorgwoning Serano

100m2 woonoppervlakte      3 slaapkamer(s)
Over mantelzorgwoning Serano 100m2
De Serano is een ruime woning met drie slaapkamers, een grote woonkamer met open keuken, een aparte berging en een compleet ingerichte badkamer. Met 14 meter lengte en een praktische opzet biedt dit model volop ruimte voor gezinnen of bewoners die graag extra kamers hebben voor werk of hobby. Het ontwerp voelt open en overzichtelijk, met lichtinval aan meerdere zijden en een logische looplijn door de woning.

Details

  • Lengte: 14 meter

  • Breedte: 7 meter

  • 100m2 oppervlakte

  • Plat dak

  • 3 slaapkamer(s)

Indeling

Villea Comfort

EXTERIEUR

  • Onderhoudsvrije gevelafwerking
  • Aluminium kozijnen met HR++ glas
  • Isolatiewaarden boven de Bouwbesluiteisen

INTERIEUR

  • Geïsoleerde binnenwanden
  • Naadloze wanden en plafonds in kleur.
  • Hoge, brede binnendeuren in grenen kozijnen
  • Duurzame PVC vloer
  • Complete maatwerk keuken
  • Badkamer met inloopdouche en toilet

Villea exclusief

EXTERIEUR

  • Triple glas
  • Aluminium composiet overstekken
  • Verduurzaamde houten gevelbekleding
  • Rolluiken of screens

INTERIEUR

  • Airconditioning
  • Vloerverwarming
  • WTW-systeem
  • Maatwerk inbouwkasten
  • Staallook deuren
  • Luxe badkamer met bad

Offerte aanvragen

Naam

Deze site wordt beschermd door reCAPTCHA en de Privacy Policy en Servicevoorwaarden van Google gelden.