Overslaan en naar de inhoud gaan
Offerte aanvragen

Offerte aanvragen


Benieuwd naar de kosten voor een Villea woning die aansluit bij uw wensen? Vraag eenvoudig en vrijblijvend een offerte aan. Vul het formulier in en u ontvangt binnen 1 werkdag een eerste richtprijs op maat. Daarna nemen we snel contact met u op om alles door te spreken.

Naam

Deze site wordt beschermd door reCAPTCHA en de Privacy Policy en Servicevoorwaarden van Google gelden.

085 – 333 2440 Wijk en Aalburg

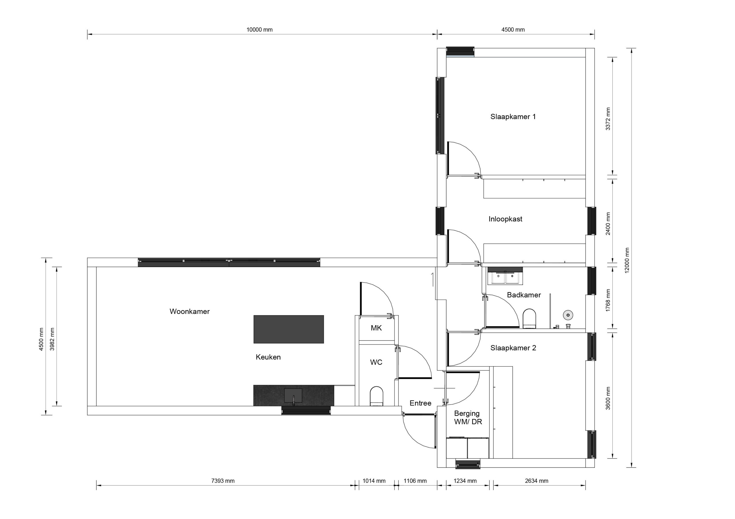
Mantelzorgwoning Solena

  • 99 woonoppervlakte
  • 2 slaapkamer(s)

Mantelzorgwoning Solena

99m2 woonoppervlakte      2 slaapkamer(s)
Over mantelzorgwoning Solena 99m2
De Solena is een lang en elegant woningmodel van 99 m², met een fijne balans tussen open leefruimte en privévertrekken. Aan beide uiteinden van de woning vind je een ruime slaapkamer, elk met veel lichtinval en voldoende plek voor kastruimte. De woonkamer ligt in het hart van het huis, samen met de open keuken. Deze centrale plek maakt het een gezellige woning om in te leven, met zichtlijnen van muur tot muur en veel natuurlijke lichtinval door de lange gevel. Dankzij de rechte, heldere indeling is de Solena makkelijk in te delen en voelt het huis rustig en overzichtelijk.

Details

  • Lengte: 10 meter

  • Breedte: 12 meter

  • 99m2 oppervlakte

  • Plat dak

  • 2 slaapkamer(s)

Indeling

Villea Comfort

EXTERIEUR

  • Onderhoudsvrije gevelafwerking
  • Aluminium kozijnen met HR++ glas
  • Isolatiewaarden boven de Bouwbesluiteisen

INTERIEUR

  • Geïsoleerde binnenwanden
  • Naadloze wanden en plafonds in kleur.
  • Hoge, brede binnendeuren in grenen kozijnen
  • Duurzame PVC vloer
  • Complete maatwerk keuken
  • Badkamer met inloopdouche en toilet

Villea exclusief

EXTERIEUR

  • Triple glas
  • Aluminium composiet overstekken
  • Verduurzaamde houten gevelbekleding
  • Rolluiken of screens

INTERIEUR

  • Airconditioning
  • Vloerverwarming
  • WTW-systeem
  • Maatwerk inbouwkasten
  • Staallook deuren
  • Luxe badkamer met bad

Offerte aanvragen

Naam

Deze site wordt beschermd door reCAPTCHA en de Privacy Policy en Servicevoorwaarden van Google gelden.