Overslaan en naar de inhoud gaan
Offerte aanvragen

Offerte aanvragen


Benieuwd naar de kosten voor een Villea woning die aansluit bij uw wensen? Vraag eenvoudig en vrijblijvend een offerte aan. Vul het formulier in en u ontvangt binnen 1 werkdag een eerste richtprijs op maat. Daarna nemen we snel contact met u op om alles door te spreken.

Naam

Deze site wordt beschermd door reCAPTCHA en de Privacy Policy en Servicevoorwaarden van Google gelden.

085 – 333 2440 Wijk en Aalburg

Mantelzorgwoning Rivaro

  • 100 woonoppervlakte
  • 2 slaapkamer(s)

Mantelzorgwoning Rivaro

100m2 woonoppervlakte      2 slaapkamer(s)
Over mantelzorgwoning Rivaro 100m2
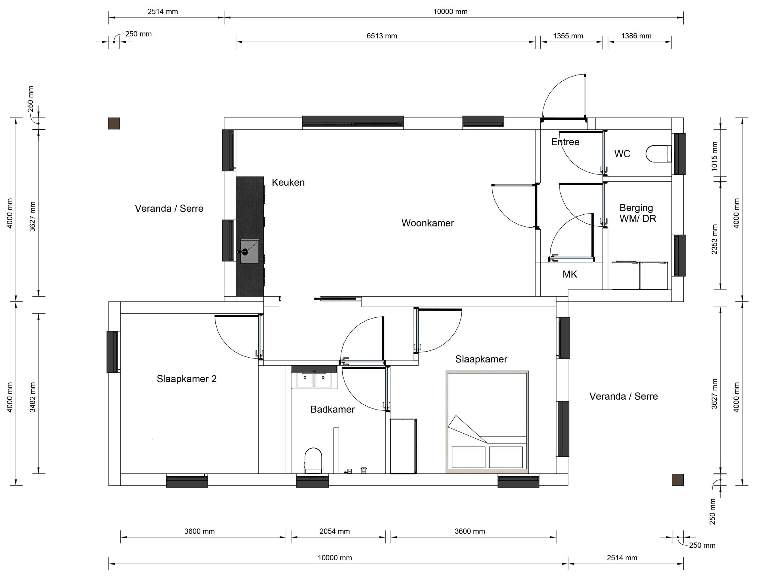
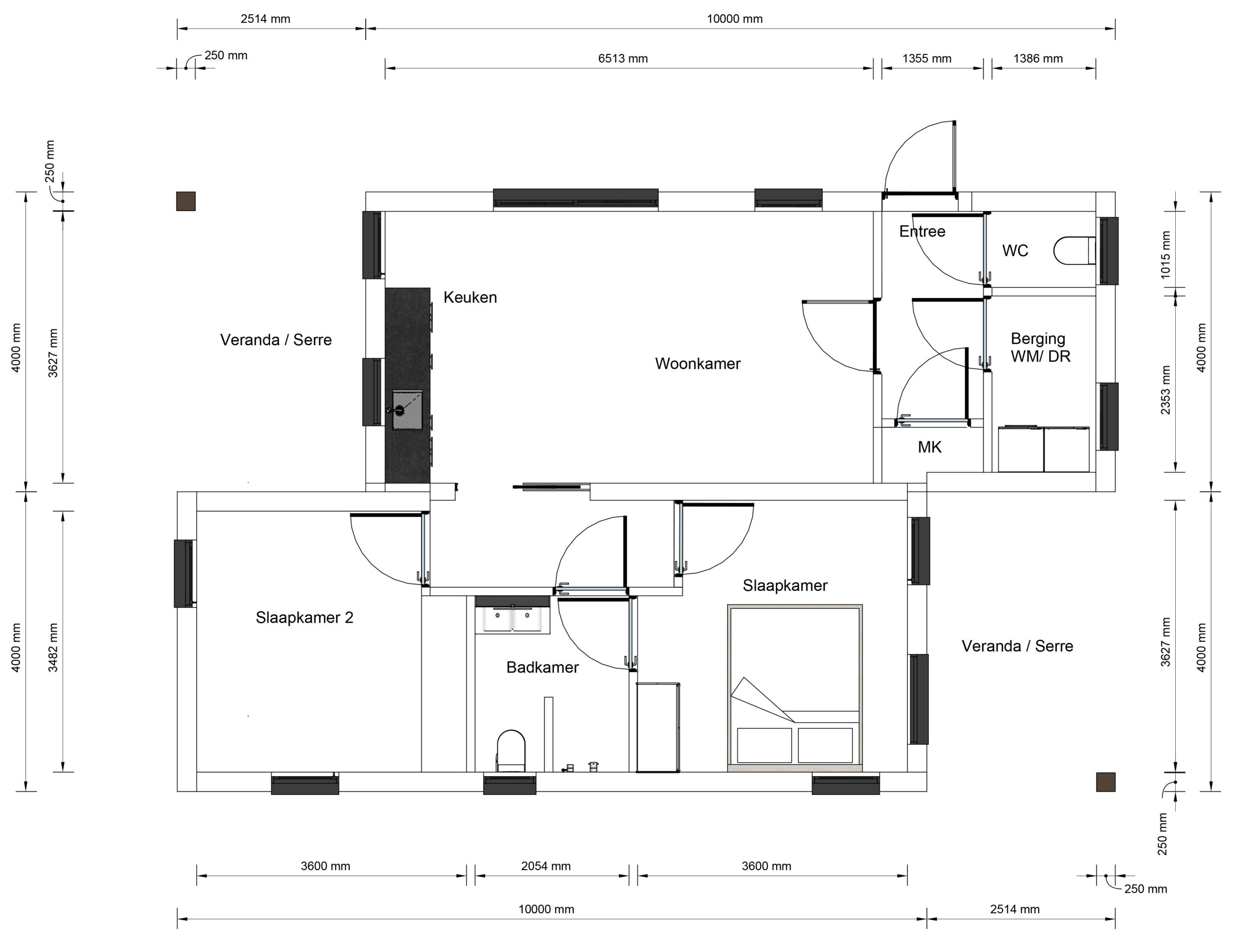
De Rivaro is een eigentijdse woning van 100 m², ontworpen voor wie houdt van rust, ruimte en een natuurlijke uitstraling. Het platte dak en de verticale houten gevel geven het model een moderne en warme look, terwijl de grote ramen zorgen voor veel daglicht en een open sfeer. De woning ligt volledig gelijkvloers en is slim ingedeeld. Binnen biedt de Rivaro twee slaapkamers, een royale woonkamer met open keuken, een los toilet, een berging en een veranda aan de voorzijde. De leefruimte is overzichtelijk en licht, met directe toegang tot het terras en de tuin. De veranda nodigt uit tot buiten zitten, en de berging zorgt voor extra opbergruimte, zodat de woning netjes blijft. De Rivaro is geschikt voor uiteenlopende woonvormen: van zelfstandig wonen tot mantelzorg of werken aan huis. Dankzij de heldere plattegrond en het rustige ontwerp is dit model makkelijk aan te passen aan persoonlijke voorkeuren, zoals vaste kastruimte, zonwering of extra voorzieningen. Een woning die rust, stijl en functionaliteit combineert — ideaal voor comfortabel wonen in een groene omgeving.

Details

  • Lengte: 12.5 meter

  • Breedte: 8 meter

  • 100m2 oppervlakte

  • Plat dak

  • 2 slaapkamer(s)

Indeling

Villea Comfort

EXTERIEUR

  • Onderhoudsvrije gevelafwerking
  • Aluminium kozijnen met HR++ glas
  • Isolatiewaarden boven de Bouwbesluiteisen

INTERIEUR

  • Geïsoleerde binnenwanden
  • Naadloze wanden en plafonds in kleur.
  • Hoge, brede binnendeuren in grenen kozijnen
  • Duurzame PVC vloer
  • Complete maatwerk keuken
  • Badkamer met inloopdouche en toilet

Villea exclusief

EXTERIEUR

  • Triple glas
  • Aluminium composiet overstekken
  • Verduurzaamde houten gevelbekleding
  • Rolluiken of screens

INTERIEUR

  • Airconditioning
  • Vloerverwarming
  • WTW-systeem
  • Maatwerk inbouwkasten
  • Staallook deuren
  • Luxe badkamer met bad

Offerte aanvragen

Naam

Deze site wordt beschermd door reCAPTCHA en de Privacy Policy en Servicevoorwaarden van Google gelden.