Overslaan en naar de inhoud gaan
Offerte aanvragen

Offerte aanvragen


Benieuwd naar de kosten voor een Villea woning die aansluit bij uw wensen? Vraag eenvoudig en vrijblijvend een offerte aan. Vul het formulier in en u ontvangt binnen 1 werkdag een eerste richtprijs op maat. Daarna nemen we snel contact met u op om alles door te spreken.

Naam

Deze site wordt beschermd door reCAPTCHA en de Privacy Policy en Servicevoorwaarden van Google gelden.

085 – 333 2440 Wijk en Aalburg

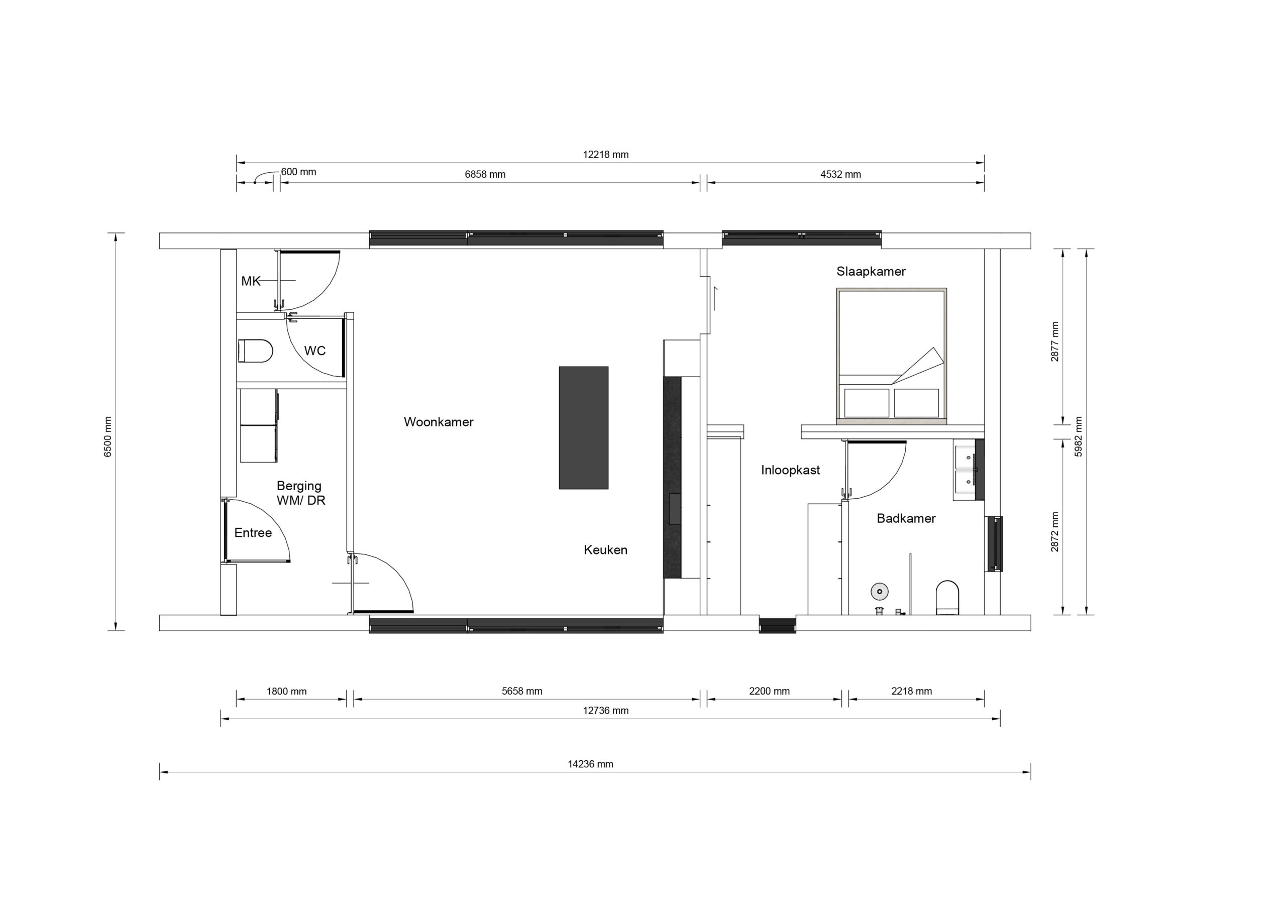
Mantelzorgwoning Noria

  • 82 woonoppervlakte
  • 1 slaapkamer(s)

Mantelzorgwoning Noria

82m2 woonoppervlakte      1 slaapkamer(s)
Over mantelzorgwoning Noria 82m2
Deze woning heeft een oppervlakte van 82 m² en beschikt over één ruime slaapkamer. Het zadeldak geeft het ontwerp een tijdloze uitstraling die mooi aansluit bij verschillende omgevingen. Binnen is de indeling overzichtelijk en efficiënt opgezet, waardoor alle leefruimtes prettig in elkaar overlopen. De woonkamer profiteert van royale lichtinval en vormt een comfortabele plek om te zitten, te eten en te ontvangen. Aangrenzend ligt de praktische keuken, waar alle essentiële voorzieningen binnen handbereik zijn. De slaapkamer biedt een rustige, besloten ruimte met voldoende plek voor een volwaardig bed en opbergruimte. Dankzij de doordachte opzet voelt de woning compact maar compleet aan, en sluit hij uitstekend aan bij de wensen van één of twee bewoners.

Details

  • Lengte: 12.7 meter

  • Breedte: 6.5 meter

  • 82m2 oppervlakte

  • Zadeldak

  • 1 slaapkamer(s)

Indeling

Villea Comfort

EXTERIEUR

  • Onderhoudsvrije gevelafwerking
  • Aluminium kozijnen met HR++ glas
  • Isolatiewaarden boven de Bouwbesluiteisen

INTERIEUR

  • Geïsoleerde binnenwanden
  • Naadloze wanden en plafonds in kleur.
  • Hoge, brede binnendeuren in grenen kozijnen
  • Duurzame PVC vloer
  • Complete maatwerk keuken
  • Badkamer met inloopdouche en toilet

Villea exclusief

EXTERIEUR

  • Triple glas
  • Aluminium composiet overstekken
  • Verduurzaamde houten gevelbekleding
  • Rolluiken of screens

INTERIEUR

  • Airconditioning
  • Vloerverwarming
  • WTW-systeem
  • Maatwerk inbouwkasten
  • Staallook deuren
  • Luxe badkamer met bad

Offerte aanvragen

Naam

Deze site wordt beschermd door reCAPTCHA en de Privacy Policy en Servicevoorwaarden van Google gelden.