Overslaan en naar de inhoud gaan
Offerte aanvragen

Offerte aanvragen


Benieuwd naar de kosten voor een Villea woning die aansluit bij uw wensen? Vraag eenvoudig en vrijblijvend een offerte aan. Vul het formulier in en u ontvangt binnen 1 werkdag een eerste richtprijs op maat. Daarna nemen we snel contact met u op om alles door te spreken.

Naam

Deze site wordt beschermd door reCAPTCHA en de Privacy Policy en Servicevoorwaarden van Google gelden.

085 – 333 2440 Wijk en Aalburg

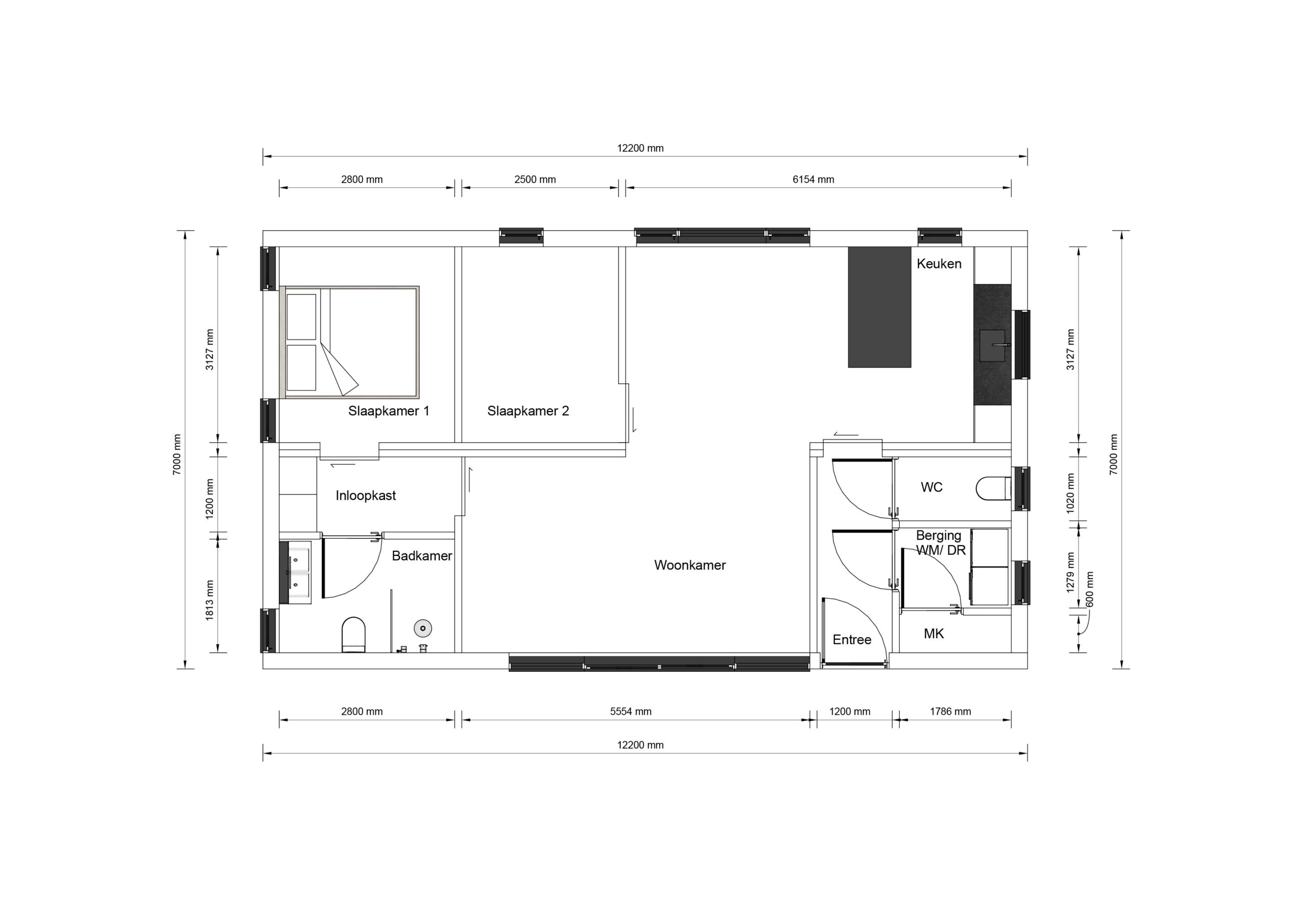
Mantelzorgwoning Navero

  • 85 woonoppervlakte
  • 2 slaapkamer(s)

Mantelzorgwoning Navero

85m2 woonoppervlakte      2 slaapkamer(s)
Over mantelzorgwoning Navero 85m2
De Navero is een hoogwaardige prefab woning met een elegant zadeldak, perfect voor 1 of 2 personen of als mantelzorgwoning. Met een lengte van 12,2 meter en een breedte van 7 meter biedt deze woning een slimme indeling die optimaal gebruik maakt van de beschikbare ruimte. De twee slaapkamers zijn ontworpen voor comfort en rust, terwijl de grote ramen zorgen voor een overvloed aan natuurlijk licht, wat de leefruimtes uitnodigend en aangenaam maakt. De moderne uitstraling van de Navero, gecombineerd met praktische elementen, maakt het een ideale keuze voor wie waarde hecht aan zowel esthetiek als functionaliteit. De plattegrond is zorgvuldig samengesteld om een gevoel van ruimte te creëren, waardoor de Navero niet alleen een woning is, maar een plek waar men zich echt thuis kan voelen.

Details

  • Lengte: 12.2 meter

  • Breedte: 7 meter

  • 85m2 oppervlakte

  • Plat dak

  • 2 slaapkamer(s)

Indeling

Villea Comfort

EXTERIEUR

  • Onderhoudsvrije gevelafwerking
  • Aluminium kozijnen met HR++ glas
  • Isolatiewaarden boven de Bouwbesluiteisen

INTERIEUR

  • Geïsoleerde binnenwanden
  • Naadloze wanden en plafonds in kleur.
  • Hoge, brede binnendeuren in grenen kozijnen
  • Duurzame PVC vloer
  • Complete maatwerk keuken
  • Badkamer met inloopdouche en toilet

Villea exclusief

EXTERIEUR

  • Triple glas
  • Aluminium composiet overstekken
  • Verduurzaamde houten gevelbekleding
  • Rolluiken of screens

INTERIEUR

  • Airconditioning
  • Vloerverwarming
  • WTW-systeem
  • Maatwerk inbouwkasten
  • Staallook deuren
  • Luxe badkamer met bad

Offerte aanvragen

Naam

Deze site wordt beschermd door reCAPTCHA en de Privacy Policy en Servicevoorwaarden van Google gelden.