Overslaan en naar de inhoud gaan
Offerte aanvragen

Offerte aanvragen


Benieuwd naar de kosten voor een Villea woning die aansluit bij uw wensen? Vraag eenvoudig en vrijblijvend een offerte aan. Vul het formulier in en u ontvangt binnen 1 werkdag een eerste richtprijs op maat. Daarna nemen we snel contact met u op om alles door te spreken.

Naam

Deze site wordt beschermd door reCAPTCHA en de Privacy Policy en Servicevoorwaarden van Google gelden.

085 – 333 2440 Wijk en Aalburg

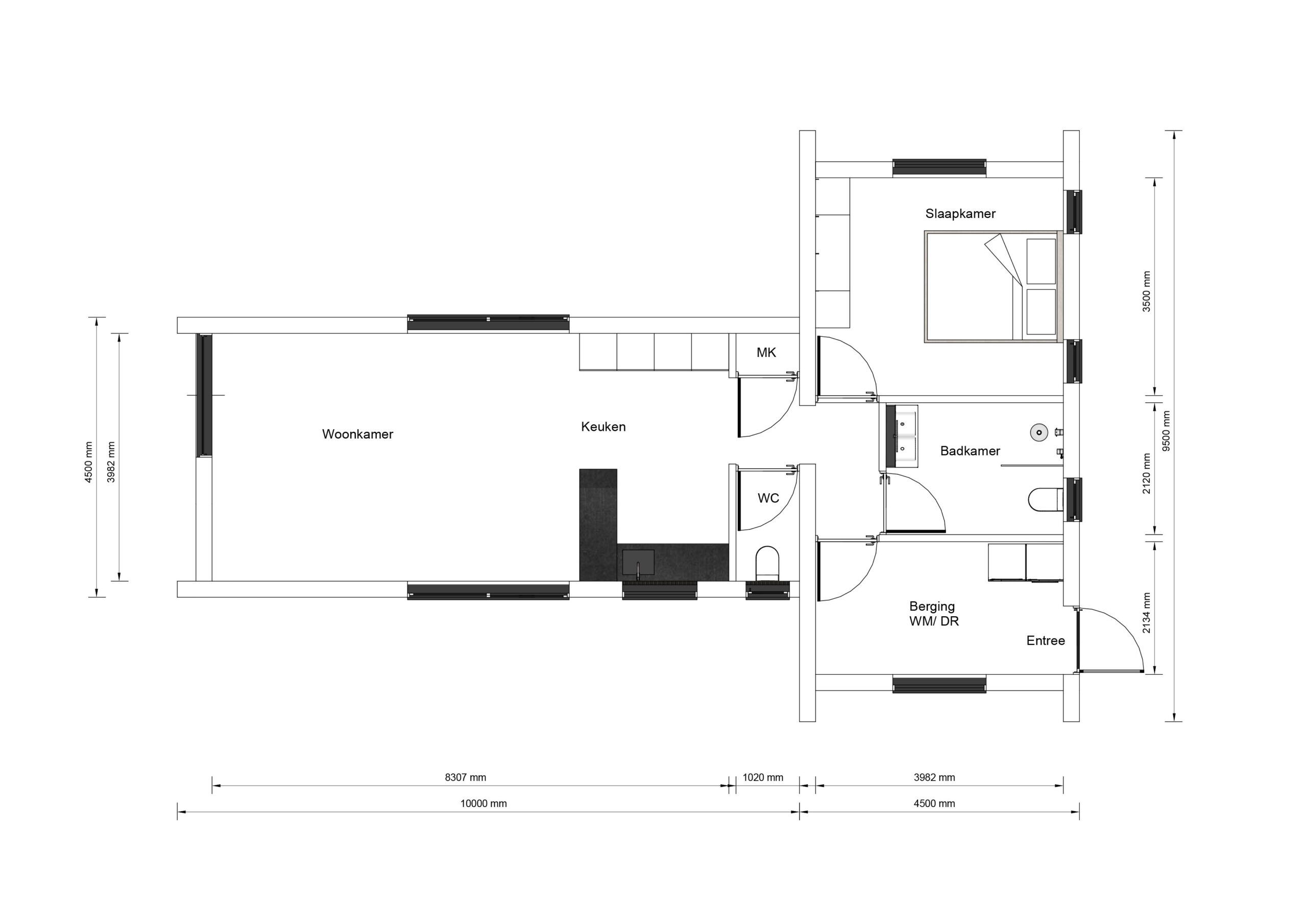
Mantelzorgwoning Marona

  • 81 woonoppervlakte
  • 1 slaapkamer(s)

Mantelzorgwoning Marona

81m2 woonoppervlakte      1 slaapkamer(s)
Over mantelzorgwoning Marona 81m2
Deze prefab mantelzorgwoning van 81 m² is ontworpen met een stijlvol zadeldak, wat zorgt voor een tijdloze en rustige uitstraling. De indeling is efficiënt opgezet, waardoor de beschikbare ruimte optimaal wordt benut. De lichte en uitnodigende woonkamer vormt het hart van de woning en biedt een comfortabele plek om te ontspannen. De ruime slaapkamer is praktisch ingedeeld en biedt voldoende plek voor een comfortabel bed en extra opbergruimte. Deze woning combineert functionaliteit met een vertrouwde, huiselijke sfeer — ideaal voor langdurig en prettig zelfstandig wonen.

Details

  • Lengte: 14.5 meter

  • Breedte: 8.5 meter

  • 81m2 oppervlakte

  • Zadeldak

  • 1 slaapkamer(s)

Indeling

Villea Comfort

EXTERIEUR

  • Onderhoudsvrije gevelafwerking
  • Aluminium kozijnen met HR++ glas
  • Isolatiewaarden boven de Bouwbesluiteisen

INTERIEUR

  • Geïsoleerde binnenwanden
  • Naadloze wanden en plafonds in kleur.
  • Hoge, brede binnendeuren in grenen kozijnen
  • Duurzame PVC vloer
  • Complete maatwerk keuken
  • Badkamer met inloopdouche en toilet

Villea exclusief

EXTERIEUR

  • Triple glas
  • Aluminium composiet overstekken
  • Verduurzaamde houten gevelbekleding
  • Rolluiken of screens

INTERIEUR

  • Airconditioning
  • Vloerverwarming
  • WTW-systeem
  • Maatwerk inbouwkasten
  • Staallook deuren
  • Luxe badkamer met bad

Offerte aanvragen

Naam

Deze site wordt beschermd door reCAPTCHA en de Privacy Policy en Servicevoorwaarden van Google gelden.