Overslaan en naar de inhoud gaan
Offerte aanvragen

Offerte aanvragen


Benieuwd naar de kosten voor een Villea woning die aansluit bij uw wensen? Vraag eenvoudig en vrijblijvend een offerte aan. Vul het formulier in en u ontvangt binnen 1 werkdag een eerste richtprijs op maat. Daarna nemen we snel contact met u op om alles door te spreken.

Naam

Deze site wordt beschermd door reCAPTCHA en de Privacy Policy en Servicevoorwaarden van Google gelden.

085 – 333 2440 Wijk en Aalburg

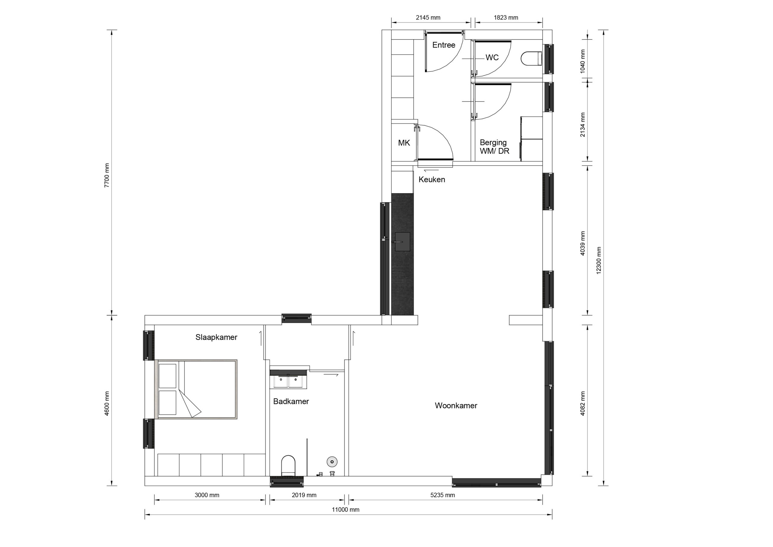
Mantelzorgwoning Lomira

  • 86 woonoppervlakte
  • 1 slaapkamer(s)

Mantelzorgwoning Lomira

86m2 woonoppervlakte      1 slaapkamer(s)
Over mantelzorgwoning Lomira 86m2
De Lomira is een hoogwaardige prefab woning die perfect is voor één of twee personen, of als mantelzorgwoning. Met een plat dak en een afmeting van 11 bij 12,3 meter biedt deze woning een slimme indeling die optimaal gebruikmaakt van de beschikbare ruimte. De grote ramen zorgen voor een overvloed aan natuurlijk licht, wat bijdraagt aan een aangename en comfortabele leefomgeving. De praktische indeling omvat een ruime slaapkamer en een open leefruimte die uitnodigt tot gezelligheid en ontspanning. Het ontwerp van de Lomira straalt moderniteit en elegantie uit, waardoor het een aantrekkelijke keuze is voor wie waarde hecht aan zowel functionaliteit als esthetiek. De plattegrond is zorgvuldig ontworpen om een gevoel van ruimte te creëren, wat deze woning bijzonder maakt voor diverse woonbehoeften.

Details

  • Lengte: 11 meter

  • Breedte: 12.3 meter

  • 86m2 oppervlakte

  • Plat dak

  • 1 slaapkamer(s)

Indeling

Villea Comfort

EXTERIEUR

  • Onderhoudsvrije gevelafwerking
  • Aluminium kozijnen met HR++ glas
  • Isolatiewaarden boven de Bouwbesluiteisen

INTERIEUR

  • Geïsoleerde binnenwanden
  • Naadloze wanden en plafonds in kleur.
  • Hoge, brede binnendeuren in grenen kozijnen
  • Duurzame PVC vloer
  • Complete maatwerk keuken
  • Badkamer met inloopdouche en toilet

Villea exclusief

EXTERIEUR

  • Triple glas
  • Aluminium composiet overstekken
  • Verduurzaamde houten gevelbekleding
  • Rolluiken of screens

INTERIEUR

  • Airconditioning
  • Vloerverwarming
  • WTW-systeem
  • Maatwerk inbouwkasten
  • Staallook deuren
  • Luxe badkamer met bad

Offerte aanvragen

Naam

Deze site wordt beschermd door reCAPTCHA en de Privacy Policy en Servicevoorwaarden van Google gelden.