Overslaan en naar de inhoud gaan
Offerte aanvragen

Offerte aanvragen


Benieuwd naar de kosten voor een Villea woning die aansluit bij uw wensen? Vraag eenvoudig en vrijblijvend een offerte aan. Vul het formulier in en u ontvangt binnen 1 werkdag een eerste richtprijs op maat. Daarna nemen we snel contact met u op om alles door te spreken.

Naam

Deze site wordt beschermd door reCAPTCHA en de Privacy Policy en Servicevoorwaarden van Google gelden.

085 – 333 2440 Wijk en Aalburg

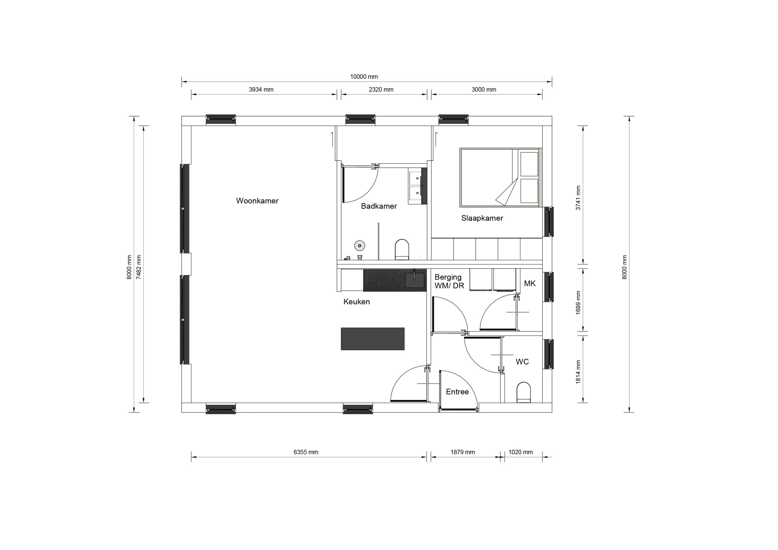
Mantelzorgwoning Ervata

  • 80 woonoppervlakte
  • 1 slaapkamer(s)

Mantelzorgwoning Ervata

80m2 woonoppervlakte      1 slaapkamer(s)
Over mantelzorgwoning Ervata 80m2
De Ervata is een hoogwaardige prefab woning met een elegant zadeldak, ontworpen voor 1 of 2 personen, ideaal als mantelzorgwoning. Met een afmeting van 10 bij 8 meter biedt deze woning een slimme indeling die comfort en functionaliteit combineert. De ruime slaapkamer en praktische leefruimtes zijn optimaal benut, waardoor er een gevoel van ruimte en lichtinval ontstaat. Het ontwerp straalt moderniteit uit, met een focus op duurzame materialen en een verfijnde afwerking. De plattegrond van de Ervata is bijzonder door de doordachte indeling, die zorgt voor een harmonieuze flow tussen de verschillende ruimtes. Deze woning is perfect voor wie waarde hecht aan kwaliteit en een stijlvolle uitstraling.

Details

  • Lengte: 10 meter

  • Breedte: 8 meter

  • 80m2 oppervlakte

  • Zadeldak

  • 1 slaapkamer(s)

Indeling

Villea Comfort

EXTERIEUR

  • Onderhoudsvrije gevelafwerking
  • Aluminium kozijnen met HR++ glas
  • Isolatiewaarden boven de Bouwbesluiteisen

INTERIEUR

  • Geïsoleerde binnenwanden
  • Naadloze wanden en plafonds in kleur.
  • Hoge, brede binnendeuren in grenen kozijnen
  • Duurzame PVC vloer
  • Complete maatwerk keuken
  • Badkamer met inloopdouche en toilet

Villea exclusief

EXTERIEUR

  • Triple glas
  • Aluminium composiet overstekken
  • Verduurzaamde houten gevelbekleding
  • Rolluiken of screens

INTERIEUR

  • Airconditioning
  • Vloerverwarming
  • WTW-systeem
  • Maatwerk inbouwkasten
  • Staallook deuren
  • Luxe badkamer met bad

Offerte aanvragen

Naam

Deze site wordt beschermd door reCAPTCHA en de Privacy Policy en Servicevoorwaarden van Google gelden.