Overslaan en naar de inhoud gaan
Offerte aanvragen

Offerte aanvragen


Benieuwd naar de kosten voor een Villea woning die aansluit bij uw wensen? Vraag eenvoudig en vrijblijvend een offerte aan. Vul het formulier in en u ontvangt binnen 1 werkdag een eerste richtprijs op maat. Daarna nemen we snel contact met u op om alles door te spreken.

Naam

Deze site wordt beschermd door reCAPTCHA en de Privacy Policy en Servicevoorwaarden van Google gelden.

085 – 333 2440 Wijk en Aalburg

Mantelzorgwoning Delino

  • 88 woonoppervlakte
  • 1 slaapkamer(s)

Mantelzorgwoning Delino

88m2 woonoppervlakte      1 slaapkamer(s)
Over mantelzorgwoning Delino 88m2
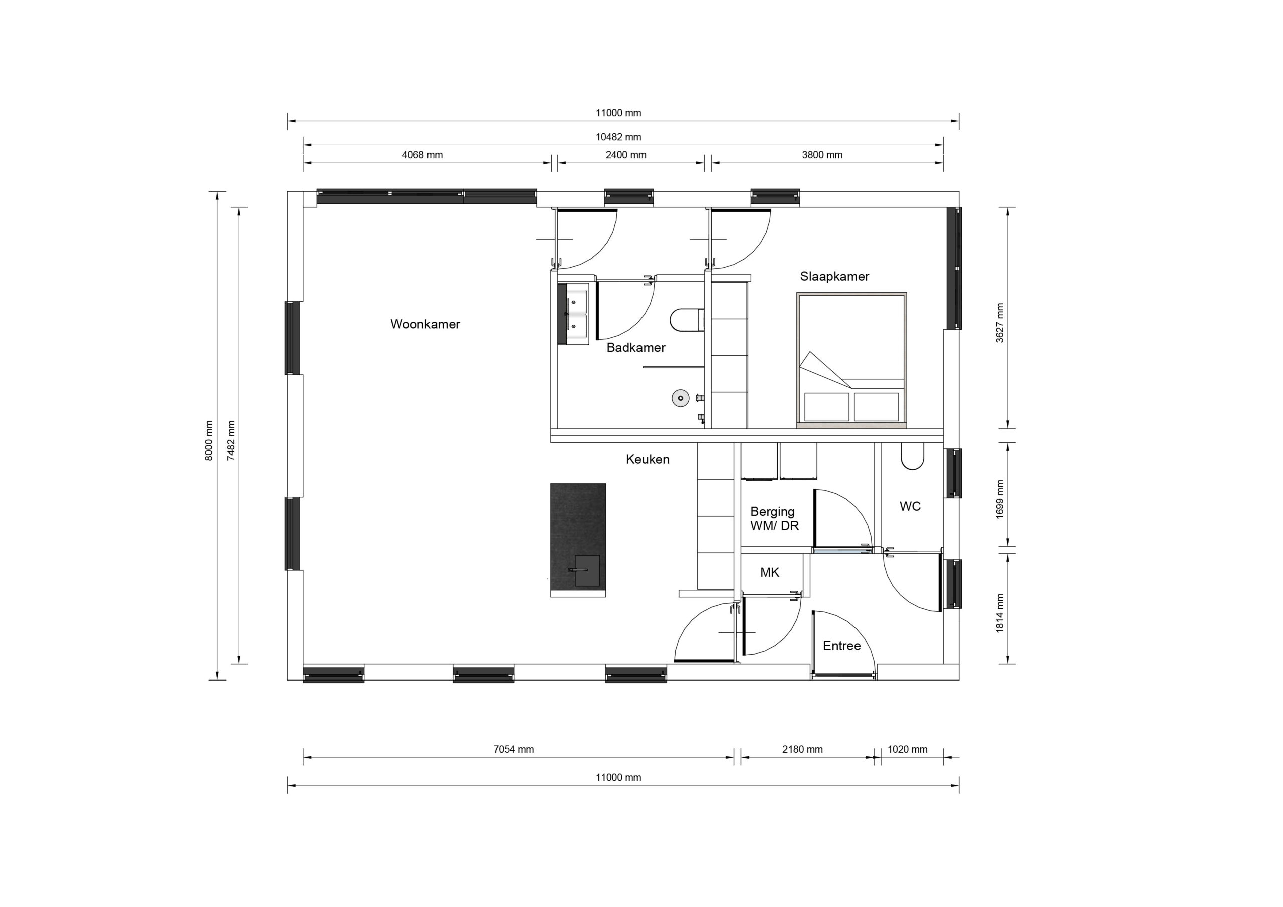
De Delino is een hoogwaardige prefab woning die perfect is voor 1 of 2 personen, of als mantelzorgwoning. Met een plat dak en een slimme indeling van 11 bij 8 meter, biedt deze woning een comfortabele leefruimte die optimaal gebruik maakt van natuurlijk licht. De woning beschikt over een slaapkamer en praktische ruimtes die het dagelijks leven vergemakkelijken. Het ontwerp van de Delino straalt moderniteit en functionaliteit uit, waardoor het een aantrekkelijke keuze is voor wie waarde hecht aan kwaliteit en stijl. De plattegrond is zorgvuldig ontworpen om een gevoel van ruimte te creëren, met een focus op comfort en gebruiksgemak. Deze woning is ideaal voor diegenen die op zoek zijn naar een praktische en stijlvolle oplossing.

Details

  • Lengte: 11 meter

  • Breedte: 8 meter

  • 88m2 oppervlakte

  • Plat dak

  • 1 slaapkamer(s)

Indeling

Villea Comfort

EXTERIEUR

  • Onderhoudsvrije gevelafwerking
  • Aluminium kozijnen met HR++ glas
  • Isolatiewaarden boven de Bouwbesluiteisen

INTERIEUR

  • Geïsoleerde binnenwanden
  • Naadloze wanden en plafonds in kleur.
  • Hoge, brede binnendeuren in grenen kozijnen
  • Duurzame PVC vloer
  • Complete maatwerk keuken
  • Badkamer met inloopdouche en toilet

Villea exclusief

EXTERIEUR

  • Triple glas
  • Aluminium composiet overstekken
  • Verduurzaamde houten gevelbekleding
  • Rolluiken of screens

INTERIEUR

  • Airconditioning
  • Vloerverwarming
  • WTW-systeem
  • Maatwerk inbouwkasten
  • Staallook deuren
  • Luxe badkamer met bad

Offerte aanvragen

Naam

Deze site wordt beschermd door reCAPTCHA en de Privacy Policy en Servicevoorwaarden van Google gelden.