Skip to main content
Offerte aanvragen

Offerte aanvragen


Benieuwd naar de kosten voor een Villea woning die aansluit bij uw wensen? Vraag eenvoudig en vrijblijvend een offerte aan. Vul het formulier in en u ontvangt binnen 1 werkdag een eerste richtprijs op maat. Daarna nemen we snel contact met u op om alles door te spreken.

Naam

Deze site wordt beschermd door reCAPTCHA en de Privacy Policy en Servicevoorwaarden van Google gelden.

085 – 333 2440 Wijk en Aalburg

Corvina

  • 100 woonoppervlakte
  • 2 slaapkamer(s)

Corvina

100m2 woonoppervlakte      2 slaapkamer(s)

Over dit model

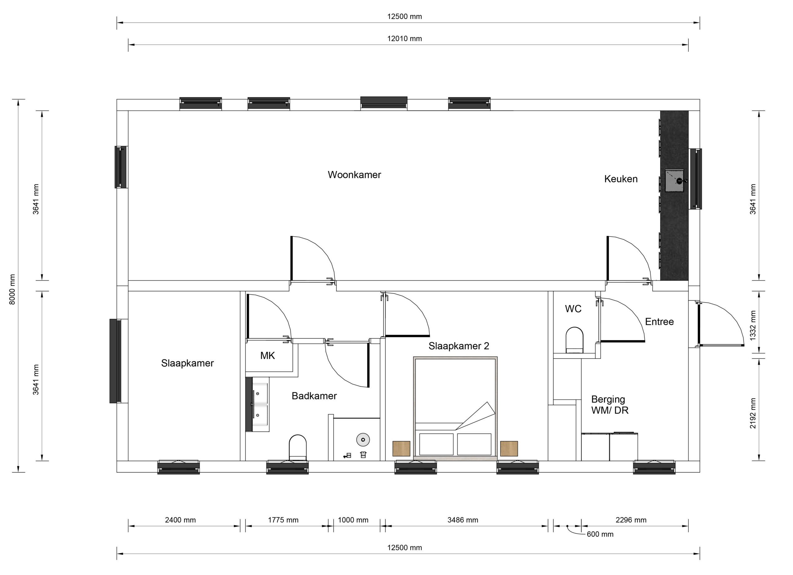
De Corvina is een moderne woning van 100 m² met een opvallend zadeldak en een warme, natuurlijke uitstraling. De verticale houten gevelpanelen en grote glaspartijen zorgen voor een open sfeer en veel daglicht. De woning ligt volledig gelijkvloers en is praktisch ingedeeld, met een sterke focus op comfort en buitenleven. Binnen biedt de Corvina twee slaapkamers, een royale woonkamer met open keuken, een los toilet, een berging en een veranda aan de voorzijde. De leefruimte is licht en overzichtelijk, met directe toegang tot het terras en de tuin. Het zadeldak zorgt voor extra hoogte en ruimtelijkheid, wat de woning een bijzondere sfeer geeft. De veranda vormt een fijne overgang tussen binnen en buiten, ideaal voor ontspanning of sociale momenten. De Corvina is geschikt voor diverse woonvormen: van zelfstandig wonen tot mantelzorg of werken aan huis. Dankzij de heldere plattegrond en het rustige ontwerp is dit model eenvoudig aan te passen aan persoonlijke voorkeuren, zoals vaste kastruimte, zonwering of extra voorzieningen. Een woning die elegantie, functionaliteit en flexibiliteit combineert — perfect voor comfortabel wonen in een groene omgeving.

Details

  • Lengte: 12.5 meter

  • Breedte: 8 meter

  • 100m2 oppervlakte

  • Lessenaars Dak

  • 2 slaapkamer(s)

Indeling

Villea Comfort

EXTERIEUR

  • Onderhoudsvrije gevelafwerking
  • Aluminium kozijnen met HR++ glas
  • Isolatiewaarden boven de Bouwbesluiteisen

INTERIEUR

  • Geïsoleerde binnenwanden
  • Naadloze wanden en plafonds in kleur.
  • Hoge, brede binnendeuren in grenen kozijnen
  • Duurzame PVC vloer
  • Complete maatwerk keuken
  • Badkamer met inloopdouche en toilet

Villea exclusief

EXTERIEUR

  • Triple glas
  • Aluminium composiet overstekken
  • Verduurzaamde houten gevelbekleding
  • Rolluiken of screens

INTERIEUR

  • Airconditioning
  • Vloerverwarming
  • WTW-systeem
  • Maatwerk inbouwkasten
  • Staallook deuren
  • Luxe badkamer met bad

Offerte aanvragen

Naam

Deze site wordt beschermd door reCAPTCHA en de Privacy Policy en Servicevoorwaarden van Google gelden.