Overslaan en naar de inhoud gaan
Offerte aanvragen

Offerte aanvragen


Benieuwd naar de kosten voor een Villea woning die aansluit bij uw wensen? Vraag eenvoudig en vrijblijvend een offerte aan. Vul het formulier in en u ontvangt binnen 1 werkdag een eerste richtprijs op maat. Daarna nemen we snel contact met u op om alles door te spreken.

Naam

Deze site wordt beschermd door reCAPTCHA en de Privacy Policy en Servicevoorwaarden van Google gelden.

085 – 333 2440 Wijk en Aalburg

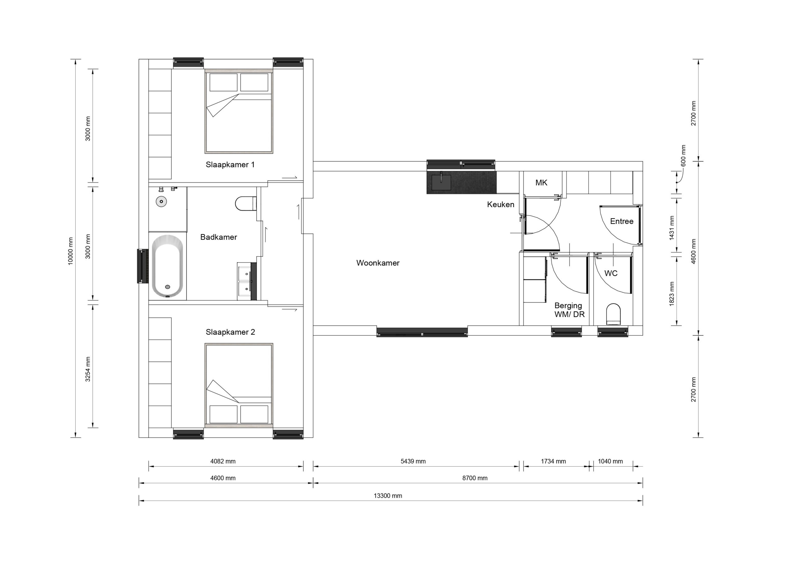
Mantelzorgwoning Calera

  • 86 woonoppervlakte
  • 2 slaapkamer(s)

Mantelzorgwoning Calera

86m2 woonoppervlakte      2 slaapkamer(s)
Over mantelzorgwoning Calera 86m2
De Calera is een hoogwaardige prefab woning die perfect is voor één of twee personen, of als mantelzorgwoning. Met een plat dak en een slimme indeling van 10 bij 13,3 meter, biedt deze woning een optimale benutting van de beschikbare ruimte. De woning beschikt over twee comfortabele slaapkamers en is ontworpen met een focus op lichtinval, wat zorgt voor een aangename en uitnodigende sfeer. De praktische leefruimtes zijn zorgvuldig ingericht om functionaliteit en comfort te combineren, waardoor de Calera een ideale keuze is voor wie waarde hecht aan kwaliteit en stijl. Het moderne ontwerp van de woning straalt een eigentijdse elegantie uit, terwijl de plattegrond een unieke flow biedt die het dagelijks leven vergemakkelijkt.

Details

  • Lengte: 10 meter

  • Breedte: 13.3 meter

  • 86m2 oppervlakte

  • Plat dak

  • 2 slaapkamer(s)

Indeling

Villea Comfort

EXTERIEUR

  • Onderhoudsvrije gevelafwerking
  • Aluminium kozijnen met HR++ glas
  • Isolatiewaarden boven de Bouwbesluiteisen

INTERIEUR

  • Geïsoleerde binnenwanden
  • Naadloze wanden en plafonds in kleur.
  • Hoge, brede binnendeuren in grenen kozijnen
  • Duurzame PVC vloer
  • Complete maatwerk keuken
  • Badkamer met inloopdouche en toilet

Villea exclusief

EXTERIEUR

  • Triple glas
  • Aluminium composiet overstekken
  • Verduurzaamde houten gevelbekleding
  • Rolluiken of screens

INTERIEUR

  • Airconditioning
  • Vloerverwarming
  • WTW-systeem
  • Maatwerk inbouwkasten
  • Staallook deuren
  • Luxe badkamer met bad

Offerte aanvragen

Naam

Deze site wordt beschermd door reCAPTCHA en de Privacy Policy en Servicevoorwaarden van Google gelden.