Overslaan en naar de inhoud gaan
Offerte aanvragen

Offerte aanvragen


Benieuwd naar de kosten voor een Villea woning die aansluit bij uw wensen? Vraag eenvoudig en vrijblijvend een offerte aan. Vul het formulier in en u ontvangt binnen 1 werkdag een eerste richtprijs op maat. Daarna nemen we snel contact met u op om alles door te spreken.

Naam

Deze site wordt beschermd door reCAPTCHA en de Privacy Policy en Servicevoorwaarden van Google gelden.

085 – 333 2440 Wijk en Aalburg

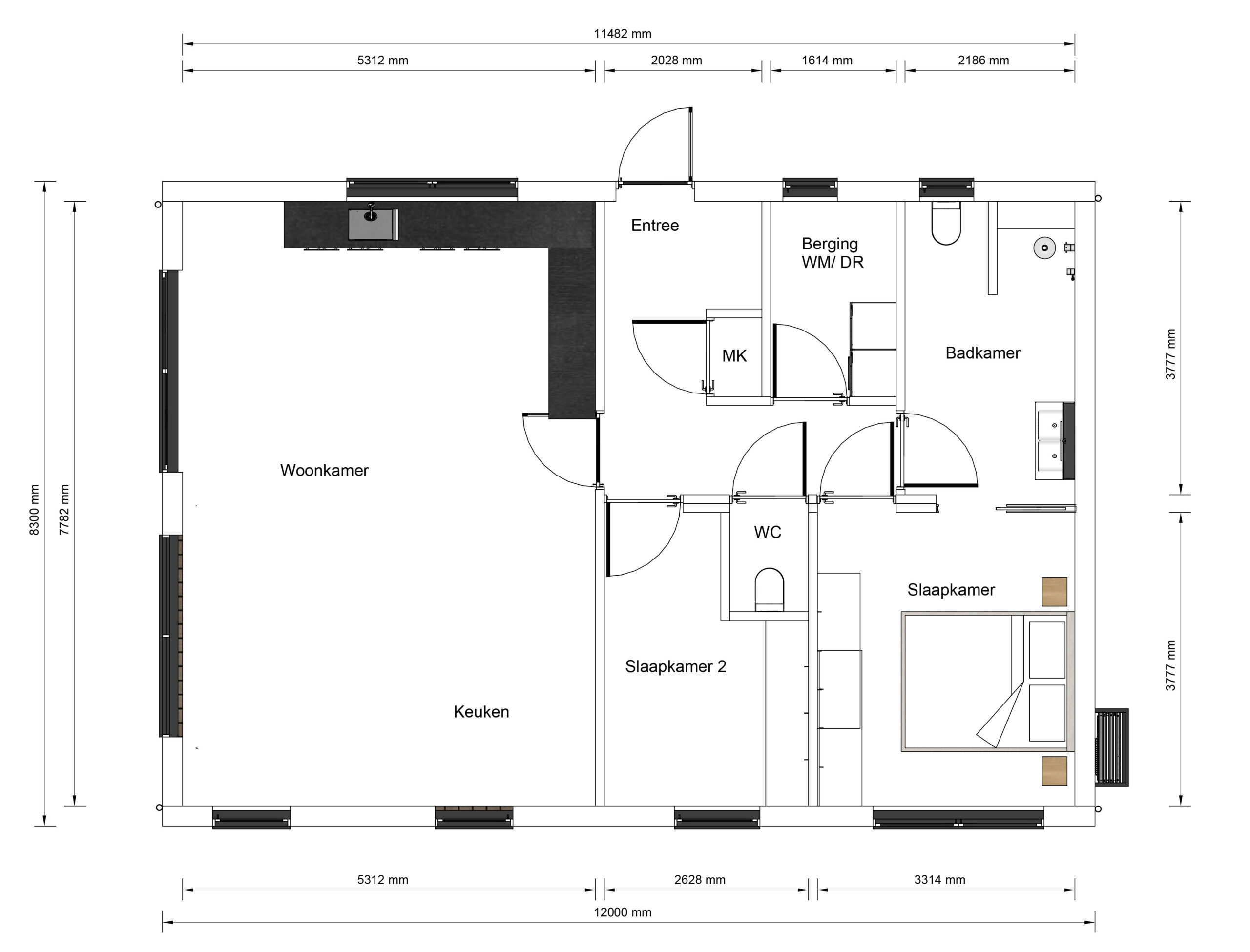
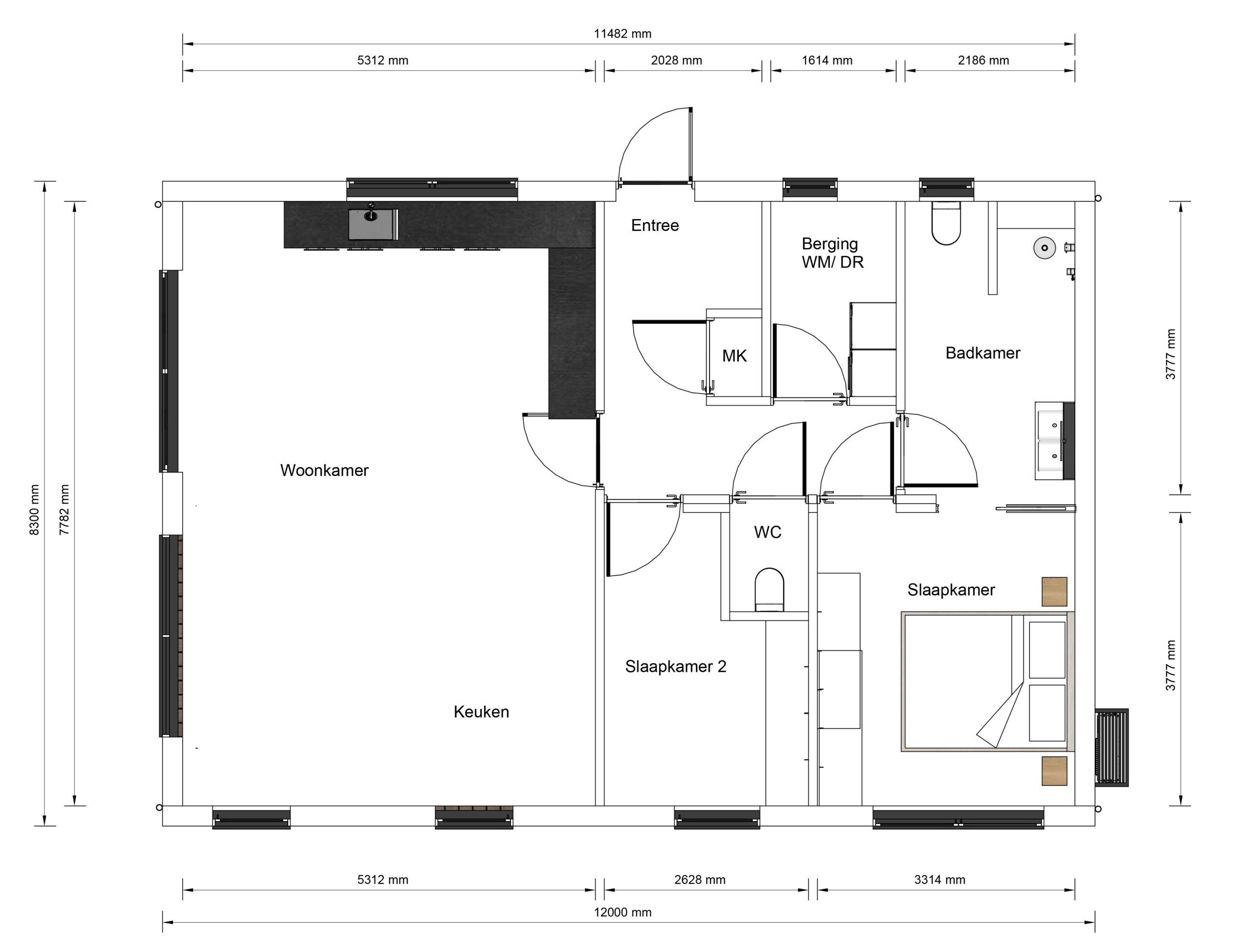
Mantelzorgwoning Arluna

  • 100 woonoppervlakte
  • 2 slaapkamer(s)

Mantelzorgwoning Arluna

100m2 woonoppervlakte      2 slaapkamer(s)
Over mantelzorgwoning Arluna 100m2
De Arluna is een eigentijdse woning van 100 m², ontworpen voor wie rust, ruimte en verbondenheid met de natuur belangrijk vindt. Het platte dak en de verticale houten gevel geven het model een moderne en warme uitstraling, terwijl de grote ramen zorgen voor veel daglicht en een open sfeer. De woning ligt volledig gelijkvloers en is praktisch ingedeeld. Binnen biedt de Arluna twee slaapkamers, een royale woonkamer met open keuken, een los toilet, een berging en een veranda aan de voorzijde. De leefruimte is ruim en overzichtelijk, met directe toegang tot het terras en de tuin. De veranda vormt een fijne overgang tussen binnen en buiten, perfect voor ontspanning of sociale momenten. De berging zorgt voor extra opbergruimte, zodat de woning netjes en functioneel blijft. De Arluna is geschikt voor diverse woonvormen: van zelfstandig wonen tot mantelzorg of werken aan huis. Dankzij de heldere plattegrond en het rustige ontwerp is dit model eenvoudig aan te passen aan persoonlijke voorkeuren, zoals vaste kastruimte, zonwering of extra voorzieningen. Een woning die rust en stijl combineert met praktische flexibiliteit — klaar voor nu én de toekomst.

Details

  • Lengte: 12 meter

  • Breedte: 8.3 meter

  • 100m2 oppervlakte

  • Plat dak

  • 2 slaapkamer(s)

Indeling

Villea Comfort

EXTERIEUR

  • Onderhoudsvrije gevelafwerking
  • Aluminium kozijnen met HR++ glas
  • Isolatiewaarden boven de Bouwbesluiteisen

INTERIEUR

  • Geïsoleerde binnenwanden
  • Naadloze wanden en plafonds in kleur.
  • Hoge, brede binnendeuren in grenen kozijnen
  • Duurzame PVC vloer
  • Complete maatwerk keuken
  • Badkamer met inloopdouche en toilet

Villea exclusief

EXTERIEUR

  • Triple glas
  • Aluminium composiet overstekken
  • Verduurzaamde houten gevelbekleding
  • Rolluiken of screens

INTERIEUR

  • Airconditioning
  • Vloerverwarming
  • WTW-systeem
  • Maatwerk inbouwkasten
  • Staallook deuren
  • Luxe badkamer met bad

Offerte aanvragen

Naam

Deze site wordt beschermd door reCAPTCHA en de Privacy Policy en Servicevoorwaarden van Google gelden.