Overslaan en naar de inhoud gaan
Offerte aanvragen

Offerte aanvragen


Benieuwd naar de kosten voor een Villea woning die aansluit bij uw wensen? Vraag eenvoudig en vrijblijvend een offerte aan. Vul het formulier in en u ontvangt binnen 1 werkdag een eerste richtprijs op maat. Daarna nemen we snel contact met u op om alles door te spreken.

Naam

Deze site wordt beschermd door reCAPTCHA en de Privacy Policy en Servicevoorwaarden van Google gelden.

085 – 333 2440 Wijk en Aalburg

Mantelzorgwoning Valerio

  • 73 woonoppervlakte
  • 1 slaapkamer(s)
Vraag vrijblijvend een richtprijs aan

Gratis prijsopgave aanvragen

Ontvang binnen enkele minuten de kosten van deze woning in je mailbox.
Naam

Deze site wordt beschermd door reCAPTCHA en de Privacy Policy en Servicevoorwaarden van Google gelden.

Mantelzorgwoning Valerio

73m2 woonoppervlakte      1 slaapkamer(s)
Vraag vrijblijvend een richtprijs aan

Gratis prijsopgave aanvragen

Ontvang binnen enkele minuten de kosten van deze woning in je mailbox.

Naam

Deze site wordt beschermd door reCAPTCHA en de Privacy Policy en Servicevoorwaarden van Google gelden.

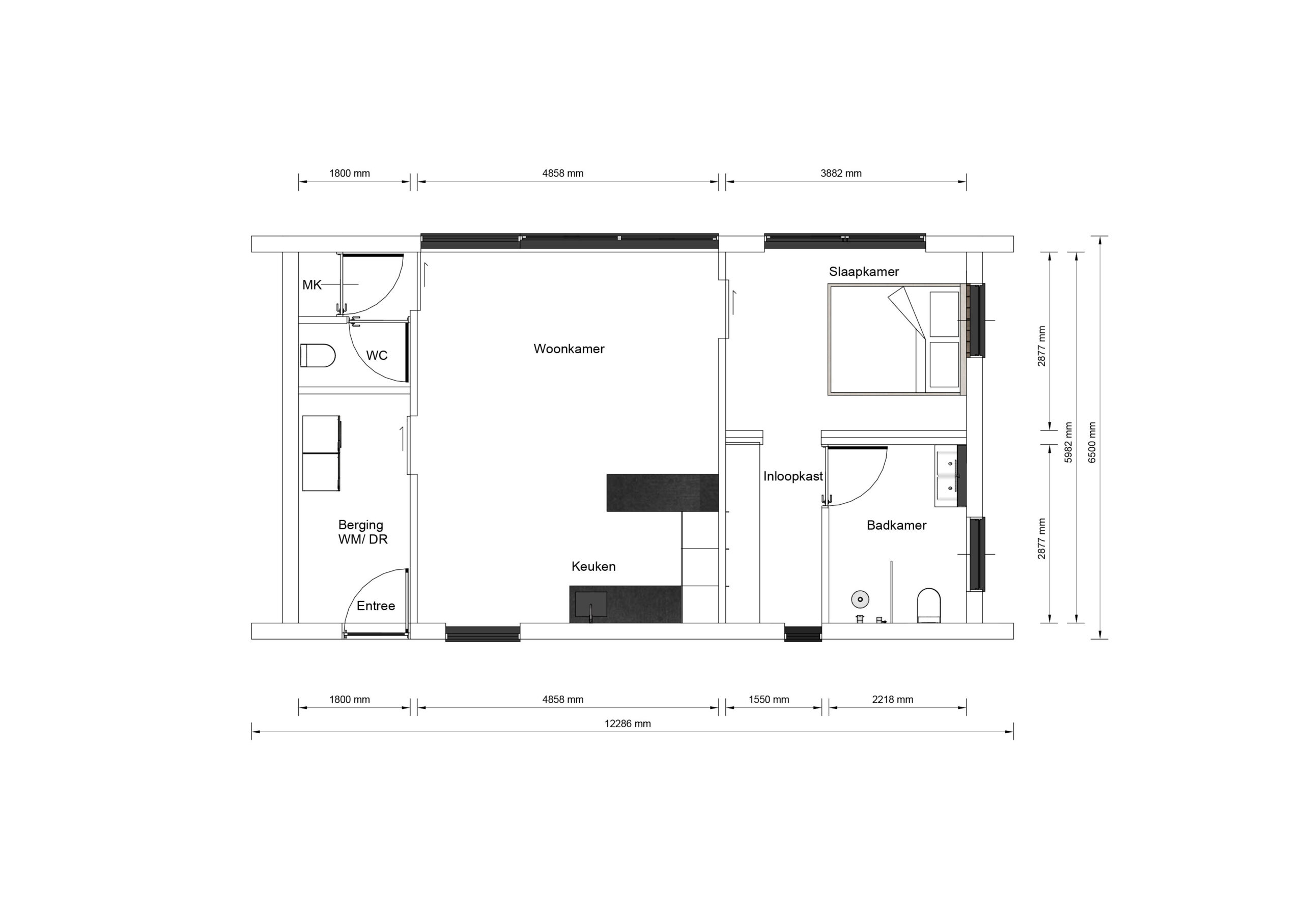
Over mantelzorgwoning Valerio 73m2
Deze mantelzorgwoning van 75 m² heeft een praktische en overzichtelijke indeling, waardoor alle ruimtes prettig op elkaar aansluiten. Met één ruime slaapkamer en een lichte leefruimte biedt deze woning alles voor comfortabel en zelfstandig wonen. Het zadeldak met een markante sprong geeft de woning een onderscheidende en moderne uitstraling. Deze vorm zorgt voor extra karakter in het ontwerp en versterkt het ruimtelijke gevoel binnen.

Details

  • Lengte: 11.3 meter

  • Breedte: 6.5 meter

  • 73m2 oppervlakte

  • Versprongen dak

  • 1 slaapkamer(s)

Indeling

Villea Comfort

EXTERIEUR

  • Onderhoudsvrije gevelafwerking
  • Aluminium kozijnen met HR++ glas
  • Isolatiewaarden boven de Bouwbesluiteisen

INTERIEUR

  • Geïsoleerde binnenwanden
  • Naadloze wanden en plafonds in kleur.
  • Hoge, brede binnendeuren in grenen kozijnen
  • Duurzame PVC vloer
  • Complete maatwerk keuken
  • Badkamer met inloopdouche en toilet

Villea exclusief

EXTERIEUR

  • Triple glas
  • Aluminium composiet overstekken
  • Verduurzaamde houten gevelbekleding
  • Rolluiken of screens

INTERIEUR

  • Airconditioning
  • Vloerverwarming
  • WTW-systeem
  • Maatwerk inbouwkasten
  • Staallook deuren
  • Luxe badkamer met bad

Gratis prijsopgave aanvragen

Ontvang binnen enkele minuten de kosten van deze woning in je mailbox.

Naam

Deze site wordt beschermd door reCAPTCHA en de Privacy Policy en Servicevoorwaarden van Google gelden.