Overslaan en naar de inhoud gaan
Offerte aanvragen

Offerte aanvragen


Benieuwd naar de kosten voor een Villea woning die aansluit bij uw wensen? Vraag eenvoudig en vrijblijvend een offerte aan. Vul het formulier in en u ontvangt binnen 1 werkdag een eerste richtprijs op maat. Daarna nemen we snel contact met u op om alles door te spreken.

Naam

Deze site wordt beschermd door reCAPTCHA en de Privacy Policy en Servicevoorwaarden van Google gelden.

085 – 333 2440 Wijk en Aalburg

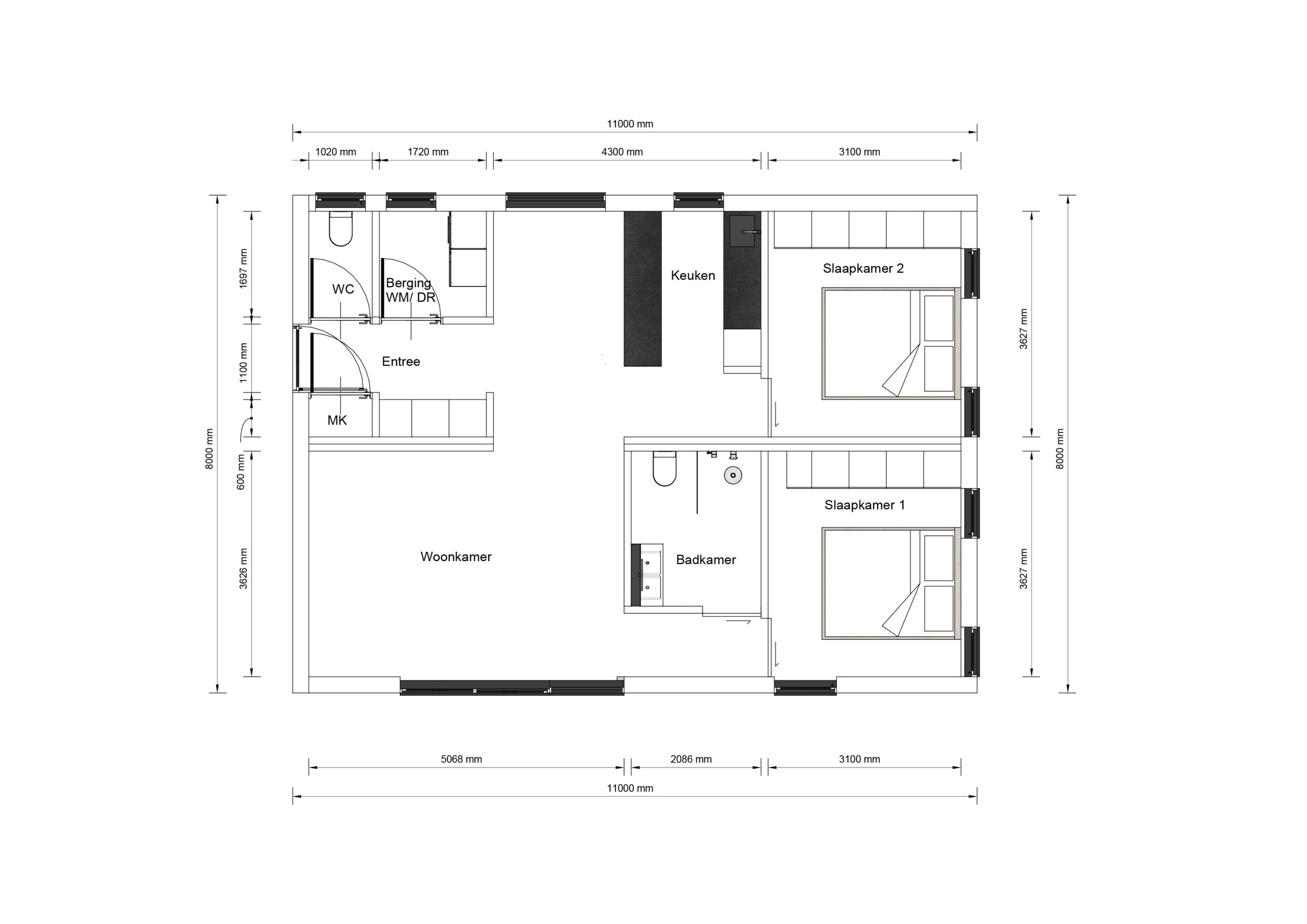
Mantelzorgwoning Linera

  • 76 woonoppervlakte
  • 2 slaapkamer(s)

Mantelzorgwoning Linera

76m2 woonoppervlakte      2 slaapkamer(s)
Over mantelzorgwoning Linera 76m2
De Linera is een hoogwaardige prefab woning die perfect is voor één of twee personen, of als mantelzorgwoning kan dienen. Met een slim ontworpen indeling van 76 m², biedt deze woning twee slaapkamers en praktische leefruimtes die optimaal gebruik maken van de beschikbare ruimte. Het lessenaarsdak geeft de woning een moderne uitstraling en zorgt voor een uitstekende lichtinval, wat bijdraagt aan een aangename woonervaring. De plattegrond is doordacht, waardoor elke vierkante meter efficiënt wordt benut, zonder in te boeten op comfort. De Linera combineert esthetiek met functionaliteit, waardoor het een ideale keuze is voor wie waarde hecht aan zowel design als praktische woonoplossingen.

Details

  • Lengte: 7.8 meter

  • Breedte: 9.8 meter

  • 76m2 oppervlakte

  • Lessenaars dak

  • 2 slaapkamer(s)

Indeling

Villea Comfort

EXTERIEUR

  • Onderhoudsvrije gevelafwerking
  • Aluminium kozijnen met HR++ glas
  • Isolatiewaarden boven de Bouwbesluiteisen

INTERIEUR

  • Geïsoleerde binnenwanden
  • Naadloze wanden en plafonds in kleur.
  • Hoge, brede binnendeuren in grenen kozijnen
  • Duurzame PVC vloer
  • Complete maatwerk keuken
  • Badkamer met inloopdouche en toilet

Villea exclusief

EXTERIEUR

  • Triple glas
  • Aluminium composiet overstekken
  • Verduurzaamde houten gevelbekleding
  • Rolluiken of screens

INTERIEUR

  • Airconditioning
  • Vloerverwarming
  • WTW-systeem
  • Maatwerk inbouwkasten
  • Staallook deuren
  • Luxe badkamer met bad

Offerte aanvragen

Naam

Deze site wordt beschermd door reCAPTCHA en de Privacy Policy en Servicevoorwaarden van Google gelden.