Overslaan en naar de inhoud gaan
Offerte aanvragen

Offerte aanvragen


Benieuwd naar de kosten voor een Villea woning die aansluit bij uw wensen? Vraag eenvoudig en vrijblijvend een offerte aan. Vul het formulier in en u ontvangt binnen 1 werkdag een eerste richtprijs op maat. Daarna nemen we snel contact met u op om alles door te spreken.

Naam

Deze site wordt beschermd door reCAPTCHA en de Privacy Policy en Servicevoorwaarden van Google gelden.

085 – 333 2440 Wijk en Aalburg

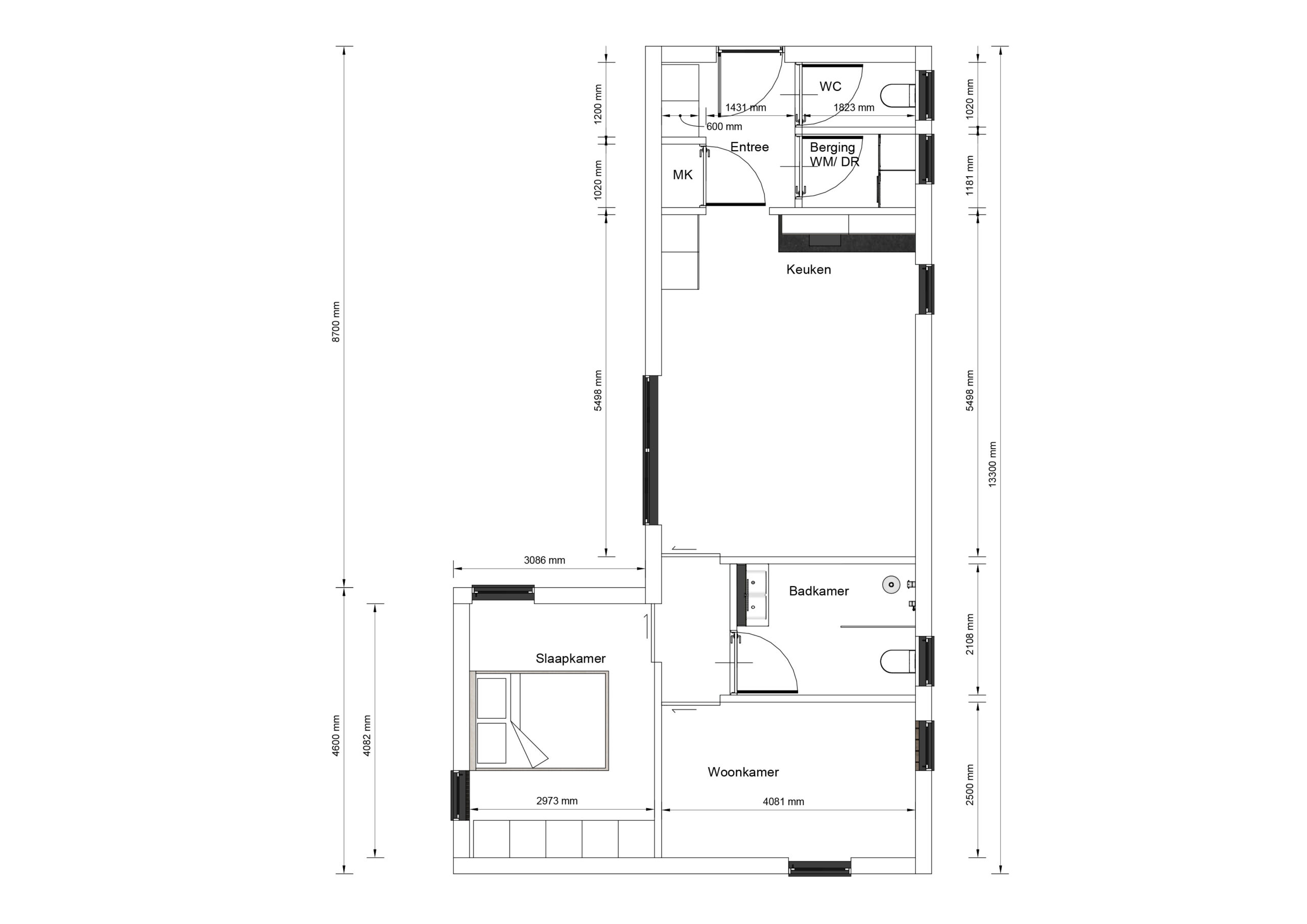
Mantelzorgwoning Torano

  • 75 woonoppervlakte
  • 2 slaapkamer(s)

Mantelzorgwoning Torano

75m2 woonoppervlakte      2 slaapkamer(s)
Over mantelzorgwoning Torano 75m2
De Torano is een hoogwaardige prefab woning die perfect is voor één of twee personen, of als mantelzorgwoning kan dienen. Met een plat dak en een afmeting van 7,7 bij 13,3 meter, biedt deze woning een slimme indeling die optimaal gebruik maakt van de beschikbare ruimte. De twee slaapkamers zijn ontworpen met comfort en lichtinval in gedachten, waardoor een aangename leefomgeving ontstaat. De praktische leefruimtes zijn stijlvol en functioneel, met een uitstraling die moderniteit en elegantie uitstraalt. Wat de plattegrond bijzonder maakt, is de doordachte indeling die zorgt voor een gevoel van ruimte en vrijheid, ideaal voor een ontspannen levensstijl.

Details

  • Lengte: 7.7 meter

  • Breedte: 13.3 meter

  • 75m2 oppervlakte

  • Plat dak

  • 2 slaapkamer(s)

Indeling

Villea Comfort

EXTERIEUR

  • Onderhoudsvrije gevelafwerking
  • Aluminium kozijnen met HR++ glas
  • Isolatiewaarden boven de Bouwbesluiteisen

INTERIEUR

  • Geïsoleerde binnenwanden
  • Naadloze wanden en plafonds in kleur.
  • Hoge, brede binnendeuren in grenen kozijnen
  • Duurzame PVC vloer
  • Complete maatwerk keuken
  • Badkamer met inloopdouche en toilet

Villea exclusief

EXTERIEUR

  • Triple glas
  • Aluminium composiet overstekken
  • Verduurzaamde houten gevelbekleding
  • Rolluiken of screens

INTERIEUR

  • Airconditioning
  • Vloerverwarming
  • WTW-systeem
  • Maatwerk inbouwkasten
  • Staallook deuren
  • Luxe badkamer met bad

Offerte aanvragen

Naam

Deze site wordt beschermd door reCAPTCHA en de Privacy Policy en Servicevoorwaarden van Google gelden.