Overslaan en naar de inhoud gaan
Offerte aanvragen

Offerte aanvragen


Benieuwd naar de kosten voor een Villea woning die aansluit bij uw wensen? Vraag eenvoudig en vrijblijvend een offerte aan. Vul het formulier in en u ontvangt binnen 1 werkdag een eerste richtprijs op maat. Daarna nemen we snel contact met u op om alles door te spreken.

Naam

Deze site wordt beschermd door reCAPTCHA en de Privacy Policy en Servicevoorwaarden van Google gelden.

085 – 333 2440 Wijk en Aalburg

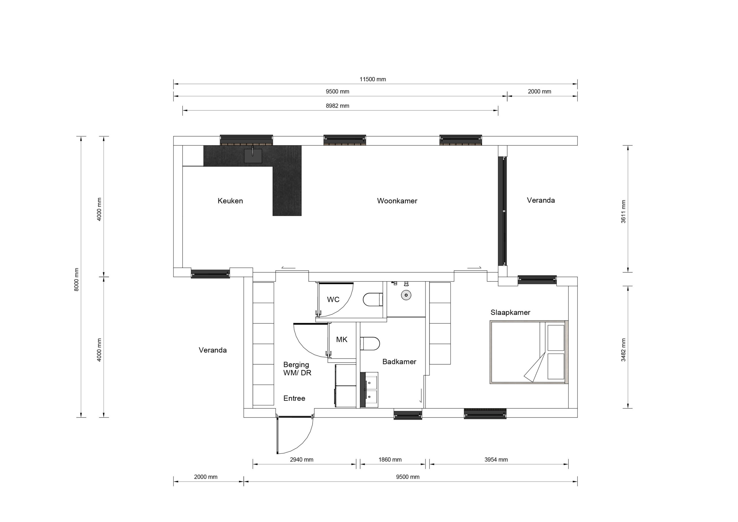
Mantelzorgwoning Toreno

  • 76 woonoppervlakte
  • 1 slaapkamer(s)

Mantelzorgwoning Toreno

76m2 woonoppervlakte      1 slaapkamer(s)
Over mantelzorgwoning Toreno 76m2
Deze compacte woning van 76 m² biedt een verrassend ruimtelijk gevoel en beschikt over één comfortabele slaapkamer. Het strakke platte dak geeft de woning een moderne, eigentijdse uitstraling. Dankzij de doordachte indeling wordt elke vierkante meter optimaal benut, waardoor de leefruimtes logisch, licht en prettig aanvoelen. De gevelsprongen geven het ontwerp karakter en zorgen voor een speels en luxe effect. Hierdoor krijgt de woning niet alleen een bijzonder uiterlijk, maar sluit hij ook naadloos aan bij een moderne woonstijl.

Details

  • Lengte: 11.5 meter

  • Breedte: 8 meter

  • 76m2 oppervlakte

  • Plat dak

  • 1 slaapkamer(s)

Indeling

Villea Comfort

EXTERIEUR

  • Onderhoudsvrije gevelafwerking
  • Aluminium kozijnen met HR++ glas
  • Isolatiewaarden boven de Bouwbesluiteisen

INTERIEUR

  • Geïsoleerde binnenwanden
  • Naadloze wanden en plafonds in kleur.
  • Hoge, brede binnendeuren in grenen kozijnen
  • Duurzame PVC vloer
  • Complete maatwerk keuken
  • Badkamer met inloopdouche en toilet

Villea exclusief

EXTERIEUR

  • Triple glas
  • Aluminium composiet overstekken
  • Verduurzaamde houten gevelbekleding
  • Rolluiken of screens

INTERIEUR

  • Airconditioning
  • Vloerverwarming
  • WTW-systeem
  • Maatwerk inbouwkasten
  • Staallook deuren
  • Luxe badkamer met bad

Offerte aanvragen

Naam

Deze site wordt beschermd door reCAPTCHA en de Privacy Policy en Servicevoorwaarden van Google gelden.