Overslaan en naar de inhoud gaan
Offerte aanvragen

Offerte aanvragen


Benieuwd naar de kosten voor een Villea woning die aansluit bij uw wensen? Vraag eenvoudig en vrijblijvend een offerte aan. Vul het formulier in en u ontvangt binnen 1 werkdag een eerste richtprijs op maat. Daarna nemen we snel contact met u op om alles door te spreken.

Naam

Deze site wordt beschermd door reCAPTCHA en de Privacy Policy en Servicevoorwaarden van Google gelden.

085 – 333 2440 Wijk en Aalburg

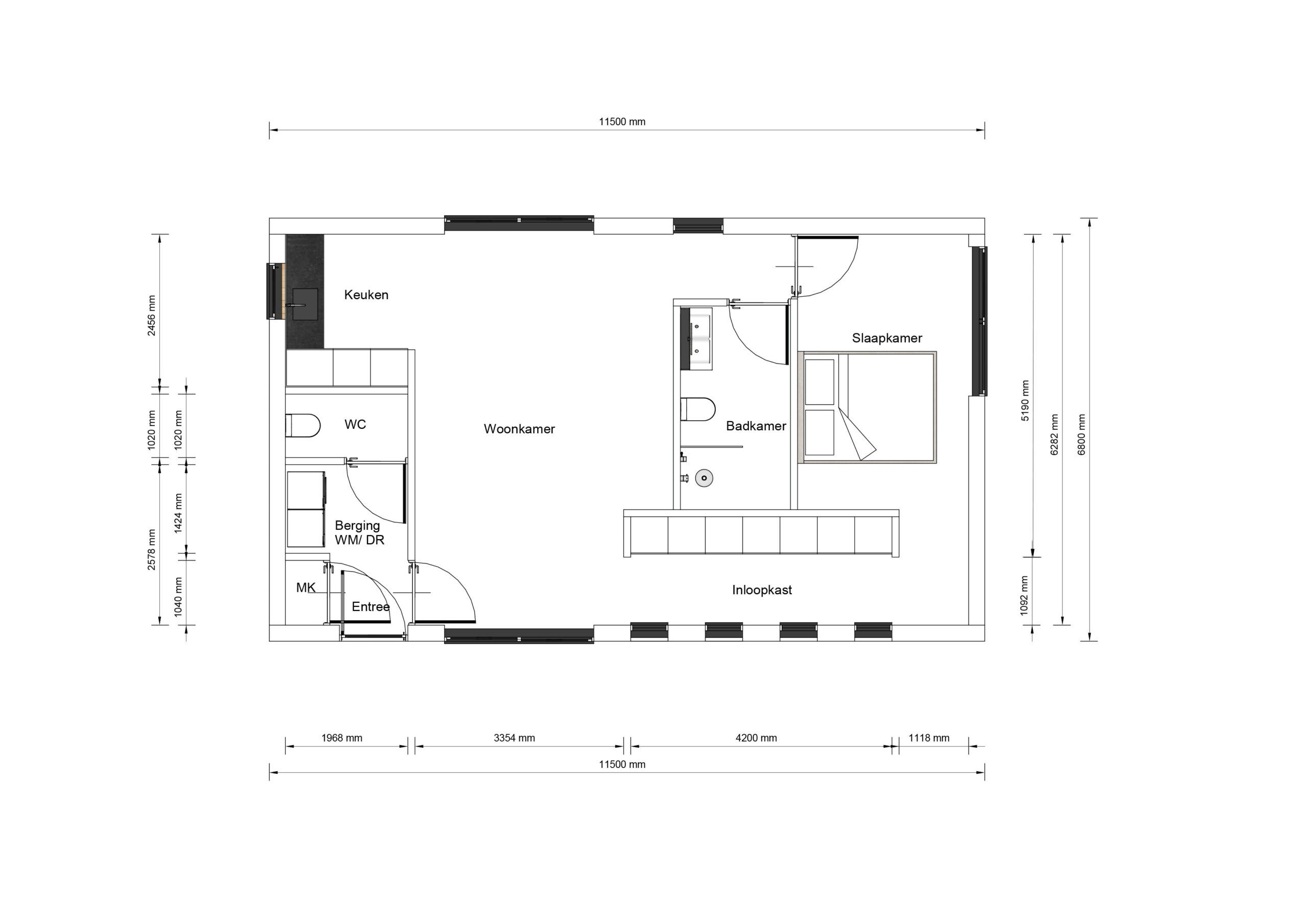
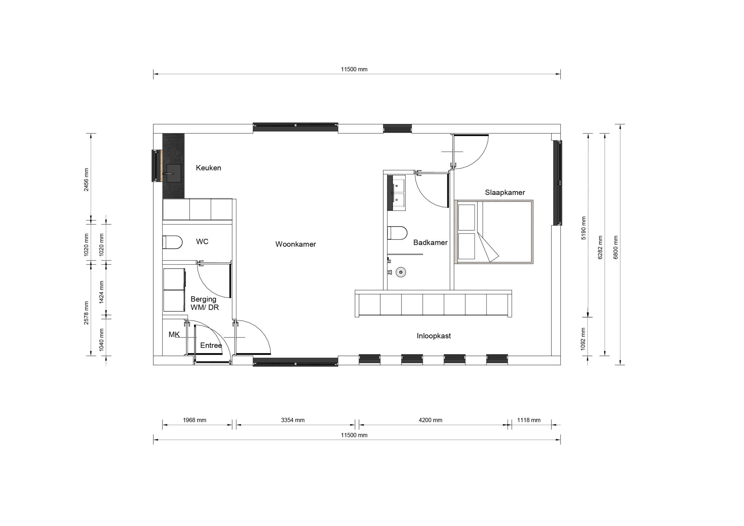
Mantelzorgwoning Marvella

  • 78 woonoppervlakte
  • 1 slaapkamer(s)

Mantelzorgwoning Marvella

78m2 woonoppervlakte      1 slaapkamer(s)
Over mantelzorgwoning Marvella 78m2
Deze prefab mantelzorgwoning van 78 m² biedt een comfortabele en ruime leefomgeving met één volwaardige slaapkamer. Het lessenaarsdak geeft de woning een moderne en eigentijdse uitstraling. De indeling is efficiënt opgezet, waardoor alle ruimtes logisch op elkaar aansluiten en prettig aanvoelen in het dagelijks gebruik. De kenmerkende dakvorm zorgt bovendien voor extra lichtinval en een onderscheidende architectonische stijl die perfect past bij een hoogwaardige, duurzame mantelzorgoplossing.

Details

  • Lengte: 11.5 meter

  • Breedte: 6.8 meter

  • 78m2 oppervlakte

  • Lessenaars dak

  • 1 slaapkamer(s)

Indeling

Villea Comfort

EXTERIEUR

  • Onderhoudsvrije gevelafwerking
  • Aluminium kozijnen met HR++ glas
  • Isolatiewaarden boven de Bouwbesluiteisen

INTERIEUR

  • Geïsoleerde binnenwanden
  • Naadloze wanden en plafonds in kleur.
  • Hoge, brede binnendeuren in grenen kozijnen
  • Duurzame PVC vloer
  • Complete maatwerk keuken
  • Badkamer met inloopdouche en toilet

Villea exclusief

EXTERIEUR

  • Triple glas
  • Aluminium composiet overstekken
  • Verduurzaamde houten gevelbekleding
  • Rolluiken of screens

INTERIEUR

  • Airconditioning
  • Vloerverwarming
  • WTW-systeem
  • Maatwerk inbouwkasten
  • Staallook deuren
  • Luxe badkamer met bad

Offerte aanvragen

Naam

Deze site wordt beschermd door reCAPTCHA en de Privacy Policy en Servicevoorwaarden van Google gelden.