Overslaan en naar de inhoud gaan
Offerte aanvragen

Offerte aanvragen


Benieuwd naar de kosten voor een Villea woning die aansluit bij uw wensen? Vraag eenvoudig en vrijblijvend een offerte aan. Vul het formulier in en u ontvangt binnen 1 werkdag een eerste richtprijs op maat. Daarna nemen we snel contact met u op om alles door te spreken.

Naam

Deze site wordt beschermd door reCAPTCHA en de Privacy Policy en Servicevoorwaarden van Google gelden.

085 – 333 2440 Wijk en Aalburg

Mantelzorgwoning Inari

  • 75 woonoppervlakte
  • 1 slaapkamer(s)

Mantelzorgwoning Inari

75m2 woonoppervlakte      1 slaapkamer(s)
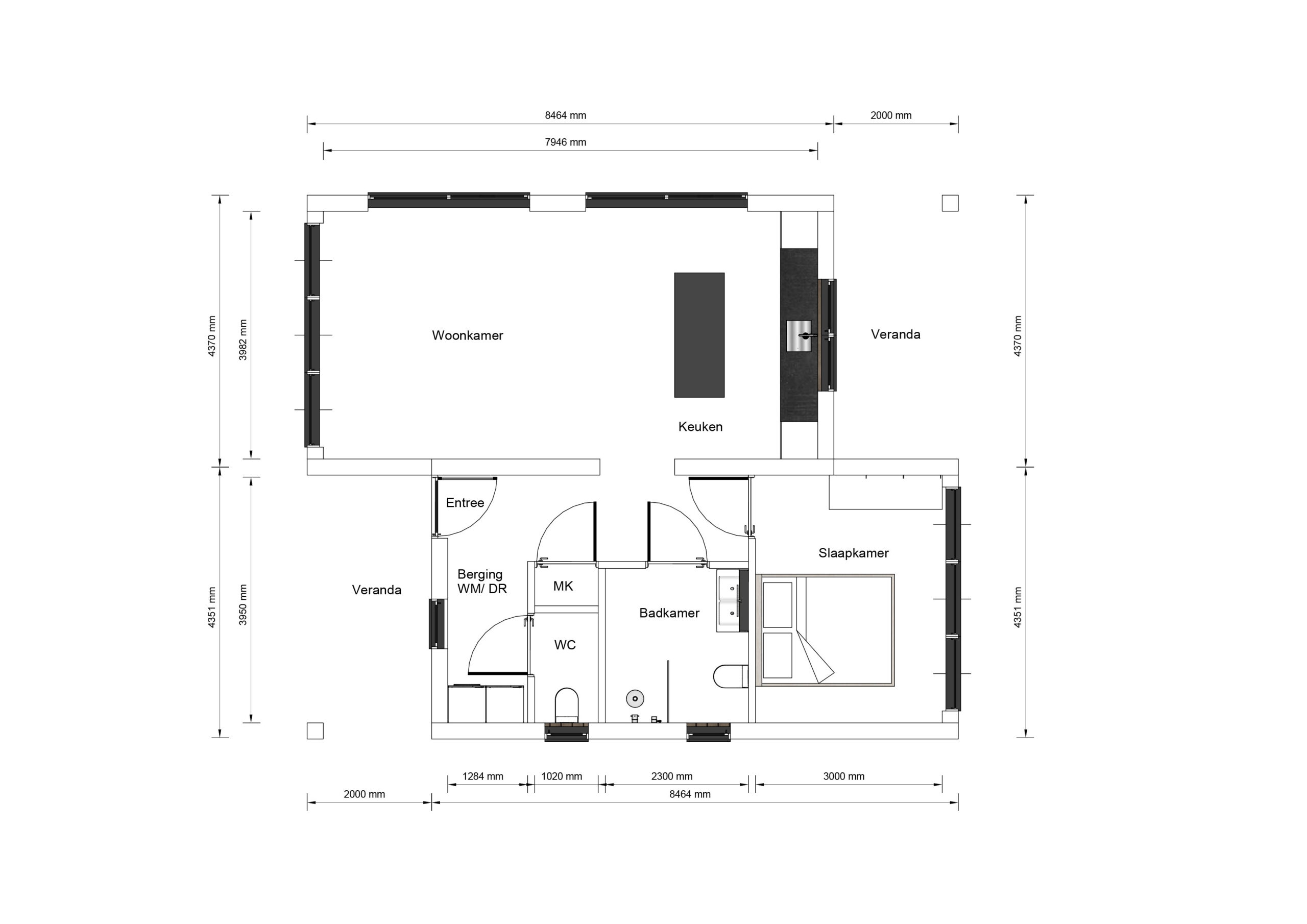
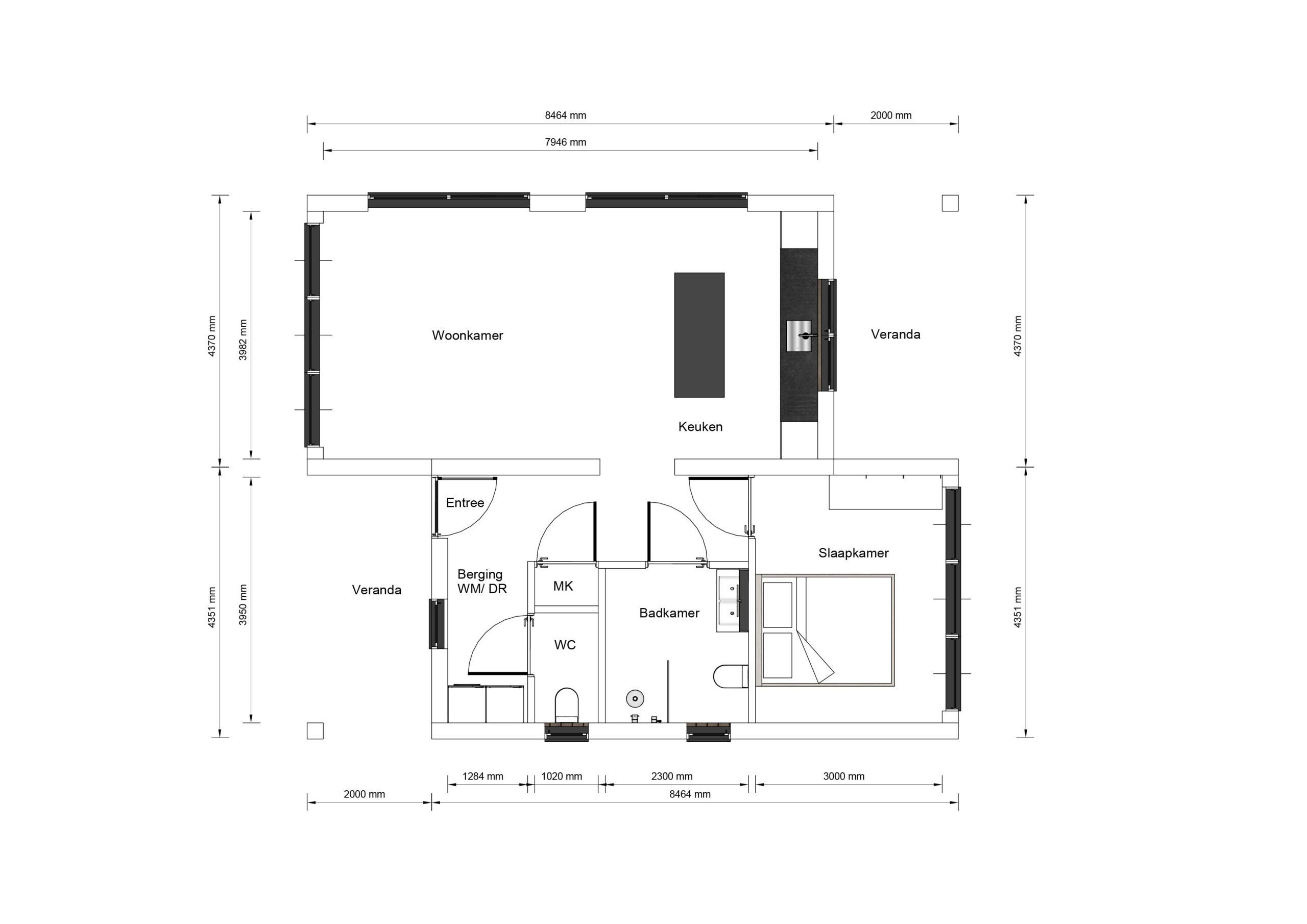
Over mantelzorgwoning Inari 75m2
Deze mantelzorgwoning van 75 m² heeft een praktische indeling die alle ruimtes logisch met elkaar verbindt. Met één ruime slaapkamer en een lichte leefruimte biedt de woning alles voor een comfortabel en zelfstandig dagelijks leven. Het lessenaarsdak met royale overstek geeft de woning een moderne en eigentijdse uitstraling. De schuine daklijn versterkt het ruimtelijke gevoel binnen en geeft het ontwerp een herkenbaar, karaktervol silhouet.

Details

  • Lengte: 8.75 meter

  • Breedte: 8.5 meter

  • 75m2 oppervlakte

  • Zadeldak

  • 1 slaapkamer(s)

Indeling

Villea Comfort

EXTERIEUR

  • Onderhoudsvrije gevelafwerking
  • Aluminium kozijnen met HR++ glas
  • Isolatiewaarden boven de Bouwbesluiteisen

INTERIEUR

  • Geïsoleerde binnenwanden
  • Naadloze wanden en plafonds in kleur.
  • Hoge, brede binnendeuren in grenen kozijnen
  • Duurzame PVC vloer
  • Complete maatwerk keuken
  • Badkamer met inloopdouche en toilet

Villea exclusief

EXTERIEUR

  • Triple glas
  • Aluminium composiet overstekken
  • Verduurzaamde houten gevelbekleding
  • Rolluiken of screens

INTERIEUR

  • Airconditioning
  • Vloerverwarming
  • WTW-systeem
  • Maatwerk inbouwkasten
  • Staallook deuren
  • Luxe badkamer met bad

Offerte aanvragen

Naam

Deze site wordt beschermd door reCAPTCHA en de Privacy Policy en Servicevoorwaarden van Google gelden.