Overslaan en naar de inhoud gaan
Offerte aanvragen

Offerte aanvragen


Benieuwd naar de kosten voor een Villea woning die aansluit bij uw wensen? Vraag eenvoudig en vrijblijvend een offerte aan. Vul het formulier in en u ontvangt binnen 1 werkdag een eerste richtprijs op maat. Daarna nemen we snel contact met u op om alles door te spreken.

Naam

Deze site wordt beschermd door reCAPTCHA en de Privacy Policy en Servicevoorwaarden van Google gelden.

085 – 333 2440 Wijk en Aalburg

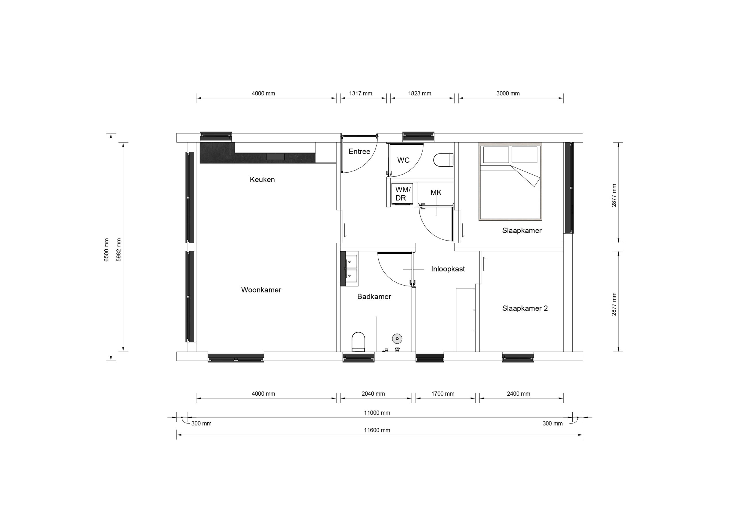
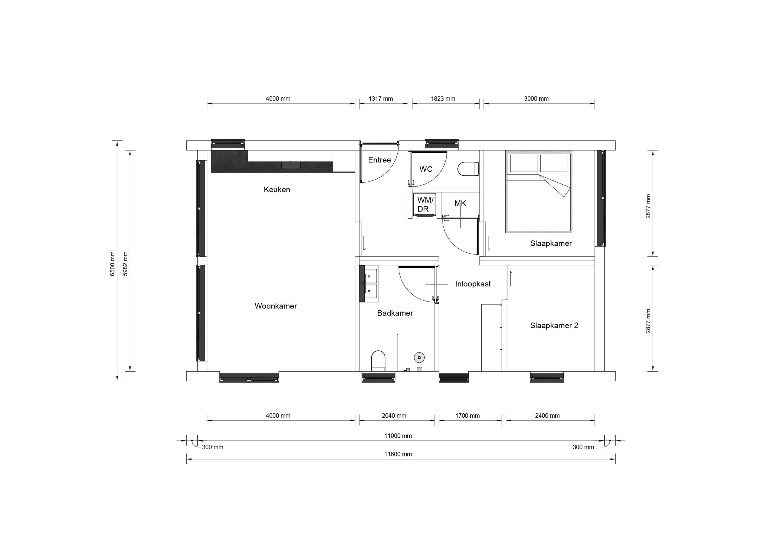
Mantelzorgwoning Elviro

  • 71.5 woonoppervlakte
  • 2 slaapkamer(s)

Mantelzorgwoning Elviro

71.5m2 woonoppervlakte      2 slaapkamer(s)
Over mantelzorgwoning Elviro 71.5m2
Deze woning van 71,5 m² combineert een praktische indeling met een prettig ruimtelijk gevoel. Met twee volwaardige slaapkamers is er voldoende plaats voor comfortabel wonen, logees of een thuiskantoor. Het platte dak geeft de woning een moderne, eigentijdse uitstraling. Dankzij de logische indeling en rustige vormgeving is dit model ideaal voor wie functionaliteit wil combineren met een strakke, moderne woonstijl.

Details

  • Lengte: 11 meter

  • Breedte: 6.5 meter

  • 71.5m2 oppervlakte

  • Plat dak

  • 2 slaapkamer(s)

Indeling

Villea Comfort

EXTERIEUR

  • Onderhoudsvrije gevelafwerking
  • Aluminium kozijnen met HR++ glas
  • Isolatiewaarden boven de Bouwbesluiteisen

INTERIEUR

  • Geïsoleerde binnenwanden
  • Naadloze wanden en plafonds in kleur.
  • Hoge, brede binnendeuren in grenen kozijnen
  • Duurzame PVC vloer
  • Complete maatwerk keuken
  • Badkamer met inloopdouche en toilet

Villea exclusief

EXTERIEUR

  • Triple glas
  • Aluminium composiet overstekken
  • Verduurzaamde houten gevelbekleding
  • Rolluiken of screens

INTERIEUR

  • Airconditioning
  • Vloerverwarming
  • WTW-systeem
  • Maatwerk inbouwkasten
  • Staallook deuren
  • Luxe badkamer met bad

Offerte aanvragen

Naam

Deze site wordt beschermd door reCAPTCHA en de Privacy Policy en Servicevoorwaarden van Google gelden.