Overslaan en naar de inhoud gaan
Offerte aanvragen

Offerte aanvragen


Benieuwd naar de kosten voor een Villea woning die aansluit bij uw wensen? Vraag eenvoudig en vrijblijvend een offerte aan. Vul het formulier in en u ontvangt binnen 1 werkdag een eerste richtprijs op maat. Daarna nemen we snel contact met u op om alles door te spreken.

Naam

Deze site wordt beschermd door reCAPTCHA en de Privacy Policy en Servicevoorwaarden van Google gelden.

085 – 333 2440 Wijk en Aalburg

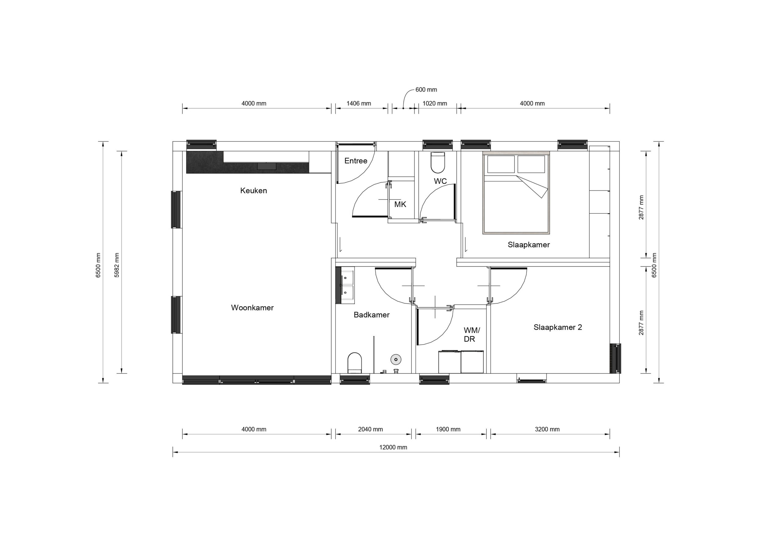
Mantelzorgwoning Cerano

  • 78 woonoppervlakte
  • 2 slaapkamer(s)

Mantelzorgwoning Cerano

78m2 woonoppervlakte      2 slaapkamer(s)
Over mantelzorgwoning Cerano 78m2
De Cerano is een hoogwaardige prefab woning die perfect is voor één of twee personen, of als mantelzorgwoning. Met een plat dak en een afmeting van 12 bij 6,5 meter biedt deze woning een slimme indeling die optimaal gebruik maakt van de beschikbare ruimte. De twee slaapkamers zijn licht en comfortabel, wat bijdraagt aan een aangename woonervaring. De praktische leefruimtes zijn ontworpen met het oog op functionaliteit en comfort, waardoor de Cerano een ideale keuze is voor wie waarde hecht aan een doordachte indeling. Het ontwerp straalt moderniteit uit en past naadloos in diverse omgevingen. De plattegrond van de Cerano is bijzonder door zijn efficiënte gebruik van ruimte, wat zorgt voor een harmonieuze en uitnodigende sfeer.

Details

  • Lengte: 12 meter

  • Breedte: 6.5 meter

  • 78m2 oppervlakte

  • Plat dak

  • 2 slaapkamer(s)

Indeling

Villea Comfort

EXTERIEUR

  • Onderhoudsvrije gevelafwerking
  • Aluminium kozijnen met HR++ glas
  • Isolatiewaarden boven de Bouwbesluiteisen

INTERIEUR

  • Geïsoleerde binnenwanden
  • Naadloze wanden en plafonds in kleur.
  • Hoge, brede binnendeuren in grenen kozijnen
  • Duurzame PVC vloer
  • Complete maatwerk keuken
  • Badkamer met inloopdouche en toilet

Villea exclusief

EXTERIEUR

  • Triple glas
  • Aluminium composiet overstekken
  • Verduurzaamde houten gevelbekleding
  • Rolluiken of screens

INTERIEUR

  • Airconditioning
  • Vloerverwarming
  • WTW-systeem
  • Maatwerk inbouwkasten
  • Staallook deuren
  • Luxe badkamer met bad

Offerte aanvragen

Naam

Deze site wordt beschermd door reCAPTCHA en de Privacy Policy en Servicevoorwaarden van Google gelden.