Overslaan en naar de inhoud gaan
Offerte aanvragen

Offerte aanvragen


Benieuwd naar de kosten voor een Villea woning die aansluit bij uw wensen? Vraag eenvoudig en vrijblijvend een offerte aan. Vul het formulier in en u ontvangt binnen 1 werkdag een eerste richtprijs op maat. Daarna nemen we snel contact met u op om alles door te spreken.

Naam

Deze site wordt beschermd door reCAPTCHA en de Privacy Policy en Servicevoorwaarden van Google gelden.

085 – 333 2440 Wijk en Aalburg

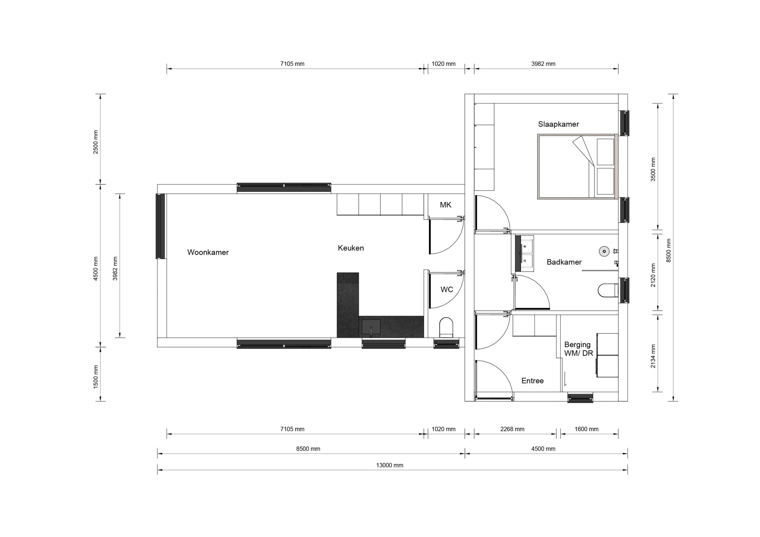
Mantelzorgwoning Alviro

  • 76 woonoppervlakte
  • 1 slaapkamer(s)

Mantelzorgwoning Alviro

76m2 woonoppervlakte      1 slaapkamer(s)
Over mantelzorgwoning Alviro 76m2
De Alviro is een hoogwaardige prefab woning die perfect is voor 1 of 2 personen, ideaal als mantelzorgwoning. Met een plat dak en een slimme indeling van 13 bij 8,5 meter, biedt deze woning een comfortabele leefruimte die optimaal gebruikmaakt van natuurlijk licht. De woning beschikt over een ruime slaapkamer en praktische leefruimtes die functionaliteit combineren met een moderne uitstraling. De Alviro is ontworpen met aandacht voor detail, waardoor de plattegrond bijzonder efficiënt is. De hoogwaardige bouwkwaliteit garandeert duurzaamheid en comfort, waardoor deze woning een uitstekende keuze is voor wie waarde hecht aan zowel esthetiek als praktische oplossingen.

Details

  • Lengte: 13 meter

  • Breedte: 8.5 meter

  • 76m2 oppervlakte

  • Plat dak

  • 1 slaapkamer(s)

Indeling

Villea Comfort

EXTERIEUR

  • Onderhoudsvrije gevelafwerking
  • Aluminium kozijnen met HR++ glas
  • Isolatiewaarden boven de Bouwbesluiteisen

INTERIEUR

  • Geïsoleerde binnenwanden
  • Naadloze wanden en plafonds in kleur.
  • Hoge, brede binnendeuren in grenen kozijnen
  • Duurzame PVC vloer
  • Complete maatwerk keuken
  • Badkamer met inloopdouche en toilet

Villea exclusief

EXTERIEUR

  • Triple glas
  • Aluminium composiet overstekken
  • Verduurzaamde houten gevelbekleding
  • Rolluiken of screens

INTERIEUR

  • Airconditioning
  • Vloerverwarming
  • WTW-systeem
  • Maatwerk inbouwkasten
  • Staallook deuren
  • Luxe badkamer met bad

Offerte aanvragen

Naam

Deze site wordt beschermd door reCAPTCHA en de Privacy Policy en Servicevoorwaarden van Google gelden.