Overslaan en naar de inhoud gaan
Offerte aanvragen

Offerte aanvragen


Benieuwd naar de kosten voor een Villea woning die aansluit bij uw wensen? Vraag eenvoudig en vrijblijvend een offerte aan. Vul het formulier in en u ontvangt binnen 1 werkdag een eerste richtprijs op maat. Daarna nemen we snel contact met u op om alles door te spreken.

Naam

Deze site wordt beschermd door reCAPTCHA en de Privacy Policy en Servicevoorwaarden van Google gelden.

085 – 333 2440 Wijk en Aalburg

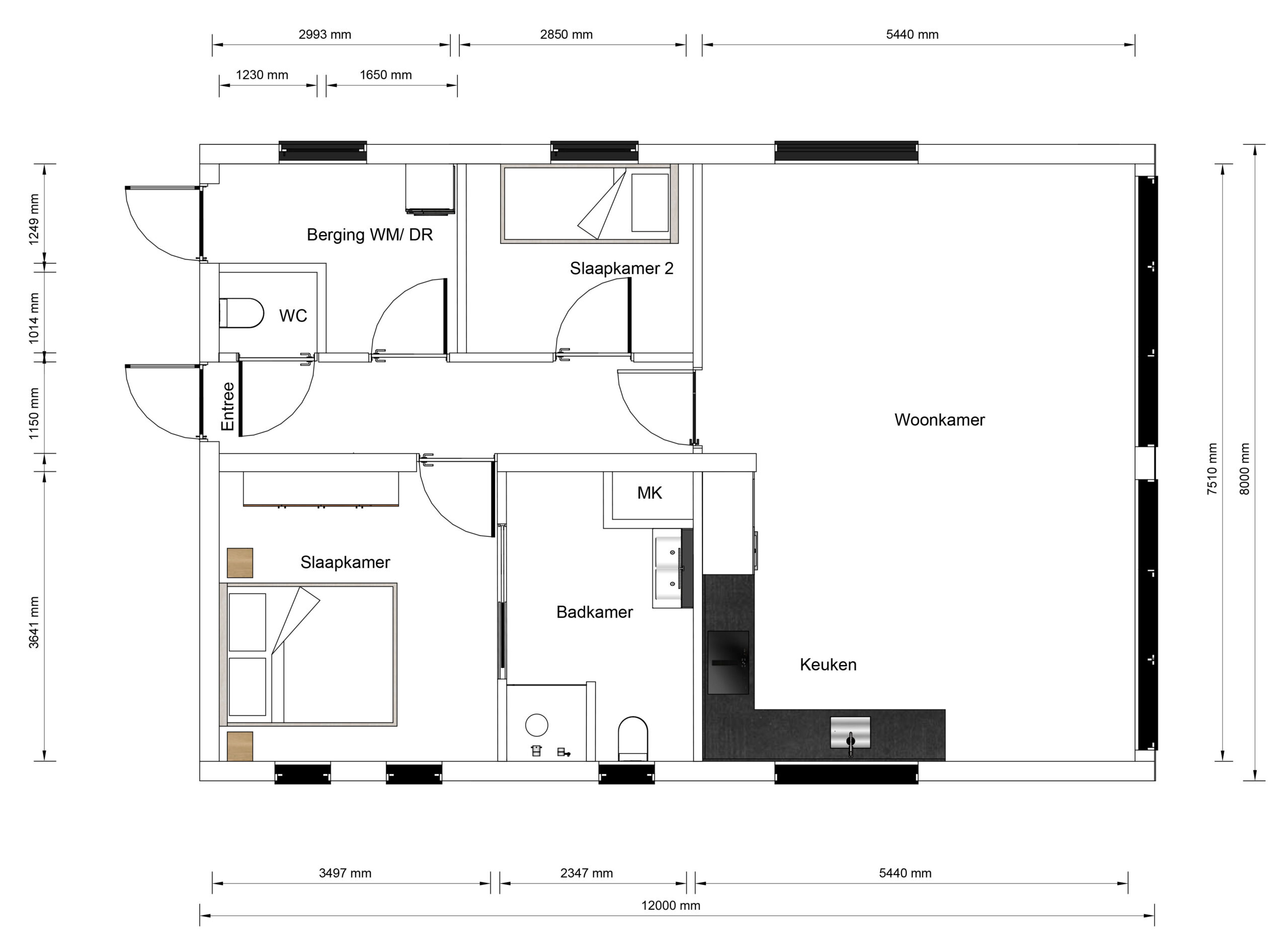
Mantelzorgwoning Verdea

  • 96 woonoppervlakte
  • 2 slaapkamer(s)

Mantelzorgwoning Verdea

96m2 woonoppervlakte      2 slaapkamer(s)
Over mantelzorgwoning Verdea 96m2
De Verdea is een moderne woning van 100 m² met een rustige uitstraling en een sterke verbinding met het buitenleven. Het platte dak en de houten gevel geven het ontwerp een eigentijdse en natuurlijke look, terwijl de grote ramen en schuifdeuren zorgen voor veel licht en een open sfeer. De woning ligt volledig gelijkvloers en is praktisch ingedeeld. Binnen vind je twee slaapkamers, een royale woonkamer met open keuken, een los toilet, een berging en een veranda aan de voorzijde. De woonkamer biedt voldoende ruimte voor een zithoek en eettafel, met direct zicht op de tuin. De veranda en het terras vormen een fijne overgang naar buiten, perfect voor ontspanning of sociale momenten. De berging zorgt voor extra opbergruimte, zodat de leefruimte overzichtelijk blijft. De Verdea is geschikt voor uiteenlopende woonwensen: van zelfstandig wonen tot mantelzorg of werken aan huis. Dankzij de heldere plattegrond en het rustige ontwerp is dit model makkelijk aan te passen aan persoonlijke voorkeuren, zoals vaste kastruimte, zonwering of extra voorzieningen. Een woning die rust, stijl en flexibiliteit combineert — ideaal voor wie comfortabel wil wonen in harmonie met de omgeving.

Details

  • Lengte: 12 meter

  • Breedte: 8 meter

  • 96m2 oppervlakte

  • Plat dak

  • 2 slaapkamer(s)

Indeling

Villea Comfort

EXTERIEUR

  • Onderhoudsvrije gevelafwerking
  • Aluminium kozijnen met HR++ glas
  • Isolatiewaarden boven de Bouwbesluiteisen

INTERIEUR

  • Geïsoleerde binnenwanden
  • Naadloze wanden en plafonds in kleur.
  • Hoge, brede binnendeuren in grenen kozijnen
  • Duurzame PVC vloer
  • Complete maatwerk keuken
  • Badkamer met inloopdouche en toilet

Villea exclusief

EXTERIEUR

  • Triple glas
  • Aluminium composiet overstekken
  • Verduurzaamde houten gevelbekleding
  • Rolluiken of screens

INTERIEUR

  • Airconditioning
  • Vloerverwarming
  • WTW-systeem
  • Maatwerk inbouwkasten
  • Staallook deuren
  • Luxe badkamer met bad

Offerte aanvragen

Naam

Deze site wordt beschermd door reCAPTCHA en de Privacy Policy en Servicevoorwaarden van Google gelden.