Overslaan en naar de inhoud gaan
Offerte aanvragen

Offerte aanvragen


Benieuwd naar de kosten voor een Villea woning die aansluit bij uw wensen? Vraag eenvoudig en vrijblijvend een offerte aan. Vul het formulier in en u ontvangt binnen 1 werkdag een eerste richtprijs op maat. Daarna nemen we snel contact met u op om alles door te spreken.

Naam

Deze site wordt beschermd door reCAPTCHA en de Privacy Policy en Servicevoorwaarden van Google gelden.

085 – 333 2440 Wijk en Aalburg

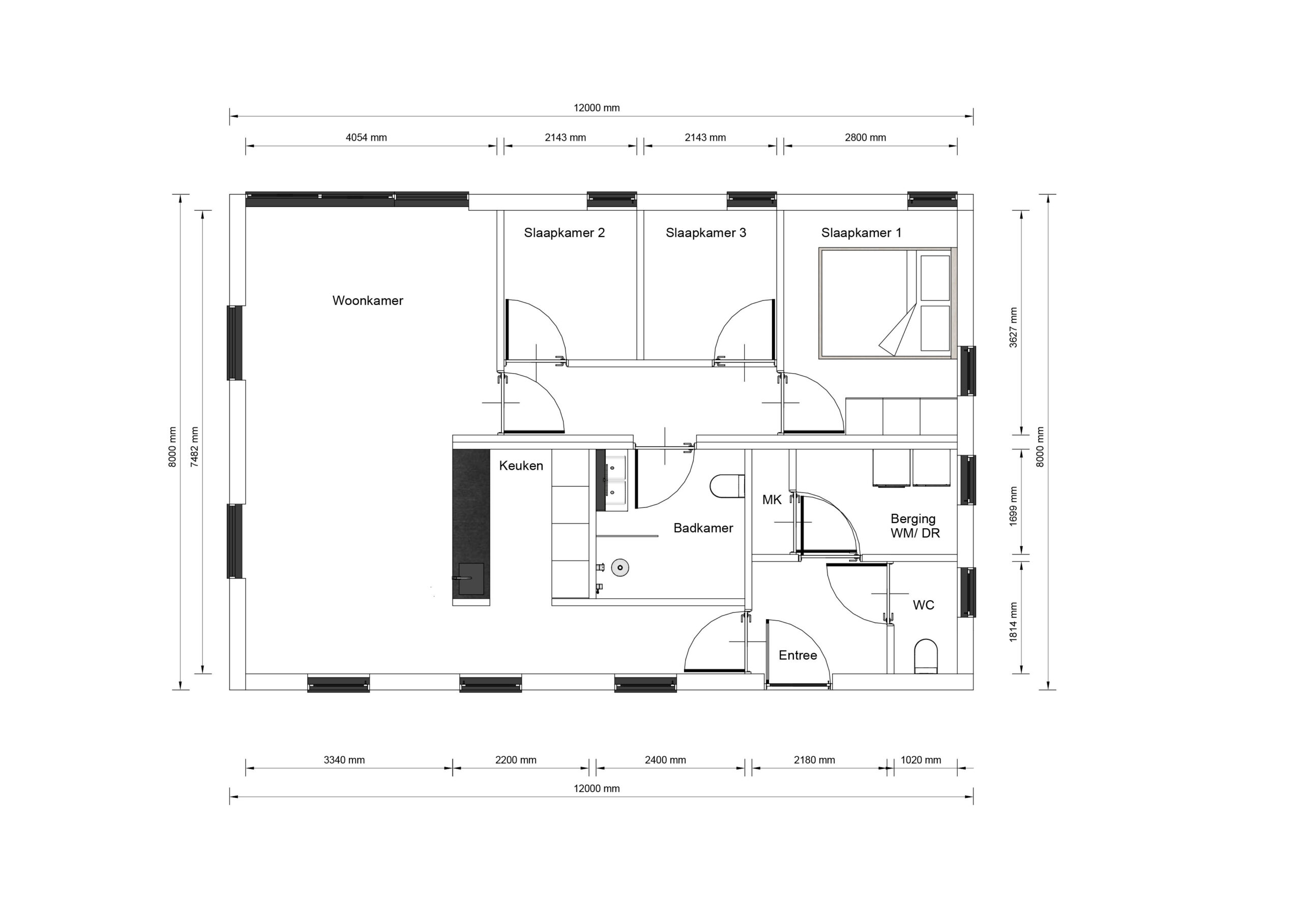
Mantelzorgwoning Elvaro

  • 96 woonoppervlakte
  • 3 slaapkamer(s)

Mantelzorgwoning Elvaro

96m2 woonoppervlakte      3 slaapkamer(s)
Over mantelzorgwoning Elvaro 96m2
De Elvaro is een hoogwaardige prefab woning die perfect is voor 1 of 2 personen, of als mantelzorgwoning. Met een plat dak en een slimme indeling van 12 bij 8 meter, biedt deze woning drie slaapkamers en praktische leefruimtes die optimaal gebruik maken van de beschikbare ruimte. De grote ramen zorgen voor een overvloed aan natuurlijk licht, wat bijdraagt aan een comfortabele en uitnodigende sfeer. Het ontwerp van de Elvaro straalt moderniteit en functionaliteit uit, waardoor het een aantrekkelijke keuze is voor wie waarde hecht aan kwaliteit en stijl. De plattegrond is doordacht en biedt een harmonieuze flow tussen de verschillende ruimtes, wat het wonen in deze woning bijzonder aangenaam maakt.

Details

  • Lengte: 12 meter

  • Breedte: 8 meter

  • 96m2 oppervlakte

  • Plat dak

  • 3 slaapkamer(s)

Indeling

Villea Comfort

EXTERIEUR

  • Onderhoudsvrije gevelafwerking
  • Aluminium kozijnen met HR++ glas
  • Isolatiewaarden boven de Bouwbesluiteisen

INTERIEUR

  • Geïsoleerde binnenwanden
  • Naadloze wanden en plafonds in kleur.
  • Hoge, brede binnendeuren in grenen kozijnen
  • Duurzame PVC vloer
  • Complete maatwerk keuken
  • Badkamer met inloopdouche en toilet

Villea exclusief

EXTERIEUR

  • Triple glas
  • Aluminium composiet overstekken
  • Verduurzaamde houten gevelbekleding
  • Rolluiken of screens

INTERIEUR

  • Airconditioning
  • Vloerverwarming
  • WTW-systeem
  • Maatwerk inbouwkasten
  • Staallook deuren
  • Luxe badkamer met bad

Offerte aanvragen

Naam

Deze site wordt beschermd door reCAPTCHA en de Privacy Policy en Servicevoorwaarden van Google gelden.