Overslaan en naar de inhoud gaan
Offerte aanvragen

Offerte aanvragen


Benieuwd naar de kosten voor een Villea woning die aansluit bij uw wensen? Vraag eenvoudig en vrijblijvend een offerte aan. Vul het formulier in en u ontvangt binnen 1 werkdag een eerste richtprijs op maat. Daarna nemen we snel contact met u op om alles door te spreken.

Naam

Deze site wordt beschermd door reCAPTCHA en de Privacy Policy en Servicevoorwaarden van Google gelden.

085 – 333 2440 Wijk en Aalburg

Mantelzorgwoning Valiera Zadeldak

  • 98 woonoppervlakte
  • 2 slaapkamer(s)

Mantelzorgwoning Valiera Zadeldak

98m2 woonoppervlakte      2 slaapkamer(s)
Over mantelzorgwoning Valiera Zadeldak 98m2
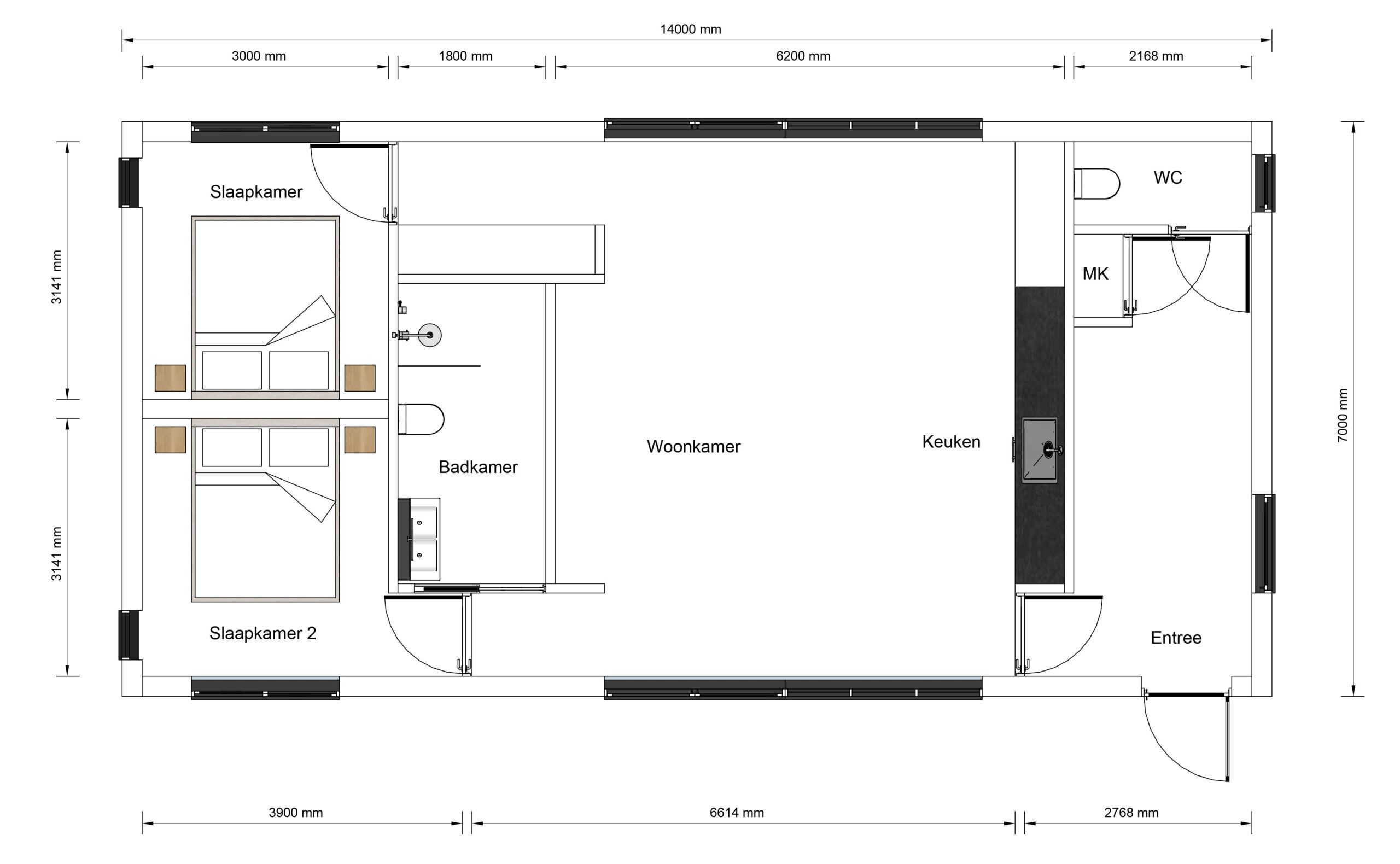
De Valiera met zadeldak is een eigentijdse woning van 100 m², ontworpen voor wie houdt van rust, ruimte en een natuurlijke uitstraling. Het klassieke dak en de verticale houten gevel geven het model een warme en karaktervolle look, terwijl de grote ramen zorgen voor veel daglicht en een open sfeer. De woning ligt volledig gelijkvloers en is praktisch ingedeeld. Binnen biedt de Valiera twee slaapkamers, een royale woonkamer met open keuken, een los toilet, een berging en een veranda aan de voorzijde. De leefruimte is licht en overzichtelijk, met directe toegang tot het terras en de tuin. Het zadeldak zorgt voor extra hoogte en ruimtelijkheid, wat de woning een bijzondere sfeer geeft. De veranda vormt een fijne overgang tussen binnen en buiten, ideaal voor ontspanning of sociale momenten. De Valiera is geschikt voor diverse woonvormen: van zelfstandig wonen tot mantelzorg of werken aan huis. Dankzij de heldere plattegrond en het rustige ontwerp is dit model eenvoudig aan te passen aan persoonlijke voorkeuren, zoals vaste kastruimte, zonwering of extra voorzieningen. Een woning die elegantie, functionaliteit en flexibiliteit combineert — perfect voor comfortabel wonen in een groene omgeving.

Details

  • Lengte: 14 meter

  • Breedte: 7 meter

  • 98m2 oppervlakte

  • Zadeldak

  • 2 slaapkamer(s)

Indeling

Villea Comfort

EXTERIEUR

  • Onderhoudsvrije gevelafwerking
  • Aluminium kozijnen met HR++ glas
  • Isolatiewaarden boven de Bouwbesluiteisen

INTERIEUR

  • Geïsoleerde binnenwanden
  • Naadloze wanden en plafonds in kleur.
  • Hoge, brede binnendeuren in grenen kozijnen
  • Duurzame PVC vloer
  • Complete maatwerk keuken
  • Badkamer met inloopdouche en toilet

Villea exclusief

EXTERIEUR

  • Triple glas
  • Aluminium composiet overstekken
  • Verduurzaamde houten gevelbekleding
  • Rolluiken of screens

INTERIEUR

  • Airconditioning
  • Vloerverwarming
  • WTW-systeem
  • Maatwerk inbouwkasten
  • Staallook deuren
  • Luxe badkamer met bad

Offerte aanvragen

Naam

Deze site wordt beschermd door reCAPTCHA en de Privacy Policy en Servicevoorwaarden van Google gelden.