Overslaan en naar de inhoud gaan
Offerte aanvragen

Offerte aanvragen


Benieuwd naar de kosten voor een Villea woning die aansluit bij uw wensen? Vraag eenvoudig en vrijblijvend een offerte aan. Vul het formulier in en u ontvangt binnen 1 werkdag een eerste richtprijs op maat. Daarna nemen we snel contact met u op om alles door te spreken.

Naam

Deze site wordt beschermd door reCAPTCHA en de Privacy Policy en Servicevoorwaarden van Google gelden.

085 – 333 2440 Wijk en Aalburg

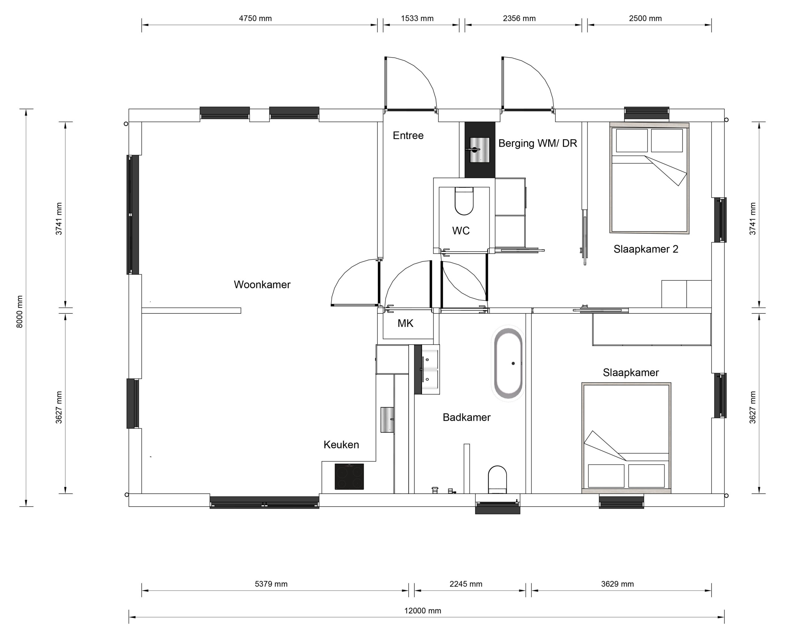
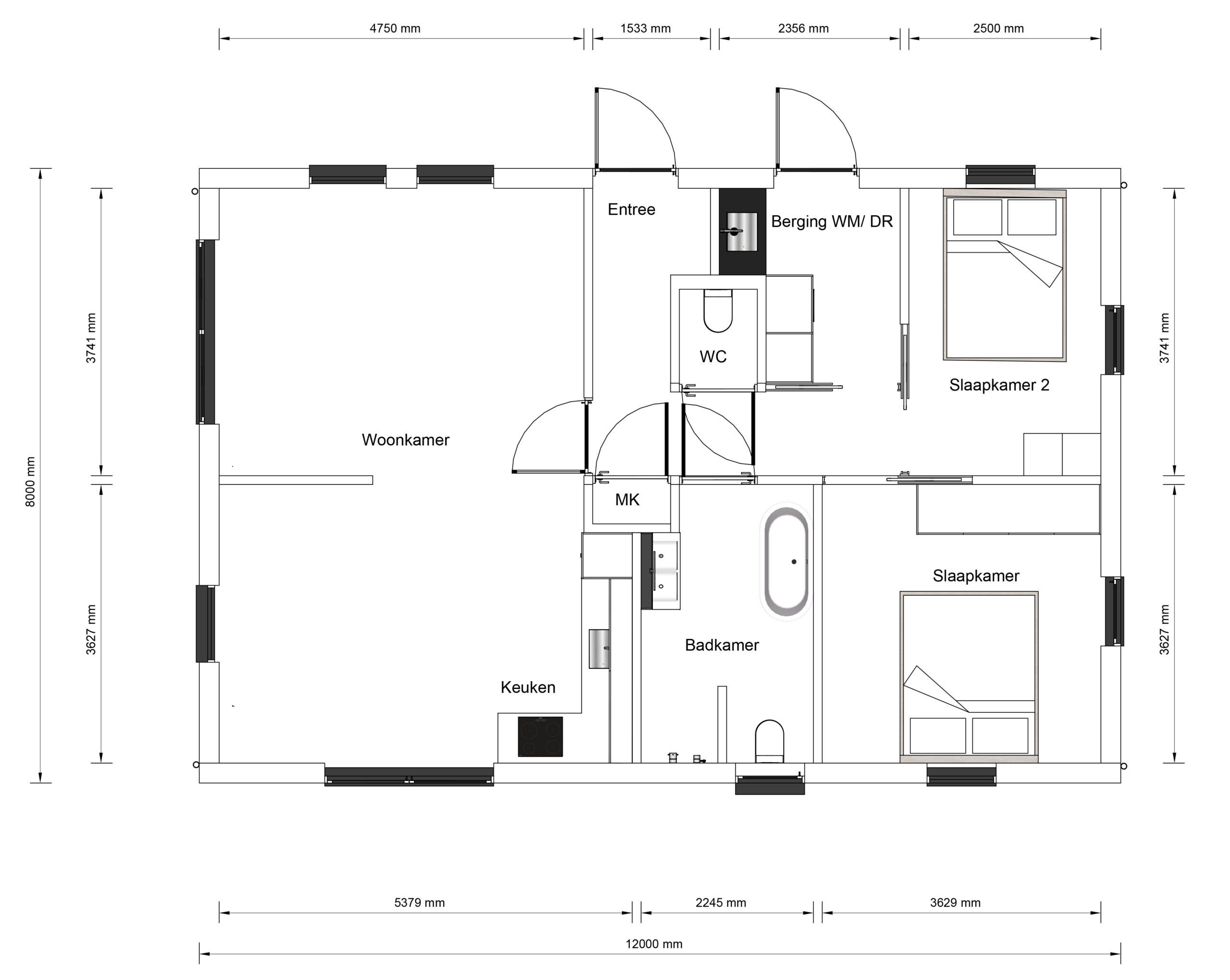
Mantelzorgwoning Solara

  • 96 woonoppervlakte
  • 2 slaapkamer(s)

Mantelzorgwoning Solara

96m2 woonoppervlakte      2 slaapkamer(s)
Over mantelzorgwoning Solara 96m2
De Solara is een moderne gelijkvloerse woning van 96 m², ontworpen voor wie comfort en overzicht belangrijk vindt. De afmetingen van 12 bij 8 meter geven de woning een strakke, compacte vorm, terwijl de grote ramen zorgen voor veel lichtinval en een open sfeer. De indeling is praktisch en overzichtelijk: een royale woonkamer met open keuken, twee volwaardige slaapkamers, een badkamer en een apart toilet. De entree geeft direct toegang tot de leefruimte, en de berging biedt extra plek voor fietsen, voorraad of installaties. Alles is gelijkvloers en toekomstbestendig ingericht. Dankzij de heldere vormgeving en rustige uitstraling past de Solara goed in verschillende woonomgevingen. Het is een model dat zich eenvoudig laat aanpassen aan persoonlijke voorkeuren — van maatwerk in kastruimte tot een veranda of extra voorzieningen. De Solara combineert eenvoud, licht en comfort in één woning.

Details

  • Lengte: 12 meter

  • Breedte: 8 meter

  • 96m2 oppervlakte

  • Plat dak

  • 2 slaapkamer(s)

Indeling

Villea Comfort

EXTERIEUR

  • Onderhoudsvrije gevelafwerking
  • Aluminium kozijnen met HR++ glas
  • Isolatiewaarden boven de Bouwbesluiteisen

INTERIEUR

  • Geïsoleerde binnenwanden
  • Naadloze wanden en plafonds in kleur.
  • Hoge, brede binnendeuren in grenen kozijnen
  • Duurzame PVC vloer
  • Complete maatwerk keuken
  • Badkamer met inloopdouche en toilet

Villea exclusief

EXTERIEUR

  • Triple glas
  • Aluminium composiet overstekken
  • Verduurzaamde houten gevelbekleding
  • Rolluiken of screens

INTERIEUR

  • Airconditioning
  • Vloerverwarming
  • WTW-systeem
  • Maatwerk inbouwkasten
  • Staallook deuren
  • Luxe badkamer met bad

Offerte aanvragen

Naam

Deze site wordt beschermd door reCAPTCHA en de Privacy Policy en Servicevoorwaarden van Google gelden.