Overslaan en naar de inhoud gaan
Offerte aanvragen

Offerte aanvragen


Benieuwd naar de kosten voor een Villea woning die aansluit bij uw wensen? Vraag eenvoudig en vrijblijvend een offerte aan. Vul het formulier in en u ontvangt binnen 1 werkdag een eerste richtprijs op maat. Daarna nemen we snel contact met u op om alles door te spreken.

Naam

Deze site wordt beschermd door reCAPTCHA en de Privacy Policy en Servicevoorwaarden van Google gelden.

085 – 333 2440 Wijk en Aalburg

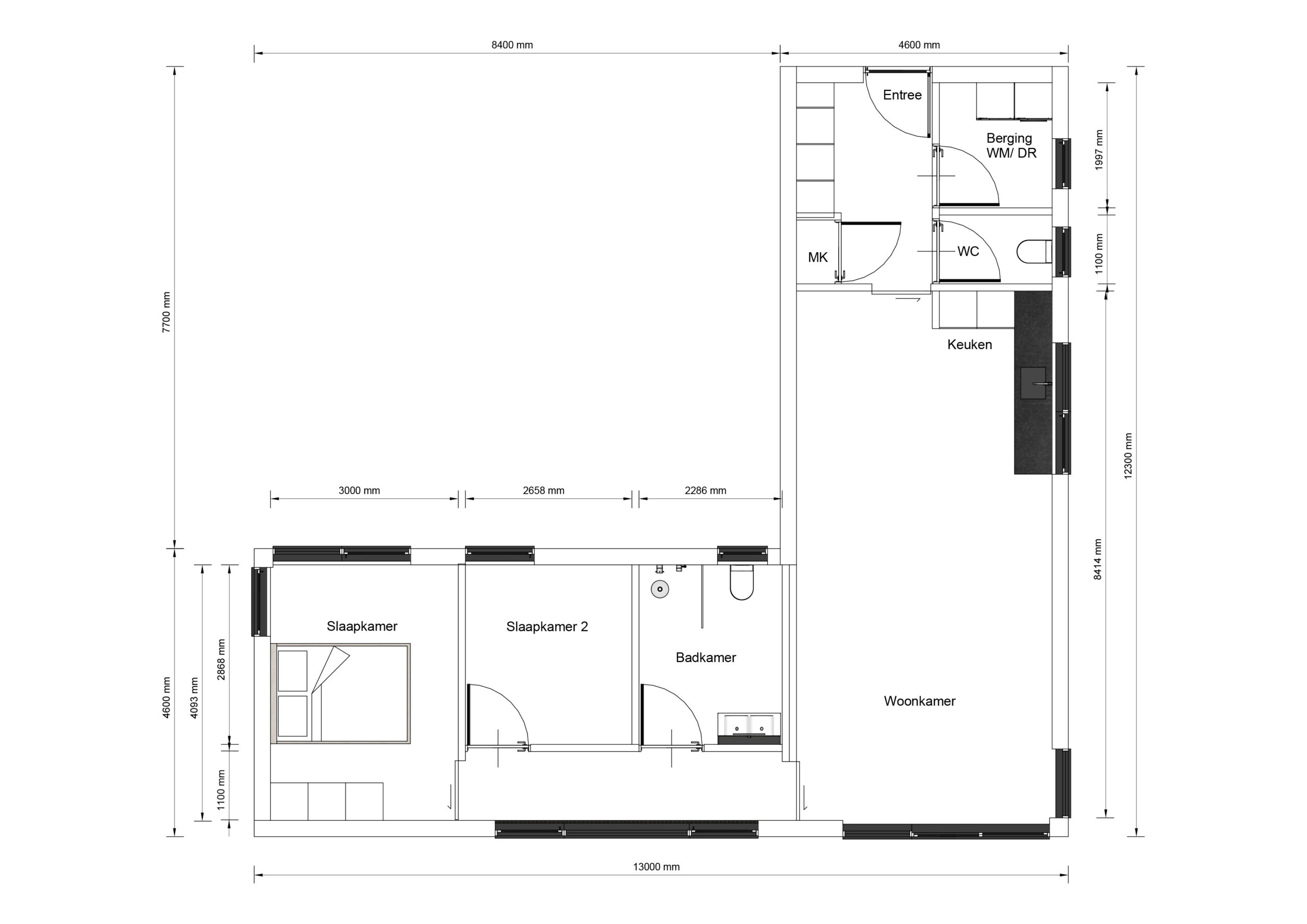
Mantelzorgwoning Silora

  • 95 woonoppervlakte
  • 2 slaapkamer(s)

Mantelzorgwoning Silora

95m2 woonoppervlakte      2 slaapkamer(s)
Over mantelzorgwoning Silora 95m2
De Silora is een hoogwaardige prefab woning die perfect is voor één of twee personen, en kan ook dienen als mantelzorgwoning. Met een plat dak en een afmeting van 13 bij 12,3 meter biedt deze woning een slimme indeling die optimaal gebruikmaakt van de beschikbare ruimte. De twee slaapkamers zijn ontworpen met comfort in gedachten, waardoor een rustige en functionele leefomgeving ontstaat. De grote ramen zorgen voor een overvloed aan natuurlijk licht, wat de ruimtes uitnodigend en warm maakt. De uitstraling van de Silora is modern en stijlvol, met een focus op praktische leefruimtes die aan de behoeften van de bewoners voldoen. De plattegrond is bijzonder door zijn doordachte indeling, die zorgt voor een harmonieuze flow tussen de verschillende ruimtes, ideaal voor een comfortabele levensstijl.

Details

  • Lengte: 13 meter

  • Breedte: 12.3 meter

  • 95m2 oppervlakte

  • Plat dak

  • 2 slaapkamer(s)

Indeling

Villea Comfort

EXTERIEUR

  • Onderhoudsvrije gevelafwerking
  • Aluminium kozijnen met HR++ glas
  • Isolatiewaarden boven de Bouwbesluiteisen

INTERIEUR

  • Geïsoleerde binnenwanden
  • Naadloze wanden en plafonds in kleur.
  • Hoge, brede binnendeuren in grenen kozijnen
  • Duurzame PVC vloer
  • Complete maatwerk keuken
  • Badkamer met inloopdouche en toilet

Villea exclusief

EXTERIEUR

  • Triple glas
  • Aluminium composiet overstekken
  • Verduurzaamde houten gevelbekleding
  • Rolluiken of screens

INTERIEUR

  • Airconditioning
  • Vloerverwarming
  • WTW-systeem
  • Maatwerk inbouwkasten
  • Staallook deuren
  • Luxe badkamer met bad

Offerte aanvragen

Naam

Deze site wordt beschermd door reCAPTCHA en de Privacy Policy en Servicevoorwaarden van Google gelden.