Skip to main content
Offerte aanvragen

Offerte aanvragen


Benieuwd naar de kosten voor een Villea woning die aansluit bij uw wensen? Vraag eenvoudig en vrijblijvend een offerte aan. Vul het formulier in en u ontvangt binnen 1 werkdag een eerste richtprijs op maat. Daarna nemen we snel contact met u op om alles door te spreken.

Naam

Deze site wordt beschermd door reCAPTCHA en de Privacy Policy en Servicevoorwaarden van Google gelden.

085 – 333 2440 Wijk en Aalburg

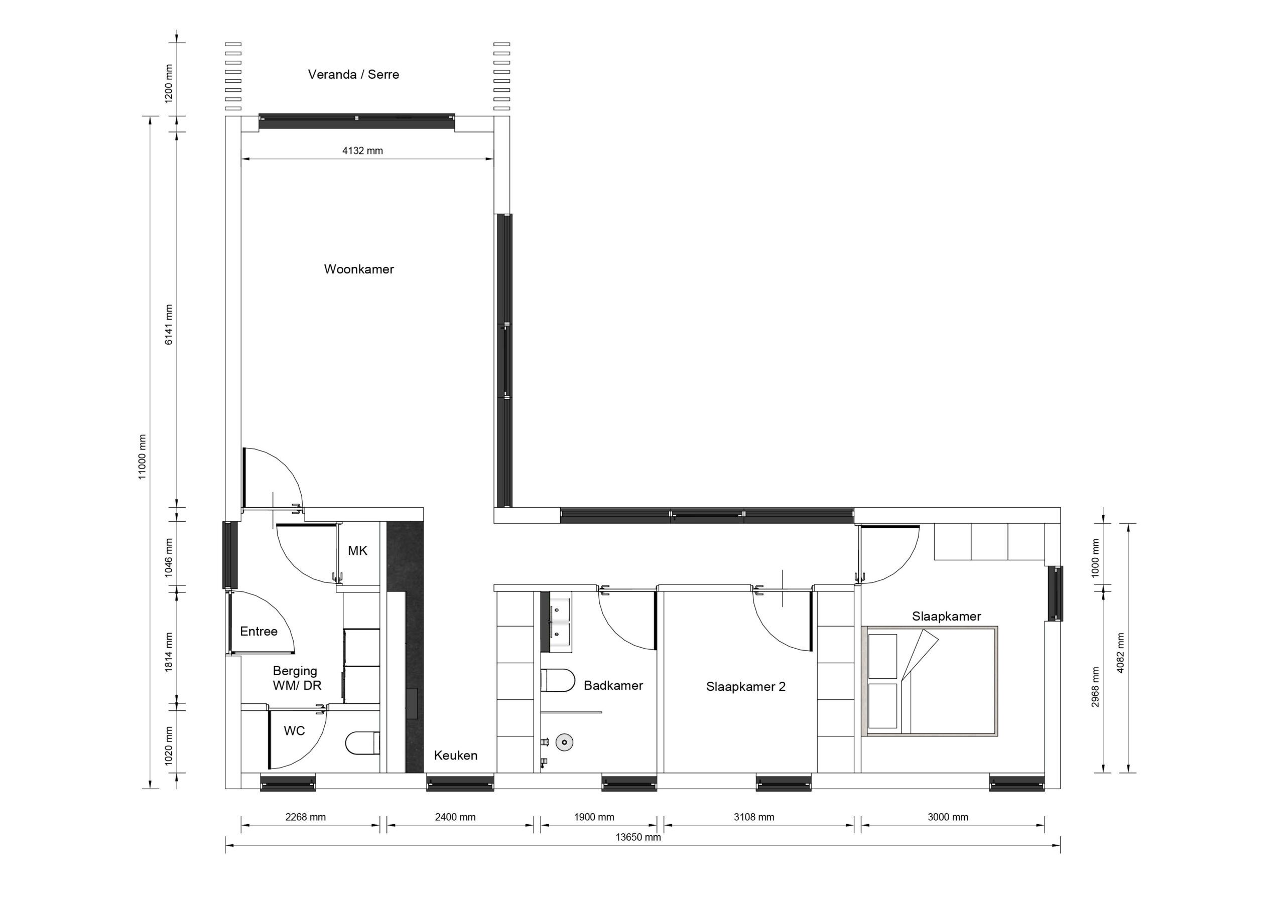
Mantelzorgwoning Nevira

  • 92 woonoppervlakte
  • 2 slaapkamer(s)

Mantelzorgwoning Nevira

92m2 woonoppervlakte      2 slaapkamer(s)
Over mantelzorgwoning Nevira 92m2
De Nevira is een hoogwaardige prefab woning die perfect is voor één of twee personen, of als mantelzorgwoning kan dienen. Met een plat dak en een slimme indeling van 11 bij 14 meter, biedt deze woning een optimale benutting van de beschikbare ruimte. De twee slaapkamers zijn ontworpen met comfort en lichtinval in gedachten, waardoor een aangename sfeer ontstaat. De praktische leefruimtes zijn zorgvuldig ingericht om functionaliteit te combineren met een moderne uitstraling. De plattegrond van de Nevira is bijzonder door zijn doordachte indeling, die zorgt voor een gevoel van ruimte en vrijheid. Dit ontwerp biedt een ideale oplossing voor wie op zoek is naar een stijlvolle en praktische woonoplossing.

Details

  • Lengte: 11 meter

  • Breedte: 14 meter

  • 92m2 oppervlakte

  • Plat dak

  • 2 slaapkamer(s)

Indeling

Villea Comfort

EXTERIEUR

  • Onderhoudsvrije gevelafwerking
  • Aluminium kozijnen met HR++ glas
  • Isolatiewaarden boven de Bouwbesluiteisen

INTERIEUR

  • Geïsoleerde binnenwanden
  • Naadloze wanden en plafonds in kleur.
  • Hoge, brede binnendeuren in grenen kozijnen
  • Duurzame PVC vloer
  • Complete maatwerk keuken
  • Badkamer met inloopdouche en toilet

Villea exclusief

EXTERIEUR

  • Triple glas
  • Aluminium composiet overstekken
  • Verduurzaamde houten gevelbekleding
  • Rolluiken of screens

INTERIEUR

  • Airconditioning
  • Vloerverwarming
  • WTW-systeem
  • Maatwerk inbouwkasten
  • Staallook deuren
  • Luxe badkamer met bad

Offerte aanvragen

Naam

Deze site wordt beschermd door reCAPTCHA en de Privacy Policy en Servicevoorwaarden van Google gelden.