Overslaan en naar de inhoud gaan
Offerte aanvragen

Offerte aanvragen


Benieuwd naar de kosten voor een Villea woning die aansluit bij uw wensen? Vraag eenvoudig en vrijblijvend een offerte aan. Vul het formulier in en u ontvangt binnen 1 werkdag een eerste richtprijs op maat. Daarna nemen we snel contact met u op om alles door te spreken.

Naam

Deze site wordt beschermd door reCAPTCHA en de Privacy Policy en Servicevoorwaarden van Google gelden.

085 – 333 2440 Wijk en Aalburg

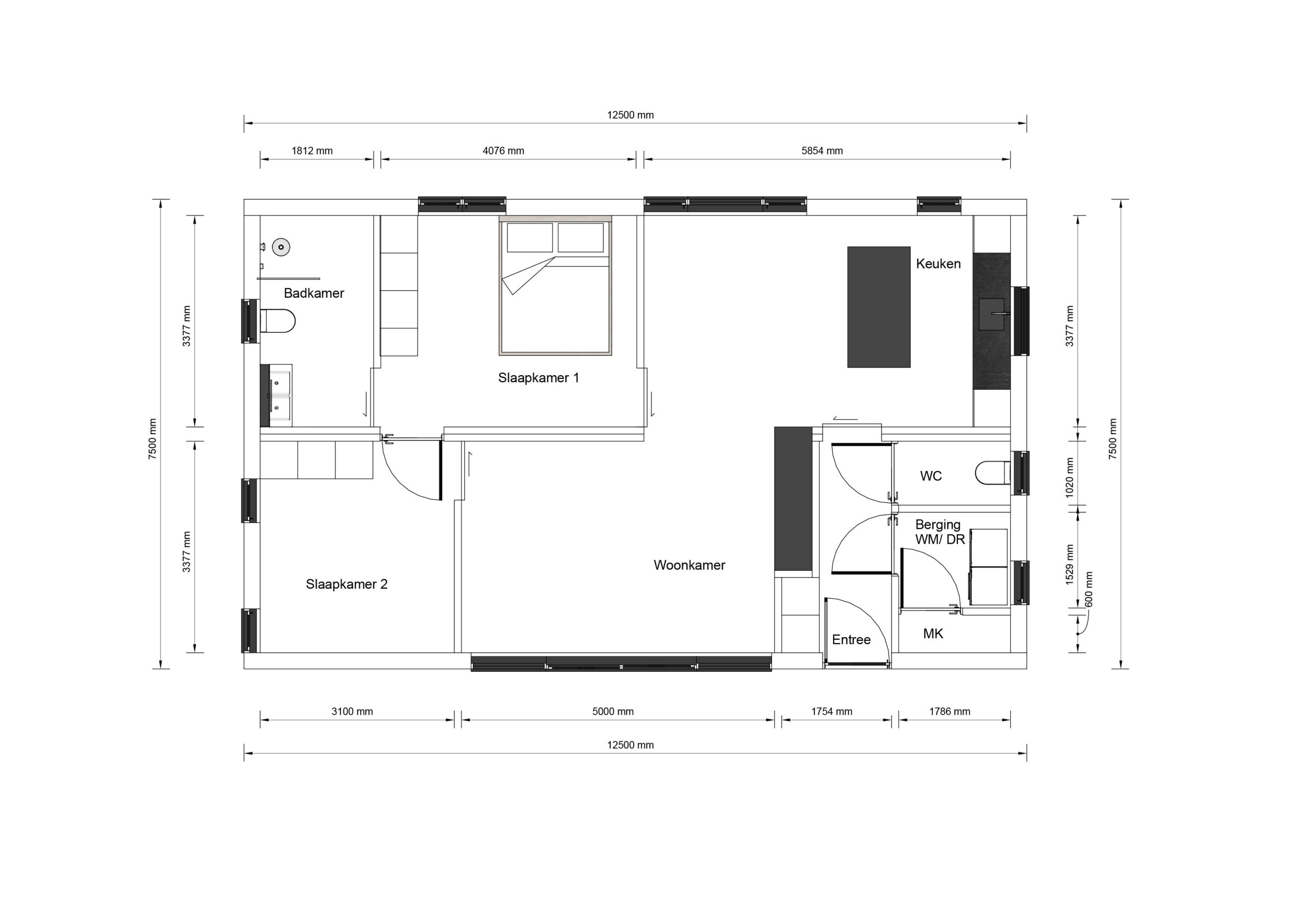
Mantelzorgwoning Mirava

  • 94 woonoppervlakte
  • 2 slaapkamer(s)

Mantelzorgwoning Mirava

94m2 woonoppervlakte      2 slaapkamer(s)
Over mantelzorgwoning Mirava 94m2
De Mirava is een hoogwaardige prefab woning die perfect is voor één of twee personen, of als mantelzorgwoning. Met een plat dak en een afmeting van 12,5 bij 7,5 meter, biedt deze woning een slimme indeling die optimaal gebruikmaakt van de beschikbare ruimte. De twee slaapkamers zijn ontworpen met comfort en lichtinval in gedachten, waardoor een aangename leefomgeving ontstaat. De praktische leefruimtes zijn functioneel en stijlvol, met een uitstraling die moderniteit en elegantie uitstraalt. De plattegrond van de Mirava is bijzonder door zijn doordachte indeling, die zorgt voor een harmonieuze flow tussen de verschillende ruimtes. Dit maakt de woning niet alleen aantrekkelijk, maar ook zeer geschikt voor diverse woonbehoeften.

Details

  • Lengte: 12.5 meter

  • Breedte: 7.5 meter

  • 94m2 oppervlakte

  • Plat dak

  • 2 slaapkamer(s)

Indeling

Villea Comfort

EXTERIEUR

  • Onderhoudsvrije gevelafwerking
  • Aluminium kozijnen met HR++ glas
  • Isolatiewaarden boven de Bouwbesluiteisen

INTERIEUR

  • Geïsoleerde binnenwanden
  • Naadloze wanden en plafonds in kleur.
  • Hoge, brede binnendeuren in grenen kozijnen
  • Duurzame PVC vloer
  • Complete maatwerk keuken
  • Badkamer met inloopdouche en toilet

Villea exclusief

EXTERIEUR

  • Triple glas
  • Aluminium composiet overstekken
  • Verduurzaamde houten gevelbekleding
  • Rolluiken of screens

INTERIEUR

  • Airconditioning
  • Vloerverwarming
  • WTW-systeem
  • Maatwerk inbouwkasten
  • Staallook deuren
  • Luxe badkamer met bad

Offerte aanvragen

Naam

Deze site wordt beschermd door reCAPTCHA en de Privacy Policy en Servicevoorwaarden van Google gelden.