Overslaan en naar de inhoud gaan
Offerte aanvragen

Offerte aanvragen


Benieuwd naar de kosten voor een Villea woning die aansluit bij uw wensen? Vraag eenvoudig en vrijblijvend een offerte aan. Vul het formulier in en u ontvangt binnen 1 werkdag een eerste richtprijs op maat. Daarna nemen we snel contact met u op om alles door te spreken.

Naam

Deze site wordt beschermd door reCAPTCHA en de Privacy Policy en Servicevoorwaarden van Google gelden.

085 – 333 2440 Wijk en Aalburg

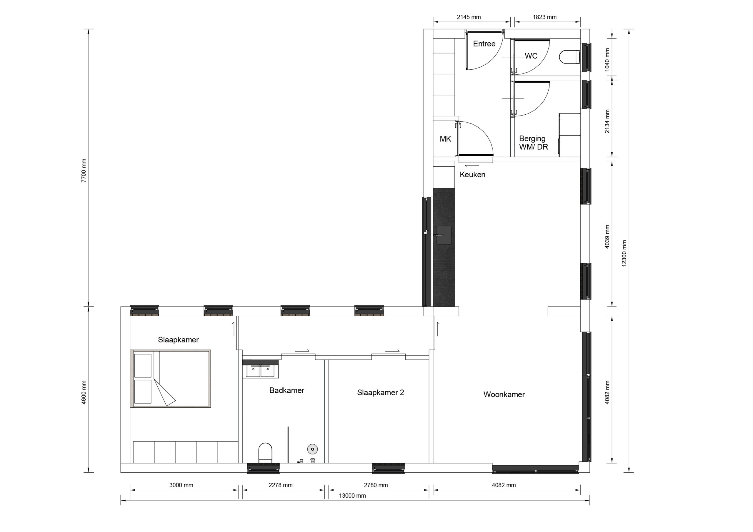
Mantelzorgwoning Lorano

  • 95 woonoppervlakte
  • 2 slaapkamer(s)

Mantelzorgwoning Lorano

95m2 woonoppervlakte      2 slaapkamer(s)
Over mantelzorgwoning Lorano 95m2
De Lorano is een hoogwaardige prefab woning die perfect is voor één of twee personen, of als mantelzorgwoning kan dienen. Met een plat dak en een slimme indeling van 95 m², biedt deze woning een optimale combinatie van comfort en functionaliteit. De twee slaapkamers zijn ruim en licht, waardoor een aangename sfeer ontstaat. De praktische leefruimtes zijn ontworpen met het oog op efficiënt gebruik, zonder in te boeten op stijl. Het ontwerp van de Lorano straalt moderniteit uit en past naadloos in diverse omgevingen. De plattegrond is bijzonder door de doordachte indeling, die zorgt voor een optimale lichtinval en een gevoel van ruimte. Deze woning is een uitstekende keuze voor wie waarde hecht aan kwaliteit en een doordachte woonervaring.

Details

  • Lengte: 13 meter

  • Breedte: 12.3 meter

  • 95m2 oppervlakte

  • Plat dak

  • 2 slaapkamer(s)

Indeling

Villea Comfort

EXTERIEUR

  • Onderhoudsvrije gevelafwerking
  • Aluminium kozijnen met HR++ glas
  • Isolatiewaarden boven de Bouwbesluiteisen

INTERIEUR

  • Geïsoleerde binnenwanden
  • Naadloze wanden en plafonds in kleur.
  • Hoge, brede binnendeuren in grenen kozijnen
  • Duurzame PVC vloer
  • Complete maatwerk keuken
  • Badkamer met inloopdouche en toilet

Villea exclusief

EXTERIEUR

  • Triple glas
  • Aluminium composiet overstekken
  • Verduurzaamde houten gevelbekleding
  • Rolluiken of screens

INTERIEUR

  • Airconditioning
  • Vloerverwarming
  • WTW-systeem
  • Maatwerk inbouwkasten
  • Staallook deuren
  • Luxe badkamer met bad

Offerte aanvragen

Naam

Deze site wordt beschermd door reCAPTCHA en de Privacy Policy en Servicevoorwaarden van Google gelden.