Overslaan en naar de inhoud gaan
Offerte aanvragen

Offerte aanvragen


Benieuwd naar de kosten voor een Villea woning die aansluit bij uw wensen? Vraag eenvoudig en vrijblijvend een offerte aan. Vul het formulier in en u ontvangt binnen 1 werkdag een eerste richtprijs op maat. Daarna nemen we snel contact met u op om alles door te spreken.

Naam

Deze site wordt beschermd door reCAPTCHA en de Privacy Policy en Servicevoorwaarden van Google gelden.

085 – 333 2440 Wijk en Aalburg

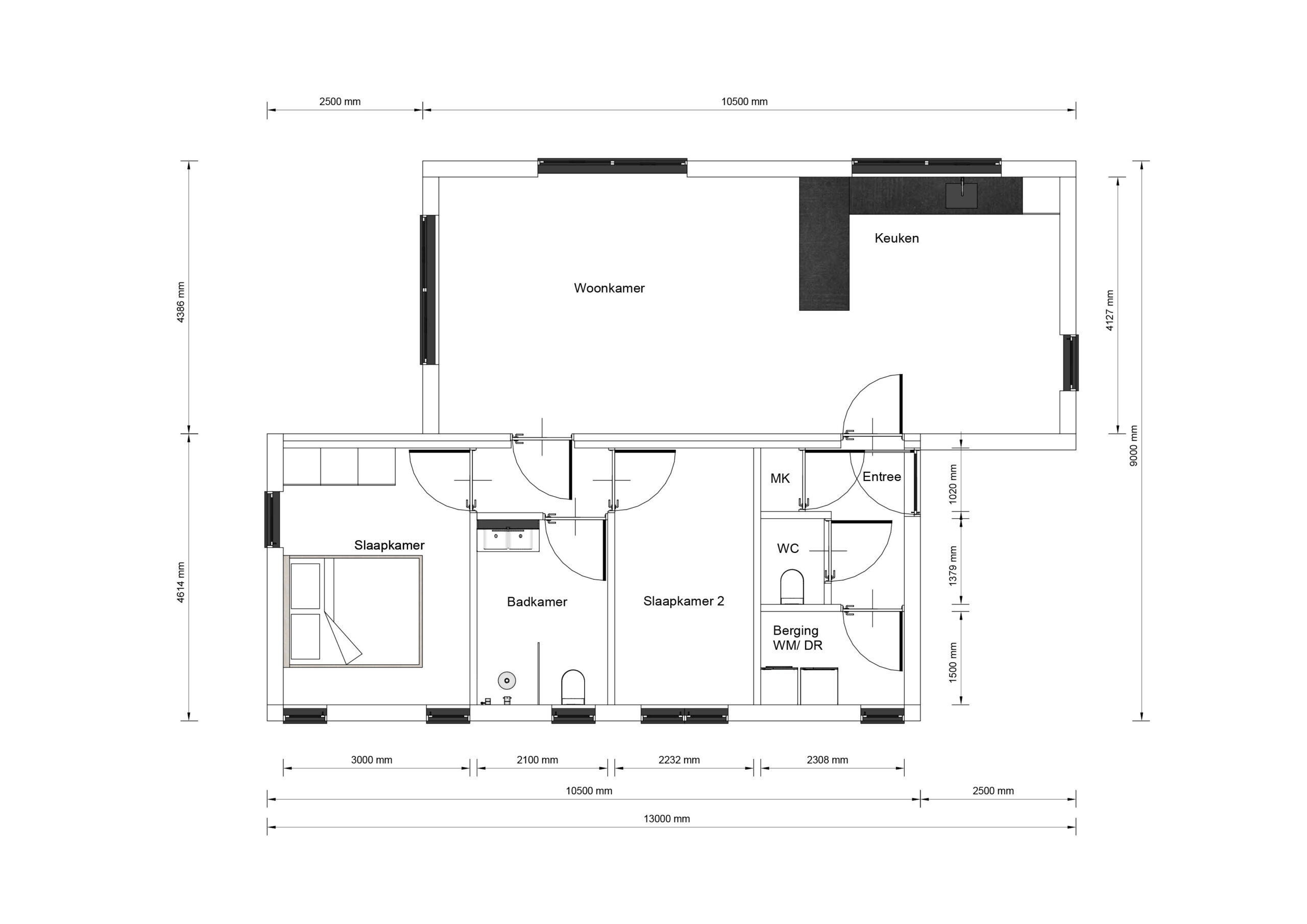
Mantelzorgwoning Dorino

  • 95 woonoppervlakte
  • 2 slaapkamer(s)

Mantelzorgwoning Dorino

95m2 woonoppervlakte      2 slaapkamer(s)
Over mantelzorgwoning Dorino 95m2
De Dorino is een hoogwaardige prefab woning die perfect is voor één of twee personen, of als mantelzorgwoning. Met een plat dak en een afmeting van 9 bij 10,5 meter, biedt deze woning een slimme indeling die optimaal gebruik maakt van de beschikbare ruimte. De twee slaapkamers zijn ontworpen met comfort in gedachten, waardoor een aangename sfeer ontstaat. Dankzij de grote ramen geniet de woning van een uitstekende lichtinval, wat bijdraagt aan een open en uitnodigende leefomgeving. De praktische leefruimtes zijn ideaal voor een moderne levensstijl, waarbij functionaliteit en esthetiek hand in hand gaan. Het ontwerp van de Dorino straalt een eigentijdse elegantie uit, waardoor het een aantrekkelijke keuze is voor wie waarde hecht aan zowel kwaliteit als stijl.

Details

  • Lengte: 9 meter

  • Breedte: 10.5 meter

  • 95m2 oppervlakte

  • Plat dak

  • 2 slaapkamer(s)

Indeling

Villea Comfort

EXTERIEUR

  • Onderhoudsvrije gevelafwerking
  • Aluminium kozijnen met HR++ glas
  • Isolatiewaarden boven de Bouwbesluiteisen

INTERIEUR

  • Geïsoleerde binnenwanden
  • Naadloze wanden en plafonds in kleur.
  • Hoge, brede binnendeuren in grenen kozijnen
  • Duurzame PVC vloer
  • Complete maatwerk keuken
  • Badkamer met inloopdouche en toilet

Villea exclusief

EXTERIEUR

  • Triple glas
  • Aluminium composiet overstekken
  • Verduurzaamde houten gevelbekleding
  • Rolluiken of screens

INTERIEUR

  • Airconditioning
  • Vloerverwarming
  • WTW-systeem
  • Maatwerk inbouwkasten
  • Staallook deuren
  • Luxe badkamer met bad

Offerte aanvragen

Naam

Deze site wordt beschermd door reCAPTCHA en de Privacy Policy en Servicevoorwaarden van Google gelden.