Overslaan en naar de inhoud gaan
Offerte aanvragen

Offerte aanvragen


Benieuwd naar de kosten voor een Villea woning die aansluit bij uw wensen? Vraag eenvoudig en vrijblijvend een offerte aan. Vul het formulier in en u ontvangt binnen 1 werkdag een eerste richtprijs op maat. Daarna nemen we snel contact met u op om alles door te spreken.

Naam

Deze site wordt beschermd door reCAPTCHA en de Privacy Policy en Servicevoorwaarden van Google gelden.

085 – 333 2440 Wijk en Aalburg

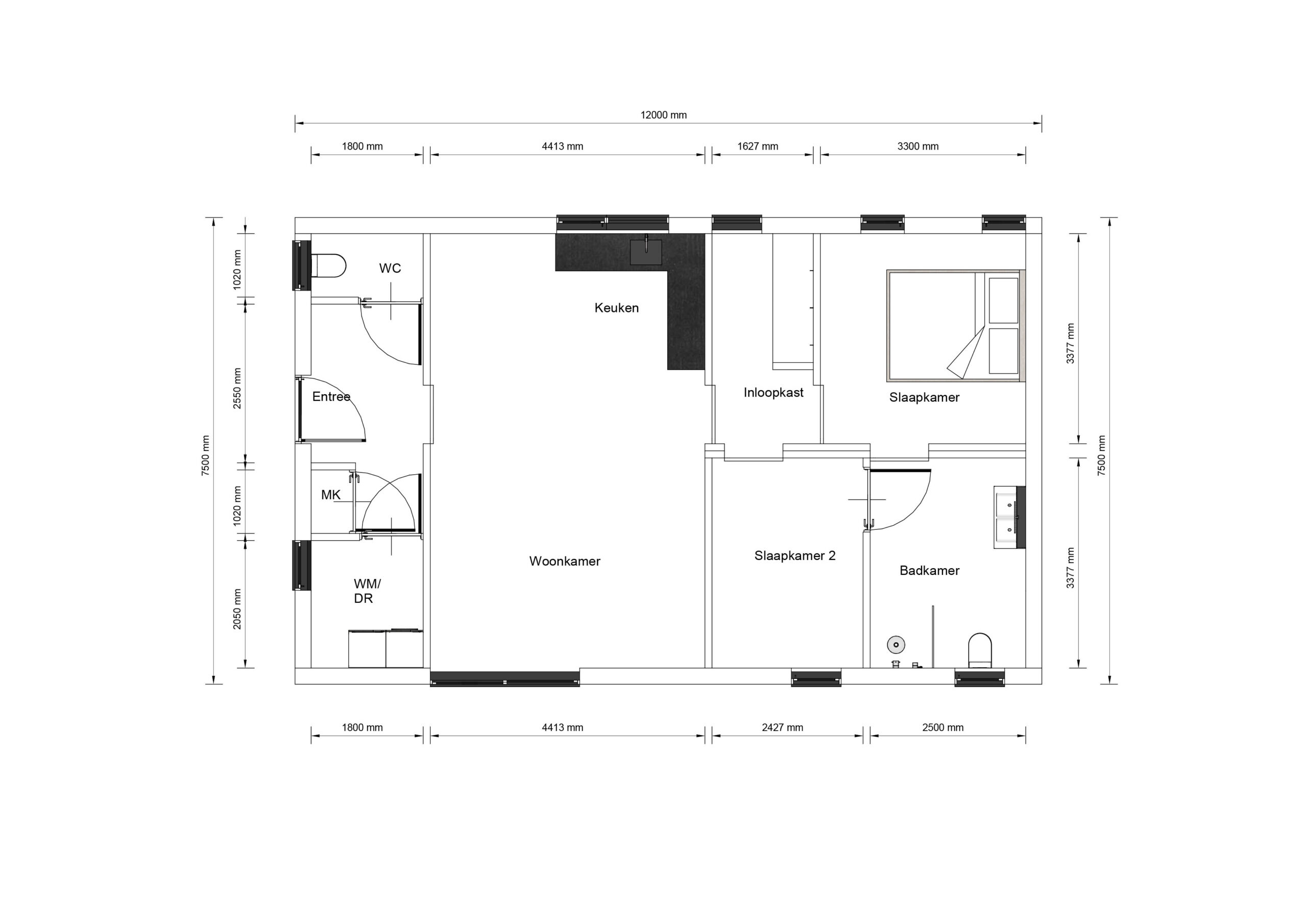
Mantelzorgwoning Bravino

  • 90 woonoppervlakte
  • 2 slaapkamer(s)

Mantelzorgwoning Bravino

90m2 woonoppervlakte      2 slaapkamer(s)
Over mantelzorgwoning Bravino 90m2
De Bravino is een hoogwaardige prefab woning die perfect is voor één of twee personen, of als mantelzorgwoning kan dienen. Met een plat dak en een afmeting van 7 bij 12 meter, biedt deze woning een slimme indeling die optimaal gebruik maakt van de beschikbare ruimte. De twee slaapkamers zijn ontworpen met comfort in gedachten, waarbij de natuurlijke lichtinval een aangename sfeer creëert. De praktische leefruimtes zijn functioneel en stijlvol, waardoor de Bravino een aantrekkelijke keuze is voor wie waarde hecht aan zowel esthetiek als gebruiksgemak. Het ontwerp straalt moderniteit uit en de plattegrond is zorgvuldig samengesteld om een gevoel van ruimte en vrijheid te bieden, wat deze woning bijzonder maakt.

Details

  • Lengte: 7 meter

  • Breedte: 12 meter

  • 90m2 oppervlakte

  • Plat dak

  • 2 slaapkamer(s)

Indeling

Villea Comfort

EXTERIEUR

  • Onderhoudsvrije gevelafwerking
  • Aluminium kozijnen met HR++ glas
  • Isolatiewaarden boven de Bouwbesluiteisen

INTERIEUR

  • Geïsoleerde binnenwanden
  • Naadloze wanden en plafonds in kleur.
  • Hoge, brede binnendeuren in grenen kozijnen
  • Duurzame PVC vloer
  • Complete maatwerk keuken
  • Badkamer met inloopdouche en toilet

Villea exclusief

EXTERIEUR

  • Triple glas
  • Aluminium composiet overstekken
  • Verduurzaamde houten gevelbekleding
  • Rolluiken of screens

INTERIEUR

  • Airconditioning
  • Vloerverwarming
  • WTW-systeem
  • Maatwerk inbouwkasten
  • Staallook deuren
  • Luxe badkamer met bad

Offerte aanvragen

Naam

Deze site wordt beschermd door reCAPTCHA en de Privacy Policy en Servicevoorwaarden van Google gelden.