Overslaan en naar de inhoud gaan
Offerte aanvragen

Offerte aanvragen


Benieuwd naar de kosten voor een Villea woning die aansluit bij uw wensen? Vraag eenvoudig en vrijblijvend een offerte aan. Vul het formulier in en u ontvangt binnen 1 werkdag een eerste richtprijs op maat. Daarna nemen we snel contact met u op om alles door te spreken.

Naam

Deze site wordt beschermd door reCAPTCHA en de Privacy Policy en Servicevoorwaarden van Google gelden.

085 – 333 2440 Wijk en Aalburg

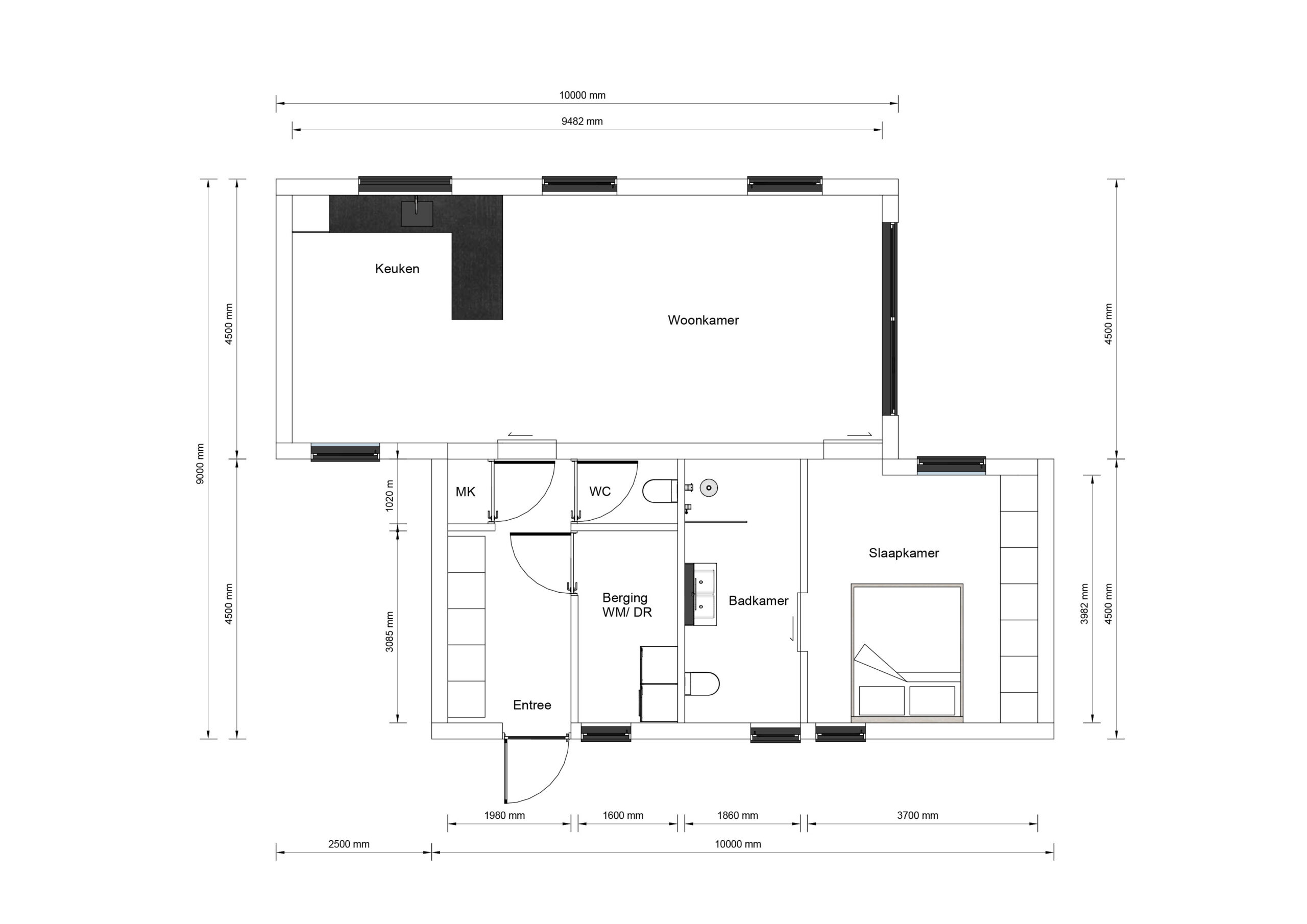
Mantelzorgwoning Alvera

  • 90 woonoppervlakte
  • 1 slaapkamer(s)

Mantelzorgwoning Alvera

90m2 woonoppervlakte      1 slaapkamer(s)
Over mantelzorgwoning Alvera 90m2
De Alvera is een hoogwaardige prefab woning die perfect is voor 1 of 2 personen, en kan ook dienen als mantelzorgwoning. Met een plat dak en een afmeting van 12 bij 9 meter, biedt deze woning een slimme indeling die optimaal gebruik maakt van de beschikbare ruimte. De woning beschikt over een comfortabele slaapkamer en praktische leefruimtes die zorgen voor een aangename woonervaring. Dankzij de grote ramen geniet de Alvera van een uitstekende lichtinval, wat bijdraagt aan een open en luchtige sfeer. Het ontwerp straalt moderniteit uit en is zorgvuldig samengesteld om zowel functionaliteit als esthetiek te combineren. De plattegrond van de Alvera is bijzonder door zijn doordachte indeling, waardoor elke vierkante meter efficiënt wordt benut, wat het een ideale keuze maakt voor wie waarde hecht aan kwaliteit en comfort.

Details

  • Lengte: 12 meter

  • Breedte: 9 meter

  • 90m2 oppervlakte

  • Plat dak

  • 1 slaapkamer(s)

Indeling

Villea Comfort

EXTERIEUR

  • Onderhoudsvrije gevelafwerking
  • Aluminium kozijnen met HR++ glas
  • Isolatiewaarden boven de Bouwbesluiteisen

INTERIEUR

  • Geïsoleerde binnenwanden
  • Naadloze wanden en plafonds in kleur.
  • Hoge, brede binnendeuren in grenen kozijnen
  • Duurzame PVC vloer
  • Complete maatwerk keuken
  • Badkamer met inloopdouche en toilet

Villea exclusief

EXTERIEUR

  • Triple glas
  • Aluminium composiet overstekken
  • Verduurzaamde houten gevelbekleding
  • Rolluiken of screens

INTERIEUR

  • Airconditioning
  • Vloerverwarming
  • WTW-systeem
  • Maatwerk inbouwkasten
  • Staallook deuren
  • Luxe badkamer met bad

Offerte aanvragen

Naam

Deze site wordt beschermd door reCAPTCHA en de Privacy Policy en Servicevoorwaarden van Google gelden.